1222 Central Park Avenue, North Lawndale, Chicago, Illinois 60623
$169,900
|
For Sale
|
|
| Status: | Active |
| Sqft: | 0 |
| Cost/Sqft: | — |
| Beds: | 6 |
| Baths: | 0 |
| Year Built: | 1898 |
| Property Taxes: | $2,897 |
| Days On Market: | 14 |
| Lot Size: | 0,00 |
Description
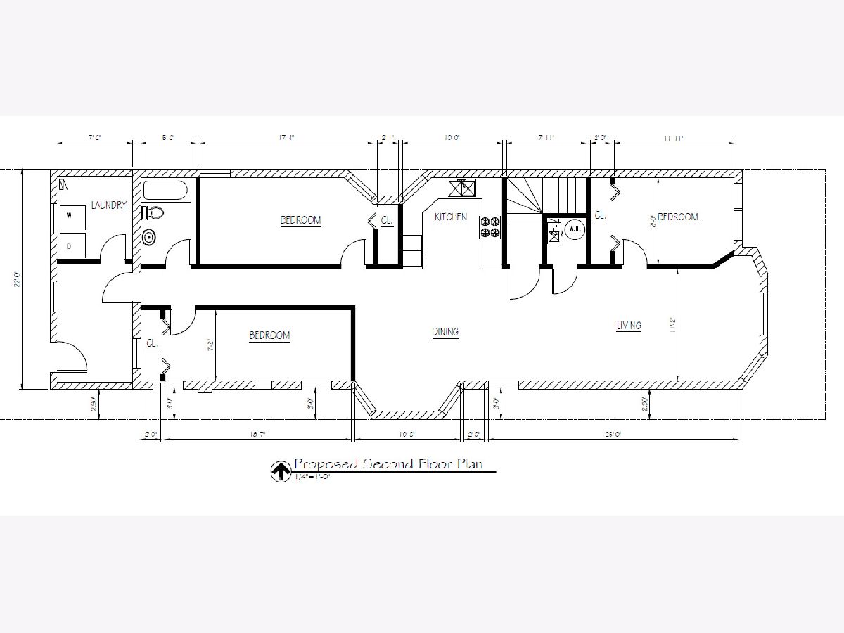
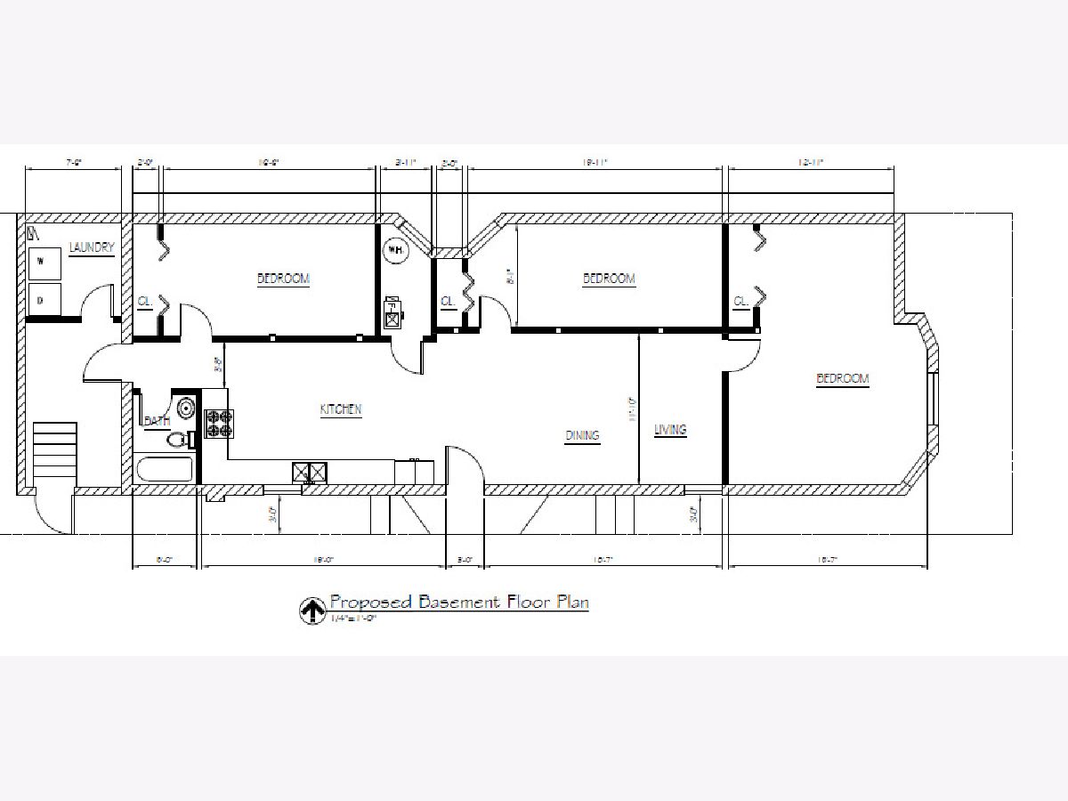
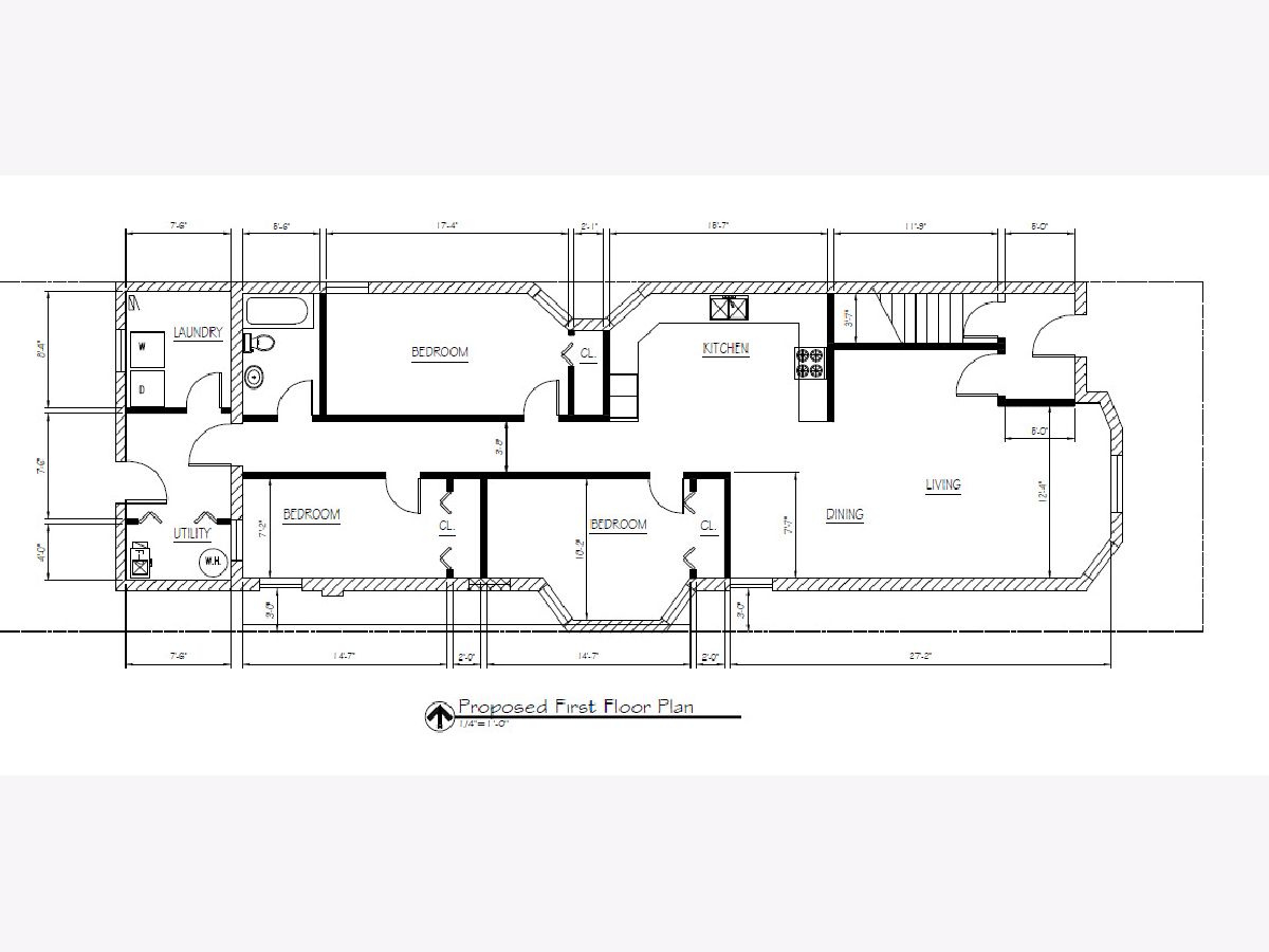
Opportunity is knocking in North Lawndale! This solid brick 2or possibly 3-Unit multifamily building is a total gut rehab ready for your vision. See architecture drawings and plans included in the sale of this classic Chicago streetscape, the building offers the perfect canvas to redesign and reconfigure to today's standards ideal for a value-add investor, seasoned rehabber, or owner-occupant looking to build equity fast. Surrounded by a pocket that's flourishing with new construction and recent renovations, this up-and-coming area continues to see strong revitalization momentum. Bring your architect and contractor-there's tons of upside here with the right plan, whether you're aiming for long-term rentals, a house-hack setup, or a future resale. Convenient access to major corridors, public transportation, parks, and the growing list of neighborhood amenities makes this a strategic play in a high-potential location. Sold as-is. Cash or rehab financing. Don't miss your chance to transform this property into a standout investment in one of Chicago's most exciting growth zones.
Property Specifics
| Multi-unit | |
| — | |
| — | |
| 1898 | |
| — | |
| — | |
| No | |
| — |
| Cook | |
| — | |
| — / — | |
| — | |
| — | |
| — | |
| 12568223 | |
| 16231060290000 |
Property History
| DATE: | EVENT: | PRICE: | SOURCE: |
|---|---|---|---|
| 10 Dec, 2025 | Sold | $110,000 | MRED MLS |
| 24 Nov, 2025 | Under contract | $100,000 | MRED MLS |
| 24 Sep, 2025 | Listed for sale | $100,000 | MRED MLS |
| 13 Feb, 2026 | Listed for sale | $169,900 | MRED MLS |
Room Specifics
Total Bedrooms: 6
Bedrooms Above Ground: 6
Bedrooms Below Ground: 0
Dimensions: —
Floor Type: —
Dimensions: —
Floor Type: —
Dimensions: —
Floor Type: —
Dimensions: —
Floor Type: —
Dimensions: —
Floor Type: —
Full Bathrooms: 2
Bathroom Amenities: —
Bathroom in Basement: —
Rooms: —
Basement Description: —
Other Specifics
| — | |
| — | |
| — | |
| — | |
| — | |
| 3125 | |
| — | |
| — | |
| — | |
| — | |
| Not in DB | |
| — | |
| — | |
| — | |
| — |
Tax History
| Year | Property Taxes |
|---|---|
| 2025 | $2,897 |
Contact Agent
Nearby Similar Homes
Nearby Sold Comparables
Contact Agent
Listing Provided By
REMAX Legends


