1661 Bell Avenue, West Town, Chicago, Illinois 60647
$670,000
|
For Sale
|
|
| Status: | Contingent |
| Sqft: | 1,450 |
| Cost/Sqft: | $462 |
| Beds: | 2 |
| Baths: | 2 |
| Year Built: | 1993 |
| Property Taxes: | $10,705 |
| Days On Market: | 48 |
| Lot Size: | 0,00 |
Description
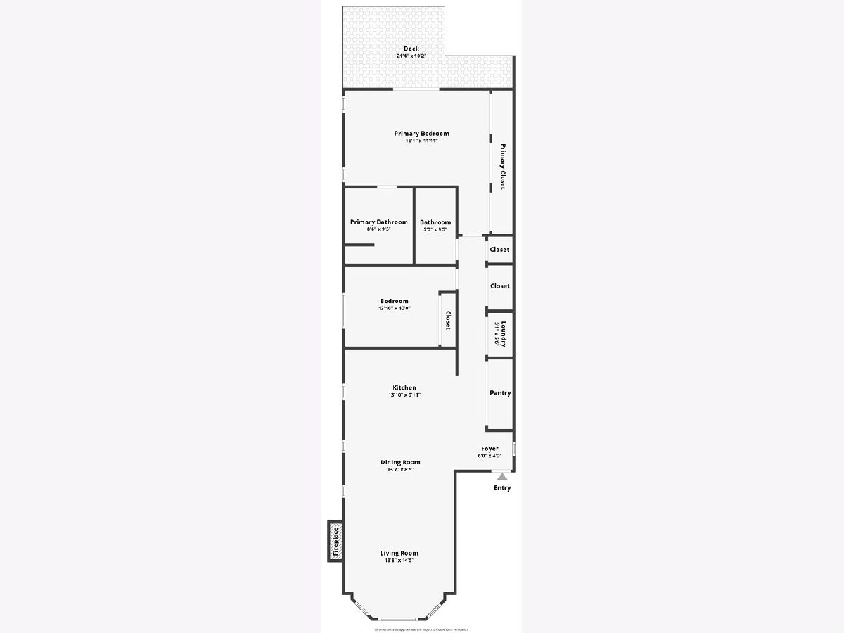
Bright Bucktown/Wicker Park 2BD condo with garage Parking! Situated at the end of a quiet, tree-lined street on the border of Bucktown and Wicker Park, this beautifully updated 2-bedroom, 2-bath condo offers a rare wide interior layout and exceptional natural light thanks to its corner position. The expansive living space is anchored by a sun-filled bay window, gas fireplace, and custom built-in bookshelves, creating the perfect setting for everyday living or entertaining. The oversized kitchen is designed for gathering and functionality, featuring stainless steel appliances, an extra-large island, custom cabinet organizers, stylish backsplash, updated lighting, and space for a full dining table. The primary suite offers custom-built closets and a spacious en-suite bath with a dual vanity and double walk-in shower. Additional highlights include hardwood floors throughout, recessed lighting in the primary bedroom, side-by-side washer/dryer, and abundant storage including custom pantry and coat closets. Enjoy outdoor living with a private deck and shared fenced yard, plus the convenience of garage parking. The well-maintained building has completed several recent improvements including new windows and primary bedroom door, roof replacement, tuckpointing and sealing, and a new garage pedestrian door. All of this just steps from the Blue Line, parks, top restaurants, boutiques, and the vibrant energy of Damen and Milwaukee. Murphy bed and mounted plug-in sconce next to sofa excluded from sale.
Property Specifics
| Condos/Townhomes | |
| 3 | |
| — | |
| 1993 | |
| — | |
| — | |
| No | |
| — |
| Cook | |
| — | |
| 213 / Monthly | |
| — | |
| — | |
| — | |
| 12588703 | |
| 14313281061002 |
Property History
| DATE: | EVENT: | PRICE: | SOURCE: |
|---|---|---|---|
| 8 May, 2008 | Sold | $383,590 | MRED MLS |
| 22 Feb, 2008 | Under contract | $389,000 | MRED MLS |
| 5 Feb, 2008 | Listed for sale | $389,000 | MRED MLS |
| 13 Aug, 2012 | Sold | $373,000 | MRED MLS |
| 7 Jul, 2012 | Under contract | $375,000 | MRED MLS |
| 28 Jun, 2012 | Listed for sale | $375,000 | MRED MLS |
| 21 May, 2021 | Sold | $518,000 | MRED MLS |
| 23 Apr, 2021 | Under contract | $515,000 | MRED MLS |
| 23 Apr, 2021 | Listed for sale | $515,000 | MRED MLS |
| 16 Mar, 2026 | Under contract | $670,000 | MRED MLS |
| 11 Mar, 2026 | Listed for sale | $670,000 | MRED MLS |
Room Specifics
Total Bedrooms: 2
Bedrooms Above Ground: 2
Bedrooms Below Ground: 0
Dimensions: —
Floor Type: —
Full Bathrooms: 2
Bathroom Amenities: —
Bathroom in Basement: 0
Rooms: —
Basement Description: —
Other Specifics
| 1 | |
| — | |
| — | |
| — | |
| — | |
| COMMON | |
| — | |
| — | |
| — | |
| — | |
| Not in DB | |
| — | |
| — | |
| — | |
| — |
Tax History
| Year | Property Taxes |
|---|---|
| 2008 | $4,223 |
| 2012 | $5,311 |
| 2021 | $8,567 |
| 2026 | $10,705 |
Contact Agent
Nearby Similar Homes
Contact Agent
Listing Provided By
Compass


