1918 Kedzie Avenue, Logan Square, Chicago, Illinois 60647
$699,000
|
For Sale
|
|
| Status: | Contingent |
| Sqft: | 0 |
| Cost/Sqft: | — |
| Beds: | 6 |
| Baths: | 0 |
| Year Built: | — |
| Property Taxes: | $12,003 |
| Days On Market: | 38 |
| Lot Size: | 0,00 |
Description
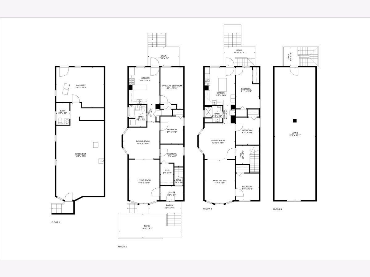
Updated Multi-Unit in Prime Logan Square location on enormous 177' lot. This building is perfect for either owner-occupants looking to have a spacious unit with a possible DUPLEX and a large yard or investors seeking for those hard to find properties where you can add value with this RT-4 zoning. 1st & 2nd floor unit are both 3 bedroom 1 bath units with in-unit LAUNDRY, CENTRAL AIR, DECKS, with big living rooms! Basement has separate front & rear entry - PERFECT FOR DUPLEX or In-Law. It has been fully gutted with new ceiling soundproofing, CLOSED CELL spray foam insulation, drywall, Drain tile/Sump and a STEEL I-BEAM and steel posts. Ceilings taller than average (roughly 7.5') and unit is less than 3 feet below grade. No water issues. Unit needs kitchen, shower & drywall finishing. Huge Attic has closed cell spray foam insulation, new subfloor, some updated flooring and electric - optimally positioned for duplexing with the 2nd floor unit. Building has two legal units but zoning allows for three units. Building has updated electric throughout, copper plumbing, and three meters/panels. This is an OWNER OCCUPIED building - these are always the preferable multi-units because owners take better care than absentee landlords. The yard is uncommon in Chicago with it's extra long length fit for a City Camp Retreat - a true urban escape with garden areas, pergola sitting, concrete patio with basketball, rear yard deck and a two car garage. Steps away to the 606 elevated trail, the delightful Boulevards and Logan Square's Armitage Ave featuring Scofflaw, Giant, Parson's, Au Cheval, Solemn Oath Brewery, Middlebrow....and those are just the places around the corner!!! When you think of getting a Chicago multi-unit, this is it!
Property Specifics
| Multi-unit | |
| — | |
| — | |
| — | |
| — | |
| — | |
| No | |
| — |
| Cook | |
| — | |
| — / — | |
| — | |
| — | |
| — | |
| 12473965 | |
| 13354050360000 |
Property History
| DATE: | EVENT: | PRICE: | SOURCE: |
|---|---|---|---|
| 12 Oct, 2018 | Sold | $597,000 | MRED MLS |
| 6 Aug, 2018 | Under contract | $609,000 | MRED MLS |
| 30 Jul, 2018 | Listed for sale | $609,000 | MRED MLS |
| 31 Jan, 2023 | Sold | $105,000 | MRED MLS |
| 13 Jan, 2023 | Under contract | $99,900 | MRED MLS |
| 2 Jan, 2023 | Listed for sale | $99,900 | MRED MLS |
| 3 Aug, 2023 | Sold | $140,000 | MRED MLS |
| 1 Jul, 2023 | Under contract | $140,000 | MRED MLS |
| 15 May, 2023 | Listed for sale | $140,000 | MRED MLS |
| 24 Sep, 2025 | Under contract | $699,000 | MRED MLS |
| — | Last price change | $649,000 | MRED MLS |
| 17 Sep, 2025 | Listed for sale | $649,000 | MRED MLS |
Room Specifics
Total Bedrooms: 6
Bedrooms Above Ground: 6
Bedrooms Below Ground: 0
Dimensions: —
Floor Type: —
Dimensions: —
Floor Type: —
Dimensions: —
Floor Type: —
Dimensions: —
Floor Type: —
Dimensions: —
Floor Type: —
Full Bathrooms: 3
Bathroom Amenities: —
Bathroom in Basement: 0
Rooms: —
Basement Description: —
Other Specifics
| 2 | |
| — | |
| — | |
| — | |
| — | |
| 25 x 177 | |
| — | |
| — | |
| — | |
| — | |
| Not in DB | |
| — | |
| — | |
| — | |
| — |
Tax History
| Year | Property Taxes |
|---|---|
| 2018 | $4,834 |
| 2023 | $2,705 |
| 2023 | $1,715 |
| 2025 | $12,003 |
Contact Agent
Nearby Similar Homes
Nearby Sold Comparables
Contact Agent
Listing Provided By
Captain Realty LLC


