2154 Erie Street, West Town, Chicago, Illinois 60612
$1,699,000
|
For Sale
|
|
| Status: | Active |
| Sqft: | 3,608 |
| Cost/Sqft: | $471 |
| Beds: | 3 |
| Baths: | 5 |
| Year Built: | 2018 |
| Property Taxes: | $24,323 |
| Days On Market: | 12 |
| Lot Size: | 0,00 |
Description
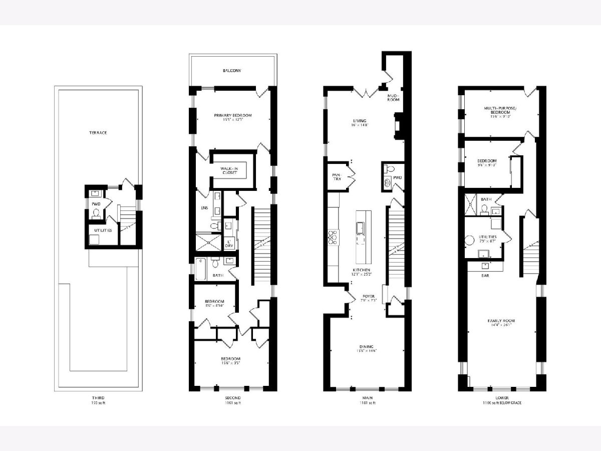
Stunning newer-construction single-family home on one of West Town's best blocks, located within the Mitchell School District. Built in 2019, this 4BD + 1 flex room, 3.2BA home offers approximately 3,608 square feet of living space across three levels. The open floor plan features hardwood floors, oversized windows, and high ceilings. The kitchen includes quartz and walnut countertops, a large island, stainless steel appliances, and custom cabinetry. The primary suite offers dual vanities, a steam shower with body sprays, and a walk-in closet. The finished lower level includes a wet bar with a beverage and wine refrigerator. The expansive rooftop deck features an outdoor kitchen, stunning city views, and multiple seating areas. Additional highlights include a fireplace in the living room, two laundry areas (one with a washer and dryer installed), EV-ready 220-volt wiring, and flush-mounted speakers throughout. Located in a prime Chicago location with easy access to restaurants, shops, parks, and public transportation, this home offers an ideal urban lifestyle.
Property Specifics
| Single Family | |
| — | |
| — | |
| 2018 | |
| — | |
| — | |
| No | |
| — |
| Cook | |
| — | |
| — / Not Applicable | |
| — | |
| — | |
| — | |
| 12577883 | |
| 17071110260000 |
Nearby Schools
| NAME: | DISTRICT: | DISTANCE: | |
|---|---|---|---|
|
Grade School
Mitchell Elementary School |
299 | — | |
|
High School
Wells Community Academy Senior H |
299 | Not in DB | |
Property History
| DATE: | EVENT: | PRICE: | SOURCE: |
|---|---|---|---|
| 18 Nov, 2010 | Sold | $245,000 | MRED MLS |
| 9 Oct, 2010 | Under contract | $279,900 | MRED MLS |
| — | Last price change | $284,900 | MRED MLS |
| 11 Aug, 2009 | Listed for sale | $449,900 | MRED MLS |
| 27 Feb, 2026 | Listed for sale | $1,699,000 | MRED MLS |
Room Specifics
Total Bedrooms: 5
Bedrooms Above Ground: 3
Bedrooms Below Ground: 2
Dimensions: —
Floor Type: —
Dimensions: —
Floor Type: —
Dimensions: —
Floor Type: —
Dimensions: —
Floor Type: —
Full Bathrooms: 5
Bathroom Amenities: Separate Shower,Steam Shower,Double Sink,Full Body Spray Shower,Soaking Tub
Bathroom in Basement: 1
Rooms: —
Basement Description: —
Other Specifics
| 2 | |
| — | |
| — | |
| — | |
| — | |
| 24X124 | |
| — | |
| — | |
| — | |
| — | |
| Not in DB | |
| — | |
| — | |
| — | |
| — |
Tax History
| Year | Property Taxes |
|---|---|
| 2010 | $1,949 |
| 2026 | $24,323 |
Contact Agent
Nearby Similar Homes
Nearby Sold Comparables
Contact Agent
Listing Provided By
Realty One Group Inc.


