21W181 North Lane, Itasca, Illinois 60143
$539,000
|
For Sale
|
|
| Status: | Contingent |
| Sqft: | 1,308 |
| Cost/Sqft: | $412 |
| Beds: | 2 |
| Baths: | 3 |
| Year Built: | 1973 |
| Property Taxes: | $6,667 |
| Days On Market: | 13 |
| Lot Size: | 0,26 |
Description
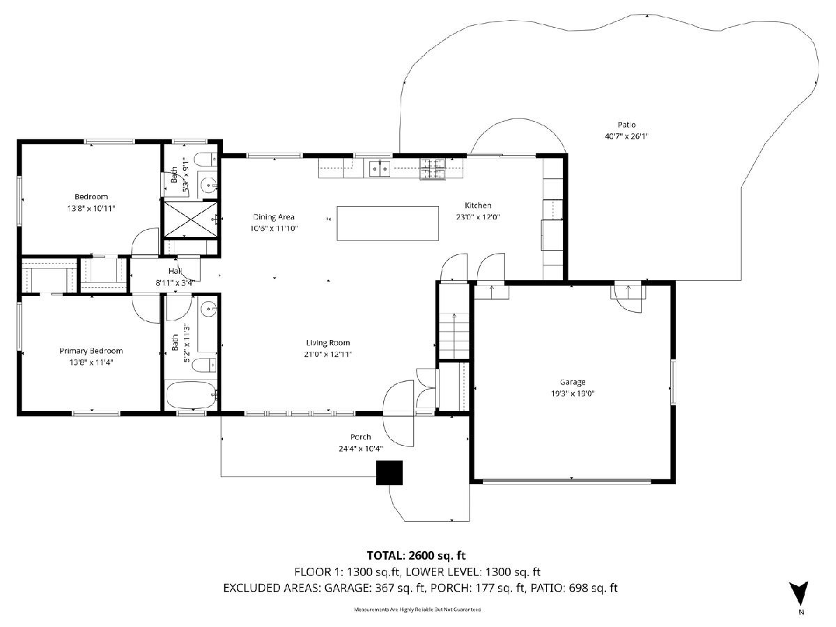
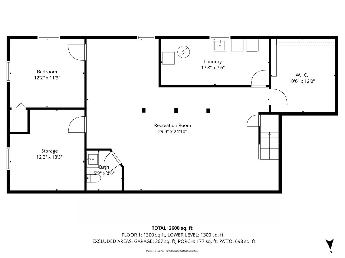
Prepare to be "wowed" at this perfect solid brick ranch in sought-after Nordic Park (unincorporated, so LOW TAXES and PUBLIC WATER AND SEWER) with Itasca's highly ranked schools! Your fussiest buyers will love all the improvements made this desirable RANCH home in the recent past, with approximately 2400 sft of finished living space. First of all, enjoy the open concept living, a very sunny home with tons of light and neutral finishes. 3 bedrooms and 2.5 baths, including Primary with beautiful ensuite bathroom. Full basement is finished and full footprint of first floor, contains 3rd bedroom (no egress window), 1/2 bath, plus bonus room, currently used as a walk-in closet but could be office or workout room. Mechanical/ laundry room even has travertine floor and is spotless. Furnace and CAC 2013, water heater 2015. Kitchen is fabulous with tons of gorgeous white custom soft-close cabinetry, stainless steel appliances, fabulous granite-topped island with seating, travertine backsplash, and beverage fridge. Gorgeous hardwoods on first floor. Newer interior and exterior doors as well as trim and 5 1/2" baseboards. Basement has cozy carpet and built-ins, a perfect place to host a movie party. So many newer updates in this home, including but not limited to: Zoeller sump pump (2024), Zoeller backup (2025), new concrete porch (2024), concrete patio, fresh paint, custom closet (Container store) 2025, W/D (2024), kitchen faucet and plumbing (2025), alarm system, paint and epoxy floor in garage, exterior Ring and flood lights, custom wood blinds throughout, backyard fire pit, and lighting. Wonderful manicured 1/4 acre lot with privacy fence (2024). There is literally nothing to do in this home but move in and enjoy. Short driving distance to public transportation (PACE at Lake/ Army Trail/ Swift Roads). Short drive to Medinah and Itasca Metra stations. Nordic park is nearby with playground and tennis. Itasca Water Park nearby. Medinah Country Club, Eaglewood Resort and Spa just down the street, shopping and restaurants a short drive...a lot to offer in terms of location and functionality in this adorable home! This will not last!
Property Specifics
| Single Family | |
| — | |
| — | |
| 1973 | |
| — | |
| — | |
| No | |
| 0.26 |
| — | |
| Nordic Park | |
| 0 / Not Applicable | |
| — | |
| — | |
| — | |
| 12489242 | |
| 0213402030 |
Nearby Schools
| NAME: | DISTRICT: | DISTANCE: | |
|---|---|---|---|
|
Grade School
Raymond Benson Primary School |
10 | — | |
|
Middle School
F E Peacock Middle School |
10 | Not in DB | |
|
High School
Lake Park High School |
108 | Not in DB | |
Property History
| DATE: | EVENT: | PRICE: | SOURCE: |
|---|---|---|---|
| 30 Apr, 2010 | Sold | $268,000 | MRED MLS |
| 25 Feb, 2010 | Under contract | $280,000 | MRED MLS |
| 1 Oct, 2009 | Listed for sale | $280,000 | MRED MLS |
| 14 Jul, 2015 | Sold | $325,000 | MRED MLS |
| 18 Jun, 2015 | Under contract | $339,000 | MRED MLS |
| 1 Jun, 2015 | Listed for sale | $339,000 | MRED MLS |
| 20 Oct, 2025 | Under contract | $539,000 | MRED MLS |
| 16 Oct, 2025 | Listed for sale | $539,000 | MRED MLS |
Room Specifics
Total Bedrooms: 3
Bedrooms Above Ground: 2
Bedrooms Below Ground: 1
Dimensions: —
Floor Type: —
Dimensions: —
Floor Type: —
Full Bathrooms: 3
Bathroom Amenities: —
Bathroom in Basement: 0
Rooms: —
Basement Description: —
Other Specifics
| 2 | |
| — | |
| — | |
| — | |
| — | |
| 112X82X142X69 | |
| — | |
| — | |
| — | |
| — | |
| Not in DB | |
| — | |
| — | |
| — | |
| — |
Tax History
| Year | Property Taxes |
|---|---|
| 2010 | $2,024 |
| 2015 | $4,387 |
| 2025 | $6,667 |
Contact Agent
Nearby Similar Homes
Contact Agent
Listing Provided By
L.W. Reedy Real Estate


