2341 Saint Paul Avenue, West Town, Chicago, Illinois 60647
$1,375,000
|
For Sale
|
|
| Status: | Pending |
| Sqft: | 0 |
| Cost/Sqft: | — |
| Beds: | 4 |
| Baths: | 4 |
| Year Built: | 2026 |
| Property Taxes: | $7,500 |
| Days On Market: | 46 |
| Lot Size: | 0,00 |
Description
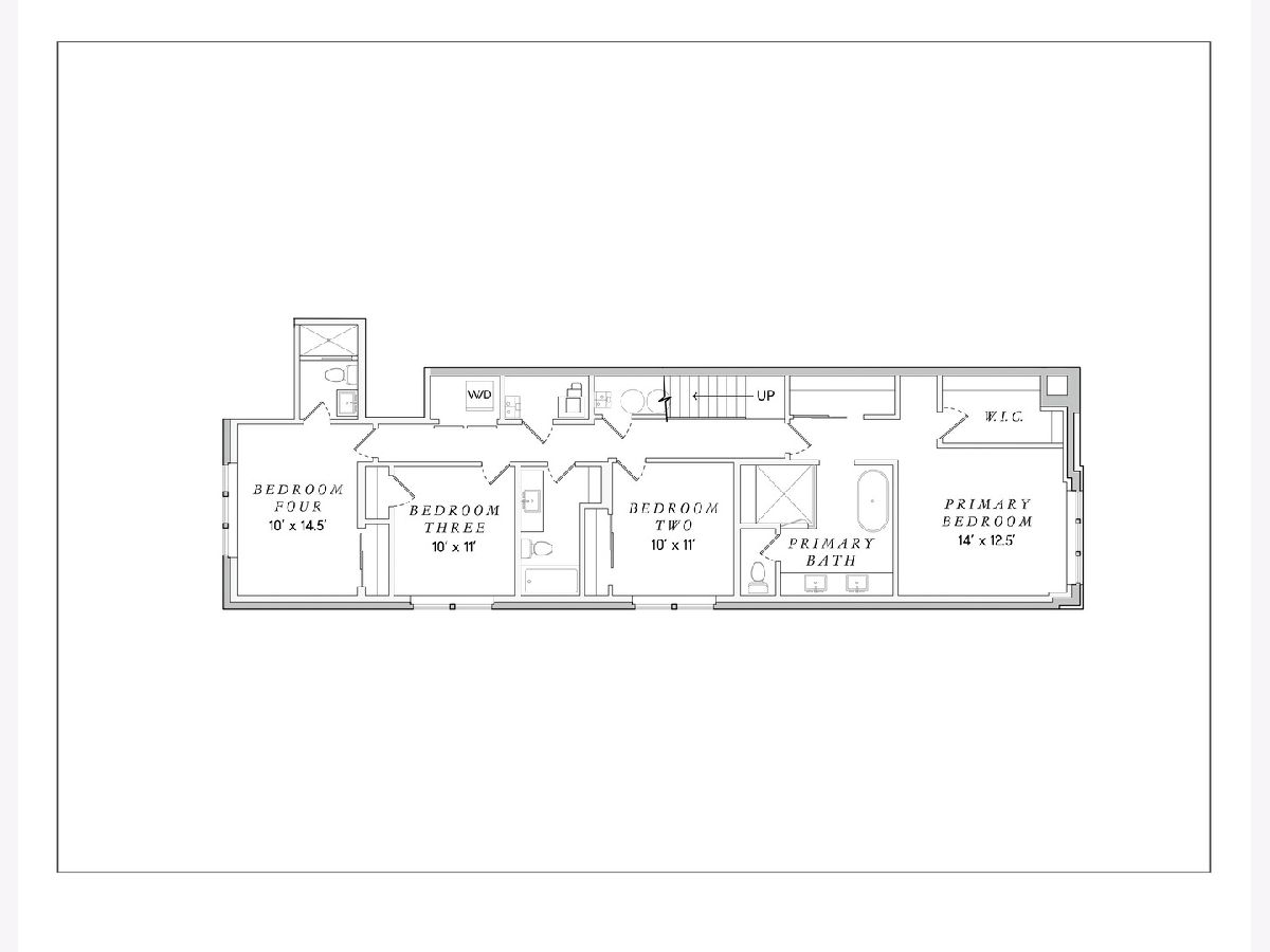
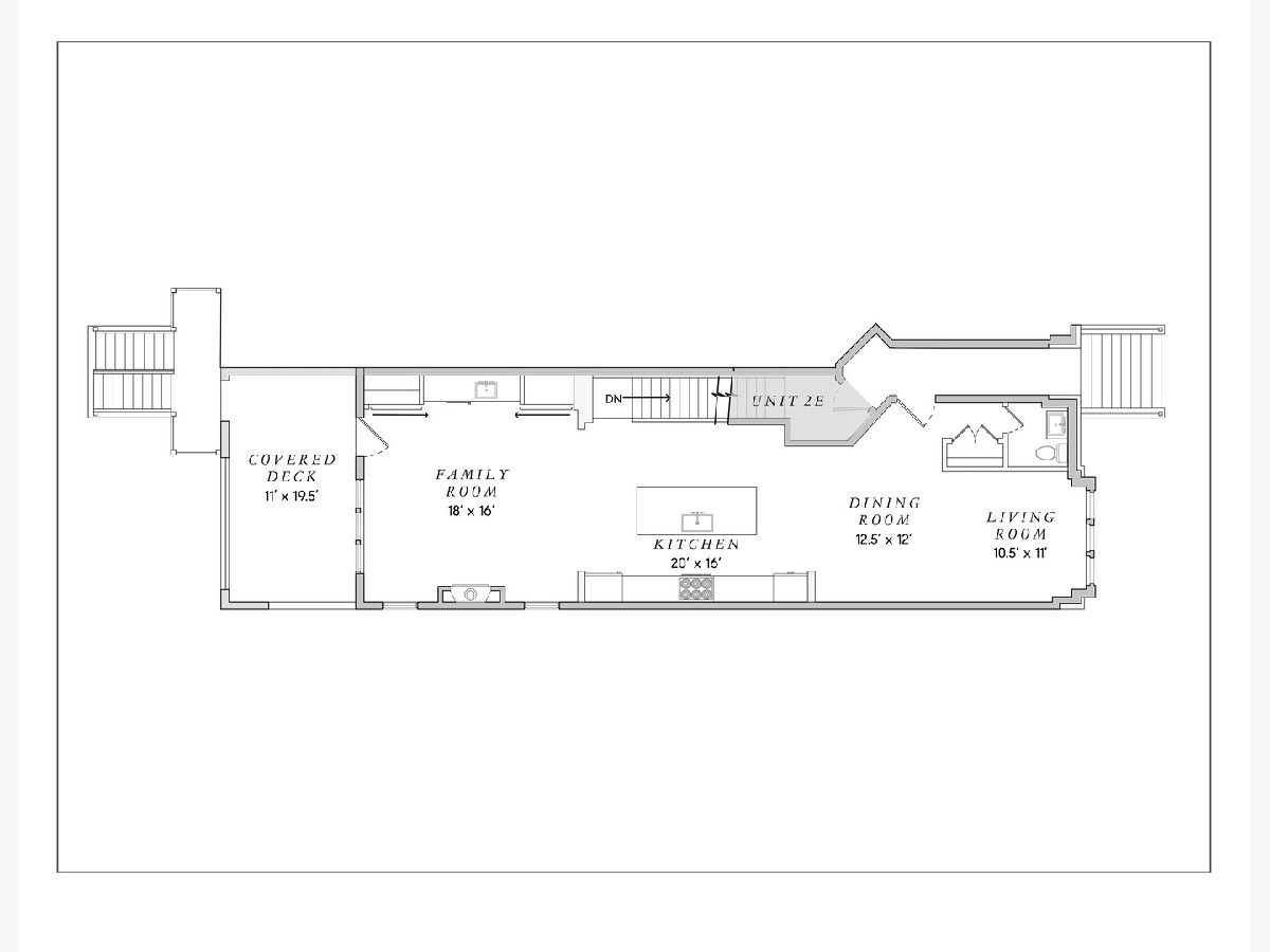
New Construction, duplex down designed by Studio Group, delivering in September 2026. Offering 4 bedrooms, 3.5 bathrooms, two incredible private outdoor spaces at a premiere Bucktown location, this one of kind home blends bold design, elite craftsmanship at an unbeatable location. The main floor is anchored by a showpiece kitchen with Wolf and Sub-Zero appliances, bespoke Amish cabinetry, a 10' island with brass detailing, two stunning gold pendants and designer hardware. The family room is elevated by a fireplace and a stunning architectural pocket bar with custom fluted doors & millwork concealing two closets flanking the wet bar with a Sub-Zero refrigerator, bar sink, antique tile backsplash, whitewashed oak shelves and lighting from Rejuvenation. The rear family room walks out onto an elegant covered rear porch, one of two private outdoor space. The second outdoor space is the private roof deck of the 2 car garage. The primary suite features a stunning bathroom with custom designed floating dual vanity, oversized brass mirror flanked by two elegant sconces and open shelves with brass hardware. The primary bath also features a steam shower, heated floors, separate soaking tub and water closet. Two oversized closets complete the luxury primary suite. The two middle bedrooms feature large windows and designed to accommodate bedroom, office and/or fitness programs. The middle bedrooms served by a full bath with a tub and floating vanity, open shelves and a linen closet. The fourth bedroom has an on-suite bathroom perfect for overnight guests. Hot water radiant heat on the lower level, high efficiency HVAC system with smart thermostat, hardwired security system included and fully pre-wired for audio & technology upgrades. All of this in the heart of Bucktown, around the corner from the 606 trail, Blue Line stop and the Milwaukee Ave. restaurants & shopping corridor. Professionally designed, with thoughtfully curated, top of the line finishes throughout and meticulous attention to detail, this is truly a one of kind home.
Property Specifics
| Condos/Townhomes | |
| 3 | |
| — | |
| 2026 | |
| — | |
| — | |
| No | |
| — |
| Cook | |
| — | |
| 300 / Monthly | |
| — | |
| — | |
| — | |
| 12587555 | |
| 14313190060000 |
Nearby Schools
| NAME: | DISTRICT: | DISTANCE: | |
|---|---|---|---|
|
Grade School
Pulaski International |
299 | — | |
|
Middle School
Pulaski International |
299 | Not in DB | |
|
High School
Clemente Community Academy Senio |
299 | Not in DB | |
Property History
| DATE: | EVENT: | PRICE: | SOURCE: |
|---|---|---|---|
| 8 Apr, 2026 | Under contract | $1,375,000 | MRED MLS |
| 9 Mar, 2026 | Listed for sale | $1,375,000 | MRED MLS |
Room Specifics
Total Bedrooms: 4
Bedrooms Above Ground: 4
Bedrooms Below Ground: 0
Dimensions: —
Floor Type: —
Dimensions: —
Floor Type: —
Dimensions: —
Floor Type: —
Full Bathrooms: 4
Bathroom Amenities: Separate Shower,Steam Shower,Double Sink,Soaking Tub
Bathroom in Basement: 1
Rooms: —
Basement Description: —
Other Specifics
| 1 | |
| — | |
| — | |
| — | |
| — | |
| Common | |
| — | |
| — | |
| — | |
| — | |
| Not in DB | |
| — | |
| — | |
| — | |
| — |
Tax History
| Year | Property Taxes |
|---|---|
| 2026 | $7,500 |
Contact Agent
Nearby Similar Homes
Nearby Sold Comparables
Contact Agent
Listing Provided By
@properties Christie's International Real Estate


