2737 Janssen Avenue, Lincoln Park, Chicago, Illinois 60614
$699,900
|
For Sale
|
|
| Status: | Contingent |
| Sqft: | 1,800 |
| Cost/Sqft: | $389 |
| Beds: | 2 |
| Baths: | 2 |
| Year Built: | 1989 |
| Property Taxes: | $11,960 |
| Days On Market: | 47 |
| Lot Size: | 0,00 |
Description
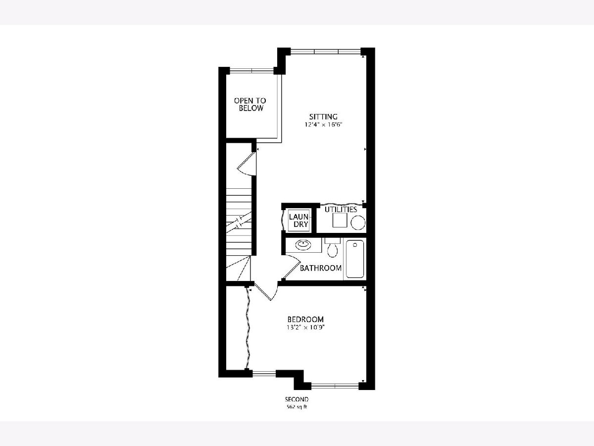
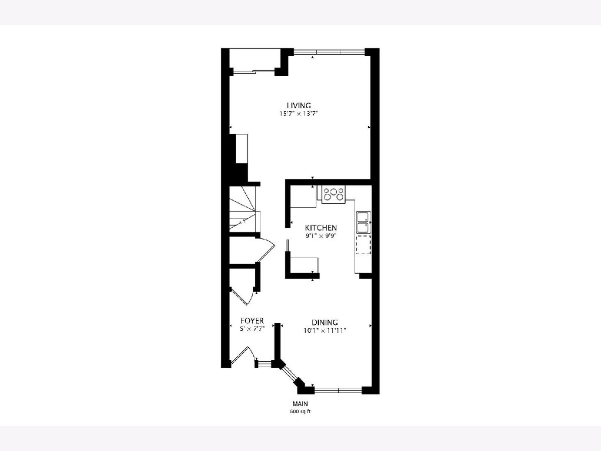
*******Multiple offers received. Seller requests highest and best by Wednesday at 5 pm. Please include proof of funds or pre approval letter with offer. Welcome to 2737 N Janssen Unit B, a bright and airy 2 bedroom, 2 bath townhome with a den that easily flexes as a family room or a third bedroom. Tucked into Lincoln Park's coveted Park Lane community, this home delivers the space, light, and livability you've been looking for. Step inside and feel the natural light pour through the main living level, where a comfortable fire-lit living room flows directly to a private, landscaped patio. The updated kitchen brings a clean, modern feel with white cabinetry, granite counters & backsplash, stainless appliances, under-cabinet lighting, leading into a formal dining area framed by a bay window. The top-floor primary suite feels like a private retreat with cathedral ceilings, a full walk-in closet with custom organizers, an ensuite bath with double vanities, large walk-in shower, & a terrace for morning coffee. The second bedroom sits upstairs on its own level with the second full bath featuring a whirlpool tub. The 2nd floor den makes a perfect media room, office, or third-bedroom option. Enjoy two outdoor spaces, in-unit laundry, one private garage space, plus an additional outdoor spot. Guest parking included in the community. A rare blend of comfort, function, and location in the heart of Lincoln Park. Picturesque tree lined street with access to tons of restaurants, shops and transport. A short walk to Southport Corridor and Wrightwood Park with sport courts & fields, a track, a playground & a public pool.
Property Specifics
| Condos/Townhomes | |
| 3 | |
| — | |
| 1989 | |
| — | |
| — | |
| No | |
| — |
| Cook | |
| — | |
| 339 / Monthly | |
| — | |
| — | |
| — | |
| 12530327 | |
| 14293021591055 |
Nearby Schools
| NAME: | DISTRICT: | DISTANCE: | |
|---|---|---|---|
|
Grade School
Prescott Elementary School |
299 | — | |
|
Middle School
Prescott Elementary School |
299 | Not in DB | |
|
High School
Lincoln Park High School |
299 | Not in DB | |
Property History
| DATE: | EVENT: | PRICE: | SOURCE: |
|---|---|---|---|
| 18 Dec, 2007 | Sold | $430,000 | MRED MLS |
| 26 Nov, 2007 | Under contract | $449,900 | MRED MLS |
| — | Last price change | $469,000 | MRED MLS |
| 10 Aug, 2007 | Listed for sale | $495,000 | MRED MLS |
| 28 Apr, 2016 | Sold | $525,000 | MRED MLS |
| 20 Mar, 2016 | Under contract | $524,900 | MRED MLS |
| 14 Mar, 2016 | Listed for sale | $524,900 | MRED MLS |
| 4 Nov, 2021 | Sold | $585,000 | MRED MLS |
| 24 Sep, 2021 | Under contract | $595,000 | MRED MLS |
| 15 Sep, 2021 | Listed for sale | $595,000 | MRED MLS |
| 17 Dec, 2025 | Under contract | $699,900 | MRED MLS |
| 9 Dec, 2025 | Listed for sale | $699,900 | MRED MLS |
Room Specifics
Total Bedrooms: 2
Bedrooms Above Ground: 2
Bedrooms Below Ground: 0
Dimensions: —
Floor Type: —
Full Bathrooms: 2
Bathroom Amenities: Whirlpool,Separate Shower,Double Sink,Soaking Tub
Bathroom in Basement: 0
Rooms: —
Basement Description: —
Other Specifics
| 1 | |
| — | |
| — | |
| — | |
| — | |
| COMMON | |
| — | |
| — | |
| — | |
| — | |
| Not in DB | |
| — | |
| — | |
| — | |
| — |
Tax History
| Year | Property Taxes |
|---|---|
| 2007 | $6,565 |
| 2016 | $7,880 |
| 2021 | $10,339 |
| 2025 | $11,960 |
Contact Agent
Nearby Similar Homes
Nearby Sold Comparables
Contact Agent
Listing Provided By
Compass


