3233 Jori Lane, Johnsburg, Illinois 60051
$471,280
|
For Sale
|
|
| Status: | Active |
| Sqft: | 2,203 |
| Cost/Sqft: | $214 |
| Beds: | 4 |
| Baths: | 3 |
| Year Built: | 2025 |
| Property Taxes: | $0 |
| Days On Market: | 76 |
| Lot Size: | 0,00 |
Description
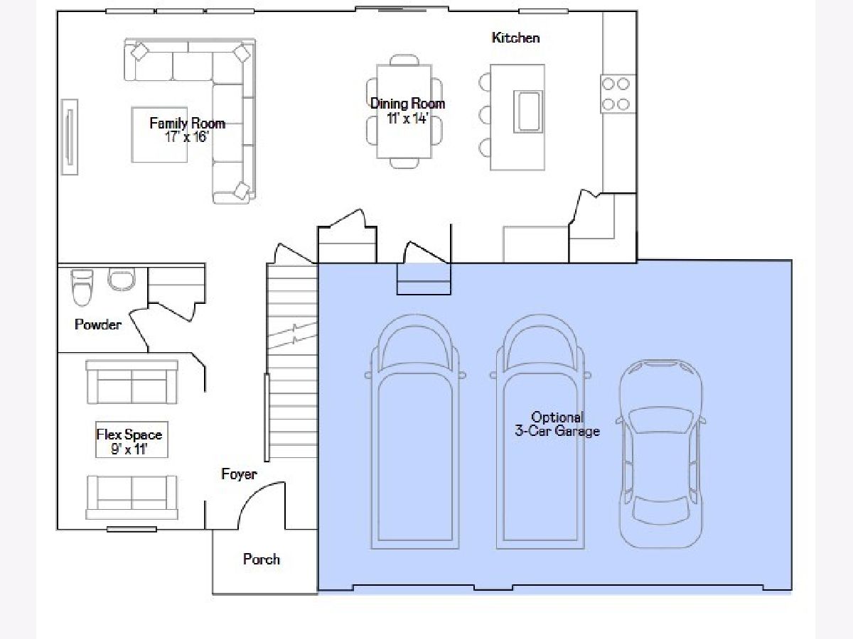
*Pre-construction Pricing and SPECIAL INCENTIVES AVAILABLE!* Homesite #0153. Unveil the Starling, an expertly constructed home where exceptional design blends effortlessly with everyday comfort. This airy design offers four bedrooms, two bathrooms, a powder room, and a versatile flex room, perfect for adapting to your lifestyle. Luxury vinyl plank flooring flows throughout the main living space, creating a warm and inviting atmosphere in the open-concept family room, dining area, and kitchen. The chef-inspired kitchen features stainless steel appliances, sleek 42" cabinetry, elegant quartz countertops, and a large island that serves as both a focal point and a functional workspace. A built-in pantry adds extra convenience and storage. The owner's suite, situated on the upper level, is an oasis with a generous walk-in closet and a spa-like en-suite bathroom. The bathroom includes double sinks and a deluxe shower, creating a luxurious space for relaxation. Three additional bedrooms share a full bathroom, and the convenience of a second-floor laundry room makes everyday tasks easier. The first floor features a flexible space that can be customized to fit your needs-whether it's a home office, dining room, or entertainment area, the possibilities are endless. Additionally, a standard three-car garage provides ample parking and storage Exterior will be Canyon color siding with Weather Ledge - Sagewood color stone. (pic for reference ONLY). *Photos are not this actual home* Welcome to Remington Grove - a welcoming new community in Johnsburg, IL. Surrounded by mature trees, ponds, and winding streets, Remington Grove offers thoughtfully designed single-family homes in a quiet neighborhood setting with walking paths and inviting green spaces throughout. Just minutes away, you can enjoy Johnsburg's small-town charm - with local shops, dining, and conveniences along Route 31, plus quick access to Walmart, ALDI, and HomeGoods. Outdoor recreation is all around you, from parks and sports fields to boating and fishing on Pistakee Lake and the Chain O' Lakes. Families appreciate the well-regarded Johnsburg School District 12, and commuters benefit from nearby Metra access in McHenry. Remington Grove blends natural beauty, community comfort, and everyday convenience - the best of life in Johnsburg.
Property Specifics
| Single Family | |
| — | |
| — | |
| 2025 | |
| — | |
| Starling C | |
| No | |
| — |
| — | |
| Remington Grove | |
| 540 / Annual | |
| — | |
| — | |
| — | |
| 12535350 | |
| 0000000000 |
Nearby Schools
| NAME: | DISTRICT: | DISTANCE: | |
|---|---|---|---|
|
Middle School
Johnsburg Junior High School |
12 | Not in DB | |
|
High School
Johnsburg High School |
12 | Not in DB | |
Property History
| DATE: | EVENT: | PRICE: | SOURCE: |
|---|---|---|---|
| — | Last price change | $466,280 | MRED MLS |
| 19 Dec, 2025 | Listed for sale | $466,280 | MRED MLS |
Room Specifics
Total Bedrooms: 4
Bedrooms Above Ground: 4
Bedrooms Below Ground: 0
Dimensions: —
Floor Type: —
Dimensions: —
Floor Type: —
Dimensions: —
Floor Type: —
Full Bathrooms: 3
Bathroom Amenities: —
Bathroom in Basement: 0
Rooms: —
Basement Description: —
Other Specifics
| 3 | |
| — | |
| — | |
| — | |
| — | |
| 15075 | |
| — | |
| — | |
| — | |
| — | |
| Not in DB | |
| — | |
| — | |
| — | |
| — |
Tax History
| Year | Property Taxes |
|---|
Contact Agent
Nearby Similar Homes
Nearby Sold Comparables
Contact Agent
Listing Provided By
HomeSmart Connect LLC


