3659 Union Avenue, Bridgeport, Chicago, Illinois 60609
$500,000
|
For Sale
|
|
| Status: | Active |
| Sqft: | 3,318 |
| Cost/Sqft: | $151 |
| Beds: | 3 |
| Baths: | 3 |
| Year Built: | 1896 |
| Property Taxes: | $6,962 |
| Days On Market: | 51 |
| Lot Size: | 0,00 |
Description
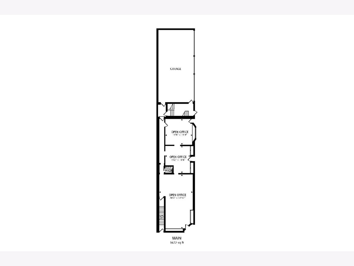
** Tremendous potential in this Bridgeport Gem ** Originally was a pharmacy on the first floor, Dr office on the 2nd floor, apartment on the 2nd floor ** 5 car garage ** 1st floor boasts 15' ceilings ** could be a great 2 or 3 flat or reimagined as a magnificent sfh** separate entrances front and back ** Over 3200 SQ FT ** Great bones ** Corner lot ** light and bright from every direction ** Full basement ** being sold as is with no requests but has been lovingly and consistently maintained over the years. Note: some of the pictures are the building in its current condition and some are modified to show what the possibilities are with some investment.
Property Specifics
| Single Family | |
| — | |
| — | |
| 1896 | |
| — | |
| — | |
| No | |
| — |
| Cook | |
| — | |
| — / Not Applicable | |
| — | |
| — | |
| — | |
| 12590817 | |
| 17333090240000 |
Property History
| DATE: | EVENT: | PRICE: | SOURCE: |
|---|---|---|---|
| — | Last price change | $550,000 | MRED MLS |
| 13 Mar, 2026 | Listed for sale | $550,000 | MRED MLS |
| 24 Apr, 2026 | Listed for sale | $500,000 | MRED MLS |
Room Specifics
Total Bedrooms: 3
Bedrooms Above Ground: 3
Bedrooms Below Ground: 0
Dimensions: —
Floor Type: —
Dimensions: —
Floor Type: —
Full Bathrooms: 3
Bathroom Amenities: —
Bathroom in Basement: 0
Rooms: —
Basement Description: —
Other Specifics
| 5 | |
| — | |
| — | |
| — | |
| — | |
| 23 x 125 | |
| — | |
| — | |
| — | |
| — | |
| Not in DB | |
| — | |
| — | |
| — | |
| — |
Tax History
| Year | Property Taxes |
|---|---|
| — | $6,962 |
Contact Agent
Nearby Similar Homes
Nearby Sold Comparables
Contact Agent
Listing Provided By
@properties Christies International Real Estate


