3835 Montrose Avenue, Irving Park, Chicago, Illinois 60618
$299,000
|
For Sale
|
|
| Status: | Contingent |
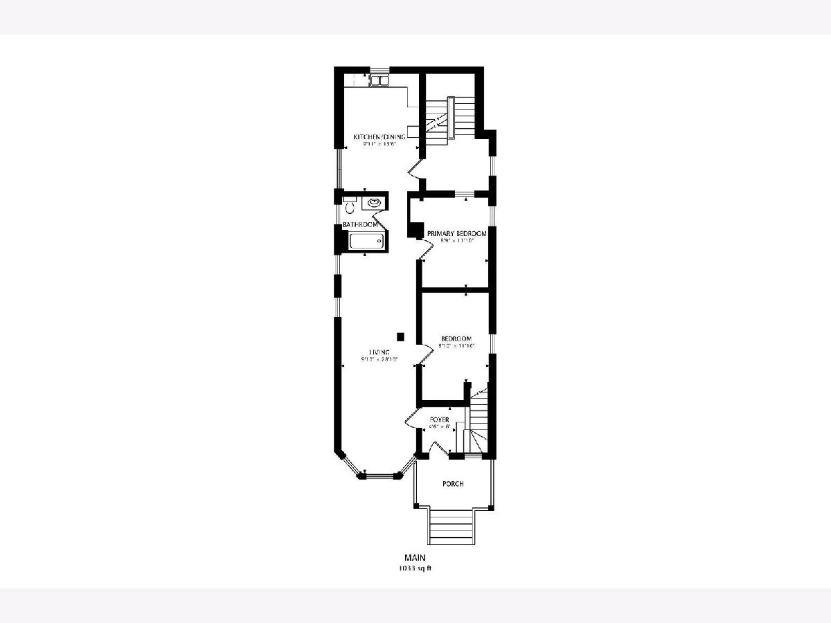
| Sqft: | 2,628 |
| Cost/Sqft: | $114 |
| Beds: | 3 |
| Baths: | 2 |
| Year Built: | 1908 |
| Property Taxes: | $10,079 |
| Days On Market: | 177 |
| Lot Size: | 0,00 |
Description
Endless potential in a prime Irving Park location. This 3-bedroom, 2-bath property offers 2,628 sq ft of living space on a 3,750 sq ft corner lot and is ready for a full gut renovation. Ideal for investors or buyers looking for a value-add project in a rapidly appreciating area. While the home needs extensive work, it offers great upside given its location and surrounding development. The corner lot allows for flexible design options and includes space for a future garage. Whether you're an experienced renovator or a first-time buyer ready for a big project, this home is your chance to restore and re-imagine a Chicago property. Conveniently located on Montrose Avenue, building a primary access on Avers would be next door to new construction that recently sold for over $850,000. Lot and square footage estimates based on public records. This is an estate sales and being Sold as-is
Property Specifics
| Single Family | |
| — | |
| — | |
| 1908 | |
| — | |
| — | |
| No | |
| — |
| Cook | |
| — | |
| — / Not Applicable | |
| — | |
| — | |
| — | |
| 12528279 | |
| 13143020090000 |
Property History
| DATE: | EVENT: | PRICE: | SOURCE: |
|---|---|---|---|
| 21 Jun, 2013 | Sold | $100,000 | MRED MLS |
| 6 May, 2013 | Under contract | $139,900 | MRED MLS |
| 12 Apr, 2013 | Listed for sale | $139,900 | MRED MLS |
| 16 Apr, 2026 | Under contract | $299,000 | MRED MLS |
| — | Last price change | $315,000 | MRED MLS |
| 5 Dec, 2025 | Listed for sale | $315,000 | MRED MLS |
Room Specifics
Total Bedrooms: 3
Bedrooms Above Ground: 3
Bedrooms Below Ground: 0
Dimensions: —
Floor Type: —
Dimensions: —
Floor Type: —
Full Bathrooms: 2
Bathroom Amenities: —
Bathroom in Basement: 0
Rooms: —
Basement Description: —
Other Specifics
| 0 | |
| — | |
| — | |
| — | |
| — | |
| 35 x 125 | |
| — | |
| — | |
| — | |
| — | |
| Not in DB | |
| — | |
| — | |
| — | |
| — |
Tax History
| Year | Property Taxes |
|---|---|
| 2013 | $5,750 |
| 2026 | $10,079 |
Contact Agent
Nearby Similar Homes
Nearby Sold Comparables
Contact Agent
Listing Provided By
Compass


