500 Superior Street, Near North Side, Chicago, Illinois 60654
$445,000
|
For Sale
|
|
| Status: | New |
| Sqft: | 1,086 |
| Cost/Sqft: | $410 |
| Beds: | 2 |
| Baths: | 2 |
| Year Built: | 1974 |
| Property Taxes: | $8,876 |
| Days On Market: | 3 |
| Lot Size: | 0,00 |
Description
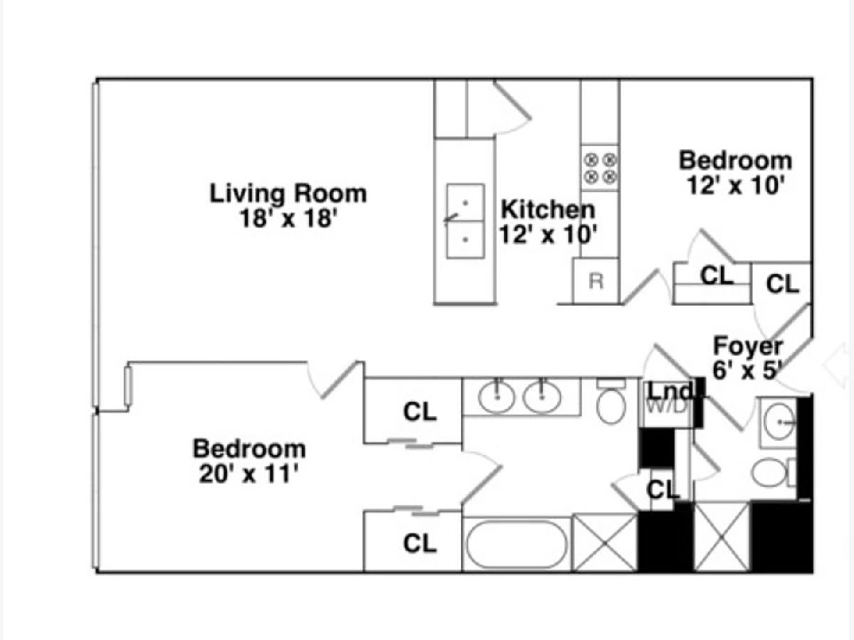
Overlooking Montgomery Ward Park, the Chicago River and the River North Skyline, this coveted south facing 2bed 2bath unit at The Montgomery is the elegant home you've been waiting to hit this spring's downtown market. Vast 10' ceilings, hard wood floors in the common areas, stunning trim and crown molding elevate the living room. With space for a dining table or a work from home station, breakfast bar off the kitchen and a pantry closet in the kitchen, this unit is both adaptive and organized for easy living. All stainless kitchen appliances were updated in 2020, as well as custom backsplash. Primary suite showcases the incredible views also seen in the living room. Plenty of space for king sized bed with dressers. Closets flank entry to a true primary bathroom suite, with dual vanities, large jet soaking tub, walk in shower and a dedicated linen closet. Second bedroom is spacious for both use as sleeping area or office. Additional features include, entry foyer, in unit laundry, and smart thermostat. Deeded garage parking for additional $35k, located on the first level of parking for ease of entry and exit. All utilities are included in HOA except electricity. The Montgomery is a fully amenity building with constant 24 hour door staff, full gym, dog run, private outdoor patio and lawn with grills and firepits, rooftop garden. Located in the heart of the Montgomery Ward neighborhood with Starbucks, Solid Core Pilates, Kriser's pet shop, BIAN, the Chicago River walk +dog park and so much more are right next door.
Property Specifics
| Condos/Townhomes | |
| 28 | |
| — | |
| 1974 | |
| — | |
| — | |
| No | |
| — |
| Cook | |
| Montgomery | |
| 1144 / Monthly | |
| — | |
| — | |
| — | |
| 12605840 | |
| 17091140211098 |
Property History
| DATE: | EVENT: | PRICE: | SOURCE: |
|---|---|---|---|
| 27 Jan, 2010 | Sold | $418,000 | MRED MLS |
| 30 Nov, 2009 | Under contract | $425,000 | MRED MLS |
| 5 Nov, 2009 | Listed for sale | $425,000 | MRED MLS |
| 25 Apr, 2024 | Sold | $485,000 | MRED MLS |
| 22 Mar, 2024 | Under contract | $490,000 | MRED MLS |
| 21 Mar, 2024 | Listed for sale | $490,000 | MRED MLS |
| 31 Mar, 2026 | Listed for sale | $445,000 | MRED MLS |
Room Specifics
Total Bedrooms: 2
Bedrooms Above Ground: 2
Bedrooms Below Ground: 0
Dimensions: —
Floor Type: —
Full Bathrooms: 2
Bathroom Amenities: Separate Shower,Double Sink,Soaking Tub
Bathroom in Basement: —
Rooms: —
Basement Description: —
Other Specifics
| 1 | |
| — | |
| — | |
| — | |
| — | |
| COMMON | |
| — | |
| — | |
| — | |
| — | |
| Not in DB | |
| — | |
| — | |
| — | |
| — |
Tax History
| Year | Property Taxes |
|---|---|
| 2010 | $4,291 |
| 2024 | $10,016 |
| 2026 | $8,876 |
Contact Agent
Nearby Similar Homes
Nearby Sold Comparables
Contact Agent
Listing Provided By
@properties Christie's International Real Estate


