5850 Indiana Avenue, Washington Park, Chicago, Illinois 60637
$590,000
|
For Sale
|
|
| Status: | Active |
| Sqft: | 0 |
| Cost/Sqft: | — |
| Beds: | 8 |
| Baths: | 0 |
| Year Built: | 1895 |
| Property Taxes: | $871 |
| Days On Market: | 28 |
| Lot Size: | 0,11 |
Description
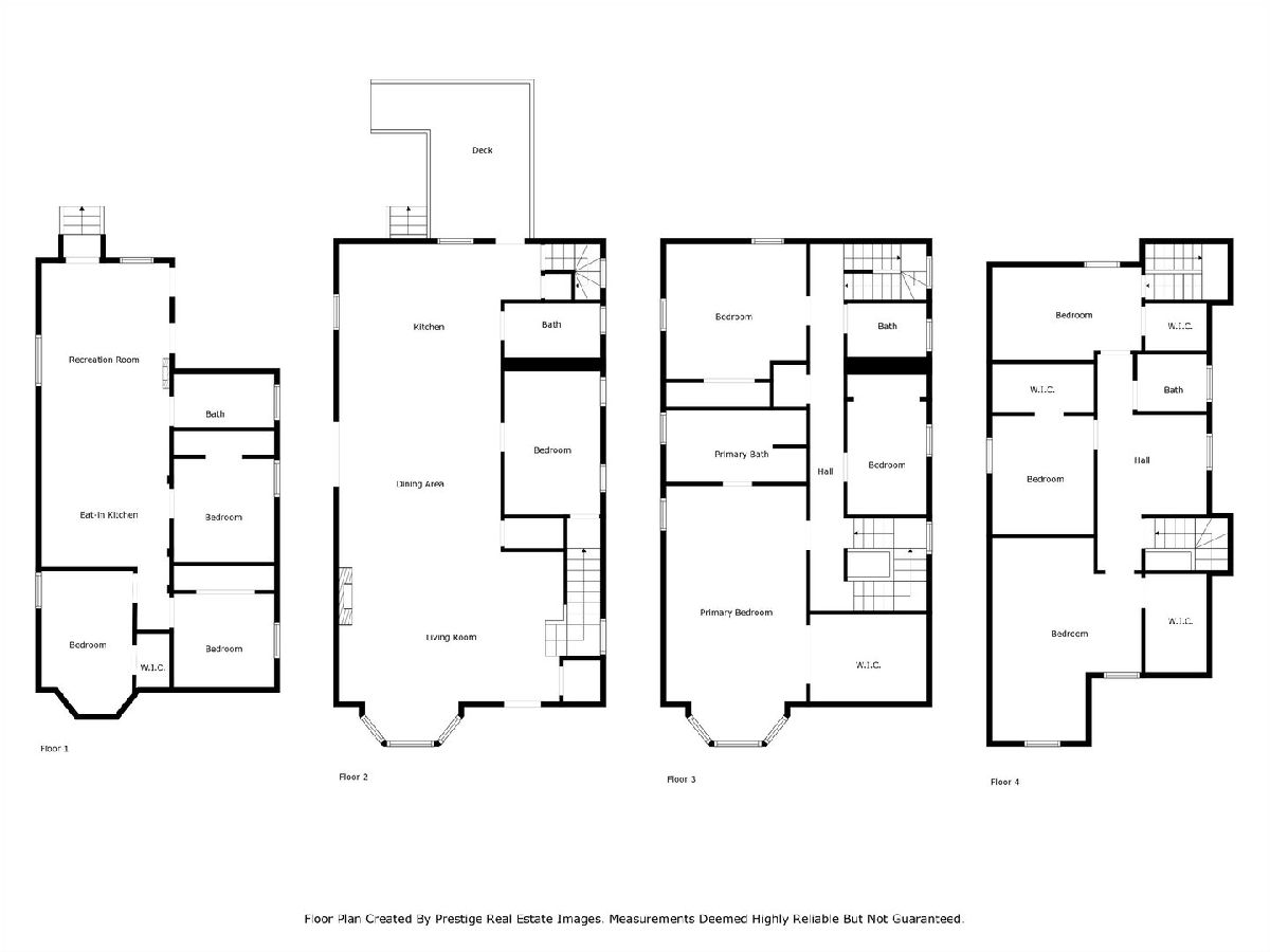
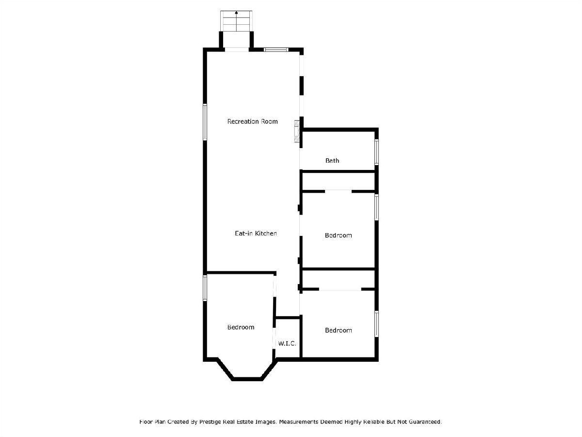
Stunning 5-Bedroom / 3.5-bathroom Colonial Style property with a three bedroom / one-bathroom in-law suite, located in the Washington Park neighborhood. Take advantage of the Super low property taxes and Currently Low interest rates to secure this gorgeous home on a 32X150 Oversized lot. Family moments are best spent at HOME and I'm here to tell you that this is the HOME of your dreams. This expansive residence sits in an oversized lot (32X150) and offers eight generously sized bedrooms (5 above grade and 3 in basement) plus a loft currently serving as an office, and a TV Room/Den along with 4.5 impeccably updated bathrooms (one of them in the basement). The main level flows with effortless elegance, from the formal living and dining areas to the elegant kitchen to the cozy corners made for quiet conversation or lively entertaining outdoors. This storybook Colonial gem's exquisite renovation is a great marriage between timeless architecture and modern comfort. Anchored by a grand spiral staircase worthy of Architectural Digest. Filled with light, grace, and purpose, this home is a stunning tribute to design evolution-a thoughtful preservation of its original intent, now elevated for contemporary living. On the second level, the sprawling master suite complete with a walk-in closet and a spa-like bath, features a soaking tub and separate glass-enclosed shower. But what sets this home apart is the in-law suite in the lower level-a fully equipped secondary residence with a full kitchen, three oversized bedrooms, a full bath, and its own private entrance. Whether you're welcoming extended family, housing guests, or exploring rental income, this space offers remarkable flexibility and comfort. It's fascinating how a home can evolve-how each owner leaves a mark. Here, however, the essence has been lovingly preserved, enhanced only to suit the rhythm of today's lifestyle. Moments matter. Family matters. And this is the kind of home that holds them all beautifully. Come see why this hidden Colonial gem isn't just a house-it's the one you've been waiting for. (zoned SF)
Property Specifics
| Multi-unit | |
| — | |
| — | |
| 1895 | |
| — | |
| Classic Colonial | |
| No | |
| 0.11 |
| Cook | |
| — | |
| — / — | |
| — | |
| — | |
| — | |
| 12485047 | |
| 20151210320000 |
Nearby Schools
| NAME: | DISTRICT: | DISTANCE: | |
|---|---|---|---|
|
Grade School
Carter Elementary School |
299 | — | |
|
Middle School
Woodlawn Elementary School Commu |
299 | Not in DB | |
|
High School
Phillips Academy High School |
299 | Not in DB | |
Property History
| DATE: | EVENT: | PRICE: | SOURCE: |
|---|---|---|---|
| 19 Jul, 2010 | Sold | $18,000 | MRED MLS |
| 3 Jun, 2010 | Under contract | $13,900 | MRED MLS |
| 7 May, 2010 | Listed for sale | $13,900 | MRED MLS |
| 1 Oct, 2025 | Listed for sale | $590,000 | MRED MLS |
| 3 Oct, 2025 | Listed for sale | $590,000 | MRED MLS |
Room Specifics
Total Bedrooms: 8
Bedrooms Above Ground: 8
Bedrooms Below Ground: 0
Dimensions: —
Floor Type: —
Dimensions: —
Floor Type: —
Dimensions: —
Floor Type: —
Dimensions: —
Floor Type: —
Dimensions: —
Floor Type: —
Dimensions: —
Floor Type: —
Dimensions: —
Floor Type: —
Full Bathrooms: 5
Bathroom Amenities: Whirlpool,Separate Shower,Soaking Tub
Bathroom in Basement: 0
Rooms: —
Basement Description: —
Other Specifics
| 2 | |
| — | |
| — | |
| — | |
| — | |
| 32X150 | |
| — | |
| — | |
| — | |
| — | |
| Not in DB | |
| — | |
| — | |
| — | |
| — |
Tax History
| Year | Property Taxes |
|---|---|
| 2010 | $3,220 |
| 2025 | $871 |
Contact Agent
Nearby Similar Homes
Contact Agent
Listing Provided By
MPower Residential Brokerage LLC


