6144 Maplewood Avenue, West Ridge, Chicago, Illinois 60659
$688,000
|
For Sale
|
|
| Status: | Contingent |
| Sqft: | 2,750 |
| Cost/Sqft: | $250 |
| Beds: | 3 |
| Baths: | 3 |
| Year Built: | 1923 |
| Property Taxes: | $6,772 |
| Days On Market: | 59 |
| Lot Size: | 0,00 |
Description
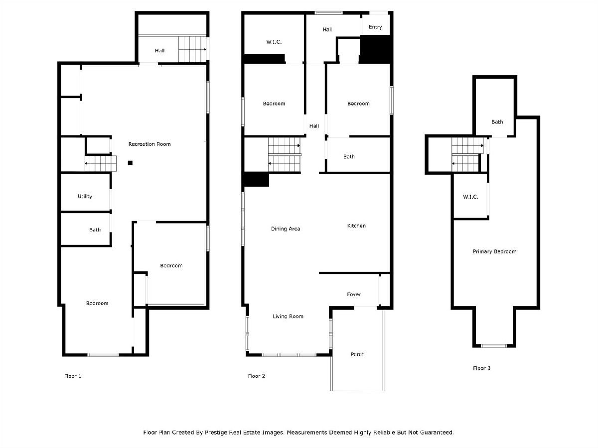
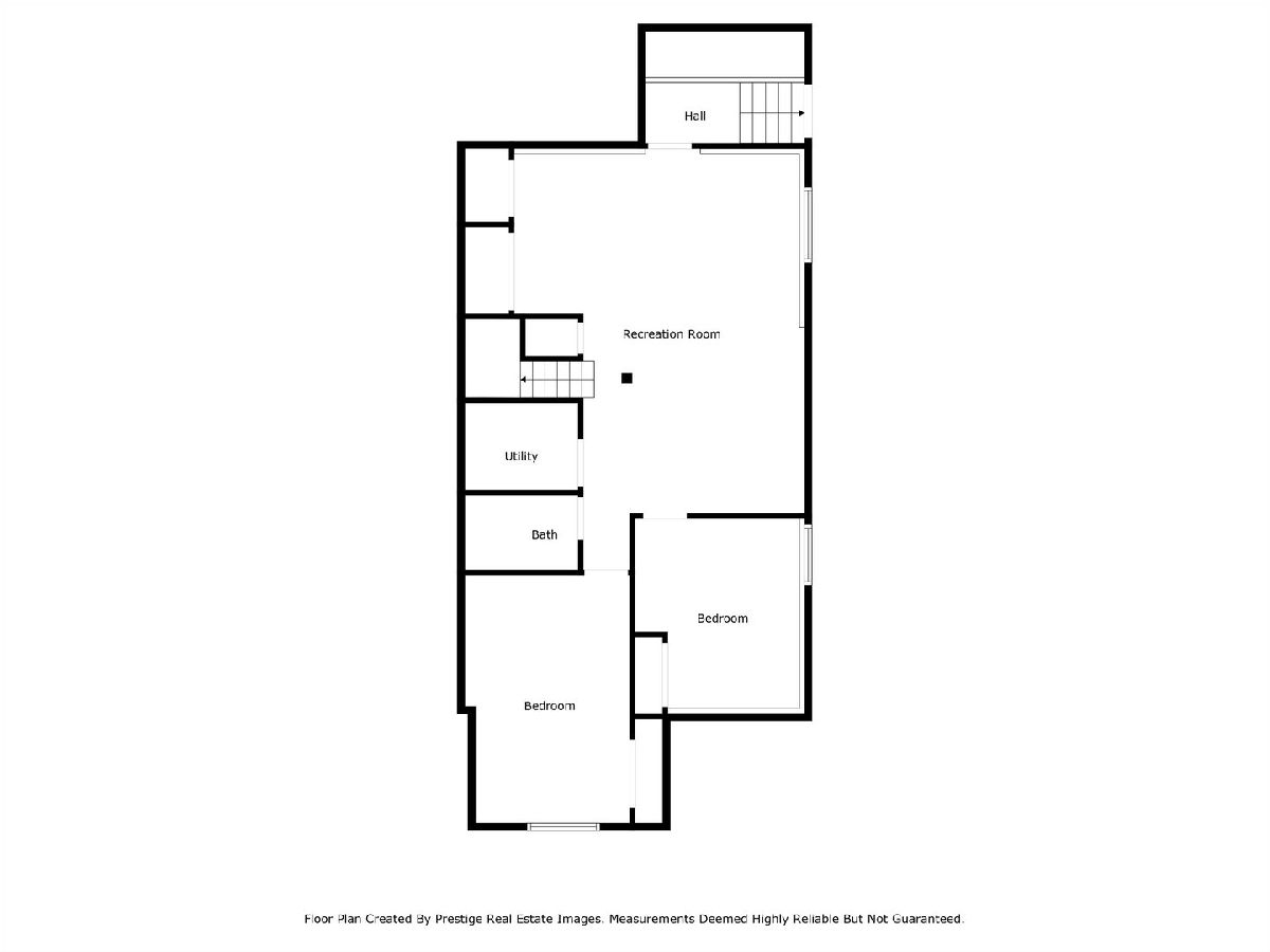
Experience timeless Chicago charm redefined at 6144 N Maplewood Avenue. This quintessential brick bungalow has been fully reimagined with a brand-new gut renovation, blending historic character with contemporary elegance. Situated on a quiet one-way street just two blocks from vibrant Devon Avenue, you'll find yourself walking distance to the city's finest restaurants and cultural destinations. The main level showcases a gourmet chef's kitchen with quartz countertops and two-tone cabinets, two spacious bedrooms, a dedicated mudroom, and a bathroom featuring meticulous tiling and luxury finishes. Upstairs, the master suite spans the entire floor, offering a private retreat with exceptional scale and comfort. The lower level boasts impressive ceiling height, a large family room with a wet bar, 2 oversized bedrooms, and another beautiful full bath, creating versatile living and entertaining spaces. Outdoors, enjoy crisp fall nights on your new patio, paired with the convenience of a brand-new two-car garage. Every detail has been carefully curated, making this residence a rare blend of classic architecture and modern luxury living. Nothing to do but move in and enjoy! Book your showing today.
Property Specifics
| Single Family | |
| — | |
| — | |
| 1923 | |
| — | |
| — | |
| No | |
| — |
| Cook | |
| — | |
| — / Not Applicable | |
| — | |
| — | |
| — | |
| 12546642 | |
| 13012200240000 |
Property History
| DATE: | EVENT: | PRICE: | SOURCE: |
|---|---|---|---|
| 11 Feb, 2026 | Under contract | $688,000 | MRED MLS |
| 13 Jan, 2026 | Listed for sale | $688,000 | MRED MLS |
Room Specifics
Total Bedrooms: 5
Bedrooms Above Ground: 3
Bedrooms Below Ground: 2
Dimensions: —
Floor Type: —
Dimensions: —
Floor Type: —
Dimensions: —
Floor Type: —
Dimensions: —
Floor Type: —
Full Bathrooms: 3
Bathroom Amenities: —
Bathroom in Basement: 1
Rooms: —
Basement Description: —
Other Specifics
| 2 | |
| — | |
| — | |
| — | |
| — | |
| 25x125 | |
| — | |
| — | |
| — | |
| — | |
| Not in DB | |
| — | |
| — | |
| — | |
| — |
Tax History
| Year | Property Taxes |
|---|---|
| 2026 | $6,772 |
Contact Agent
Nearby Similar Homes
Nearby Sold Comparables
Contact Agent
Listing Provided By
Keller Williams Preferred Rlty


