[Address Unavailable], Chatham, Chicago, Illinois 60620
$695,000
|
For Sale
|
|
| Status: | Active |
| Sqft: | 0 |
| Cost/Sqft: | — |
| Beds: | 9 |
| Baths: | 0 |
| Year Built: | 2026 |
| Property Taxes: | $0 |
| Days On Market: | 21 |
| Lot Size: | 0,00 |
Description
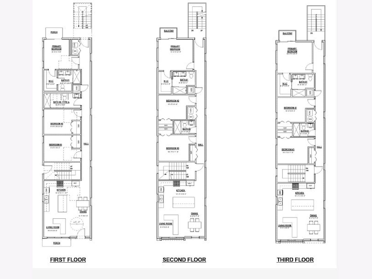
Simeon Manor Contemporary New Construction in West Chatham Owner-Occupant Buyers Only for one of four 3-unit residential buildings offering three spacious units, each featuring 3 bedrooms and 2 full bathrooms with open-concept layouts. Designed for modern living, each unit includes private outdoor deck space and high-quality finishes throughout. Kitchens feature stainless steel appliances, induction stove with built-in air fryer, soft-close cabinetry, and premium quartz countertops. Units also include in-unit washer and dryer, video intercom system, recessed lighting throughout, and ceiling fans where appropriate. Built with a high-performance building envelope, the property includes high-efficiency HVAC systems, central air, energy-efficient water heaters, double-pane windows, foam insulation in exterior walls and ceilings, and low-flow plumbing fixtures-enhancing comfort while reducing long-term operating costs. Additional features include premium wood grain luxury vinyl flooring throughout and three assigned parking spaces. Developer offering $15,000 closing cost assistance. Owner-occupant buyers only will participate in landlord and real estate ownership training classes designed to support successful ownership and long-term investment performance.
Property Specifics
| Multi-unit | |
| — | |
| — | |
| 2026 | |
| — | |
| — | |
| No | |
| — |
| Cook | |
| — | |
| — / — | |
| — | |
| — | |
| — | |
| 12609132 | |
| 20331120370000 |
Nearby Schools
| NAME: | DISTRICT: | DISTANCE: | |
|---|---|---|---|
|
Grade School
Wescott Elementary School |
30 | — | |
|
Middle School
Mcdade Elementary School Classic |
299 | Not in DB | |
|
High School
Simeon Career Academy High Schoo |
299 | Not in DB | |
Property History
| DATE: | EVENT: | PRICE: | SOURCE: |
|---|
Room Specifics
Total Bedrooms: 9
Bedrooms Above Ground: 9
Bedrooms Below Ground: 0
Dimensions: —
Floor Type: —
Dimensions: —
Floor Type: —
Dimensions: —
Floor Type: —
Dimensions: —
Floor Type: —
Dimensions: —
Floor Type: —
Dimensions: —
Floor Type: —
Dimensions: —
Floor Type: —
Dimensions: —
Floor Type: —
Full Bathrooms: 6
Bathroom Amenities: —
Bathroom in Basement: 0
Rooms: —
Basement Description: —
Other Specifics
| — | |
| — | |
| — | |
| — | |
| — | |
| 24 X 125 | |
| — | |
| — | |
| — | |
| — | |
| Not in DB | |
| — | |
| — | |
| — | |
| — |
Tax History
| Year | Property Taxes |
|---|
Contact Agent
Nearby Similar Homes
Nearby Sold Comparables
Contact Agent
Listing Provided By
Village Realty, Inc.


