1050 Fry Street, West Town, Chicago, Illinois 60642
$960,000
|
Sold
|
|
| Status: | Closed |
| Sqft: | 2,600 |
| Cost/Sqft: | $365 |
| Beds: | 3 |
| Baths: | 3 |
| Year Built: | 2001 |
| Property Taxes: | $13,264 |
| Days On Market: | 299 |
| Lot Size: | 0,00 |
Description
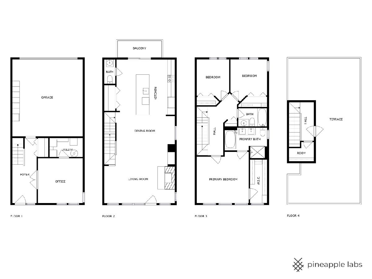
Live in ultimate luxury with this outstanding extra wide end unit 3 bedroom plus office townhome in highly desirable St. John's Park in sought after River West. This home is meticulous, complete sophistication throughout with newly renovated chef's kitchen, lavish primary bath and stunning huge roof deck with outstanding city views! 3 private outdoor spaces, 2 car garage situated on a quiet tree lined street, makes this a bucolic community to call home. Situated next to a beautifully landscaped neighborhood courtyard, arrive into designer details galore from your private front garden. Chic lighting fixtures and high-end door handles showcase expert craftsmanship and attention to detail throughout as French doors welcome you into the stylish family room currently being used as an office. Ascend into an outstanding newly built open kitchen, dining room/living room concept with new red oak white-wash hardwood floors, new black iron ballasts, freshly painted everywhere and decorative crown molding. South facing custom transoms over the windows stream with natural light into the living room and 10ft ceilings create an inviting 2nd level. Newly built marble hearth fireplace, custom built-ins, Sonance Surround Sound throughout generates a welcoming environment for relaxing. The new innovative kitchen is absolutely stunning. It features an oversized 2 1/2 inch Quartz island, a marble and gold inlay backsplash, and Subzero, Wolf, and Bosch stainless steel appliances. You'll also find a Kohler sink and faucet, solid wood cabinets with soft-close hinges, and a huge, organized pantry. A grill is conveniently located just off the back deck. Plus, the nearby powder room and connected dining room make this space perfect for entertaining. The 3rd level has 3 bedrooms, which includes a refined primary suite with elegant curtains, a walk-in closet and new lavish spa-like bathroom so luxurious you'll never want to leave! Enjoy soaking in a new contemporary tub or deluxe shower complete with full body sprays from Kohler, Moen fixtures, bamboo Quartz tile, double vanity, double high end medicine cabinets and polished ceramic floors. 2 more additional tasteful bedrooms with built out closets and 2nd bath concludes this level with storage on the 4th level. This home has tons of closet space and a substantial laundry room with side-by-side washer/dryer and lots of shelving. Don't miss the most prominent roof deck in Chicago! This is the largest outdoor area in the complex and has exceptional panoramic views with 3 distinct spaces, built in planter boxes and melodic bells nearby. Unwind and dine. Tucked away from the hustle and bustle, this hidden gem sits in a serene, charming courtyard community. Close to the Blue Line and offers easy access to I-90/94. Grocery stores, local coffee shops, and a wide array of amazing bars and restaurants nearby. Located within the highly regarded Ogden School District, this home offers access to one of the city's top-rated public schools. This impressive home has so much to offer -- don't miss this urban oasis!
Property Specifics
| Condos/Townhomes | |
| 4 | |
| — | |
| 2001 | |
| — | |
| — | |
| No | |
| — |
| Cook | |
| St Johns Park | |
| 368 / Monthly | |
| — | |
| — | |
| — | |
| 12408832 | |
| 17054130460000 |
Nearby Schools
| NAME: | DISTRICT: | DISTANCE: | |
|---|---|---|---|
|
Grade School
Ogden Elementary |
299 | — | |
|
High School
Ogden International |
299 | Not in DB | |
Property History
| DATE: | EVENT: | PRICE: | SOURCE: |
|---|---|---|---|
| 28 Mar, 2014 | Sold | $620,000 | MRED MLS |
| 29 Jan, 2014 | Under contract | $619,000 | MRED MLS |
| 22 Jan, 2014 | Listed for sale | $619,000 | MRED MLS |
| 10 Aug, 2022 | Sold | $800,000 | MRED MLS |
| 18 Jul, 2022 | Under contract | $810,000 | MRED MLS |
| — | Last price change | $820,000 | MRED MLS |
| 8 Jul, 2022 | Listed for sale | $820,000 | MRED MLS |
| 14 Aug, 2025 | Sold | $960,000 | MRED MLS |
| 3 Jul, 2025 | Under contract | $950,000 | MRED MLS |
| 1 Jul, 2025 | Listed for sale | $950,000 | MRED MLS |
Room Specifics
Total Bedrooms: 3
Bedrooms Above Ground: 3
Bedrooms Below Ground: 0
Dimensions: —
Floor Type: —
Dimensions: —
Floor Type: —
Full Bathrooms: 3
Bathroom Amenities: Double Sink,Full Body Spray Shower,Soaking Tub
Bathroom in Basement: 0
Rooms: —
Basement Description: —
Other Specifics
| 2 | |
| — | |
| — | |
| — | |
| — | |
| 1435 | |
| — | |
| — | |
| — | |
| — | |
| Not in DB | |
| — | |
| — | |
| — | |
| — |
Tax History
| Year | Property Taxes |
|---|---|
| 2014 | $7,576 |
| 2022 | $12,742 |
| 2025 | $13,264 |
Contact Agent
Contact Agent
Listing Provided By
Coldwell Banker Realty


