1216 Betsy Ross Place, Bolingbrook, Illinois 60490
$445,000
|
Sold
|
|
| Status: | Closed |
| Sqft: | 2,172 |
| Cost/Sqft: | $207 |
| Beds: | 3 |
| Baths: | 3 |
| Year Built: | 2007 |
| Property Taxes: | $9,520 |
| Days On Market: | 1766 |
| Lot Size: | 0,00 |
Description
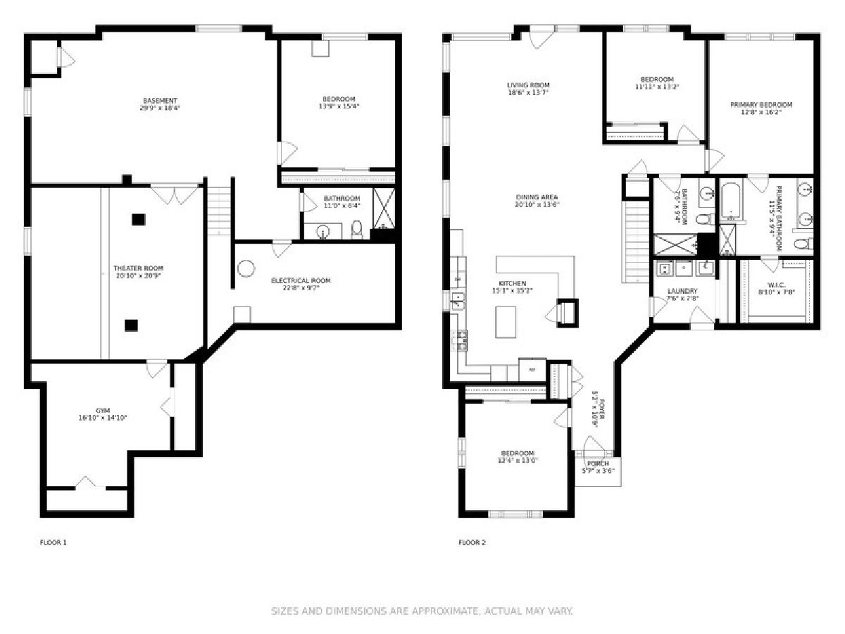
Exceptional END UNIT Denali Model in the sought after Patriot's Place with an open floor plan and high end finishing touches throughout. The Denali model is the largest floor plan offered featuring 3 spacious bedrooms on main level 3 full baths plus a full high-end LOOK OUT FINISHED BASEMENT with an additional 4th bedroom. Bright, Open floor-plan with soaring Vaulted Ceilings , newer Hardwood Floors on main level, wrought iron spindles, painted in soothing Sherwin Williams colors, new stunning light fixtures and stylish white wainscoting completes the look. Kitchen features on trend white cabinetry, huge Breakfast Bar, Center Island, Granite Countertops ,newer stainless steel appliances including a double oven & convenient pull out garbage & lazy Susan. Relaxing Master Suite features en suite master bath with luxury soaking tub, stand up shower & Walk-In Closet with custom organizational built ins. Fantastic lower Level features recreation space with pool table that stays, Home Theatre including screen & projector with surround sound, Work Out Room, 4th Bedroom next to the full bath & huge storage space. Sleek garage complete with electric car charging station & epoxy flooring. Newer French doors lead to your Private plush backyard with TREX DECK (the largest deck space allowed in the subdivision)- sprinkler system, snow shoveling, landscaping, exterior painting & roof maintenance taken care of by the HOA. Located adjacent to the Bolingbrook Golf Course. A stunning community attending award winning district 202 schools. A must see!
Property Specifics
| Condos/Townhomes | |
| 1 | |
| — | |
| 2007 | |
| Full,English | |
| DENALI | |
| No | |
| — |
| Will | |
| Patriot Place | |
| 291 / Monthly | |
| Insurance,Exterior Maintenance,Lawn Care,Snow Removal | |
| Lake Michigan | |
| Public Sewer | |
| 11169764 | |
| 0701253040391001 |
Nearby Schools
| NAME: | DISTRICT: | DISTANCE: | |
|---|---|---|---|
|
Grade School
Bess Eichelberger Elementary Sch |
202 | — | |
|
Middle School
John F Kennedy Middle School |
202 | Not in DB | |
|
High School
Plainfield East High School |
202 | Not in DB | |
Property History
| DATE: | EVENT: | PRICE: | SOURCE: |
|---|---|---|---|
| 22 Jul, 2015 | Sold | $359,000 | MRED MLS |
| 3 May, 2015 | Under contract | $374,900 | MRED MLS |
| 31 Mar, 2015 | Listed for sale | $374,900 | MRED MLS |
| 15 Sep, 2021 | Sold | $445,000 | MRED MLS |
| 2 Aug, 2021 | Under contract | $450,000 | MRED MLS |
| 29 Jul, 2021 | Listed for sale | $450,000 | MRED MLS |
| 15 Apr, 2026 | Under contract | $549,900 | MRED MLS |
| 7 Apr, 2026 | Listed for sale | $549,900 | MRED MLS |
Room Specifics
Total Bedrooms: 4
Bedrooms Above Ground: 3
Bedrooms Below Ground: 1
Dimensions: —
Floor Type: Hardwood
Dimensions: —
Floor Type: Hardwood
Dimensions: —
Floor Type: Carpet
Full Bathrooms: 3
Bathroom Amenities: Separate Shower,Double Sink,Garden Tub
Bathroom in Basement: 1
Rooms: Exercise Room,Theatre Room,Recreation Room,Storage
Basement Description: Finished,Lookout,Storage Space
Other Specifics
| 2 | |
| Concrete Perimeter | |
| Asphalt | |
| Deck, End Unit | |
| Common Grounds,Landscaped | |
| COMMON | |
| — | |
| Full | |
| Vaulted/Cathedral Ceilings, Hardwood Floors, First Floor Bedroom, Theatre Room, First Floor Laundry, First Floor Full Bath, Storage, Walk-In Closet(s), Open Floorplan | |
| Double Oven, Microwave, Dishwasher, Refrigerator, Washer, Dryer, Disposal | |
| Not in DB | |
| — | |
| — | |
| Golf Course | |
| — |
Tax History
| Year | Property Taxes |
|---|---|
| 2015 | $7,635 |
| 2021 | $9,520 |
| 2026 | $11,143 |
Contact Agent
Nearby Similar Homes
Nearby Sold Comparables
Contact Agent
Listing Provided By
Baird & Warner


