1306 Byron Street, Lake View, Chicago, Illinois 60613
$1,500,000
|
Sold
|
|
| Status: | Closed |
| Sqft: | 4,114 |
| Cost/Sqft: | $377 |
| Beds: | 5 |
| Baths: | 7 |
| Year Built: | 2016 |
| Property Taxes: | $30,767 |
| Days On Market: | 997 |
| Lot Size: | 0,00 |
Description
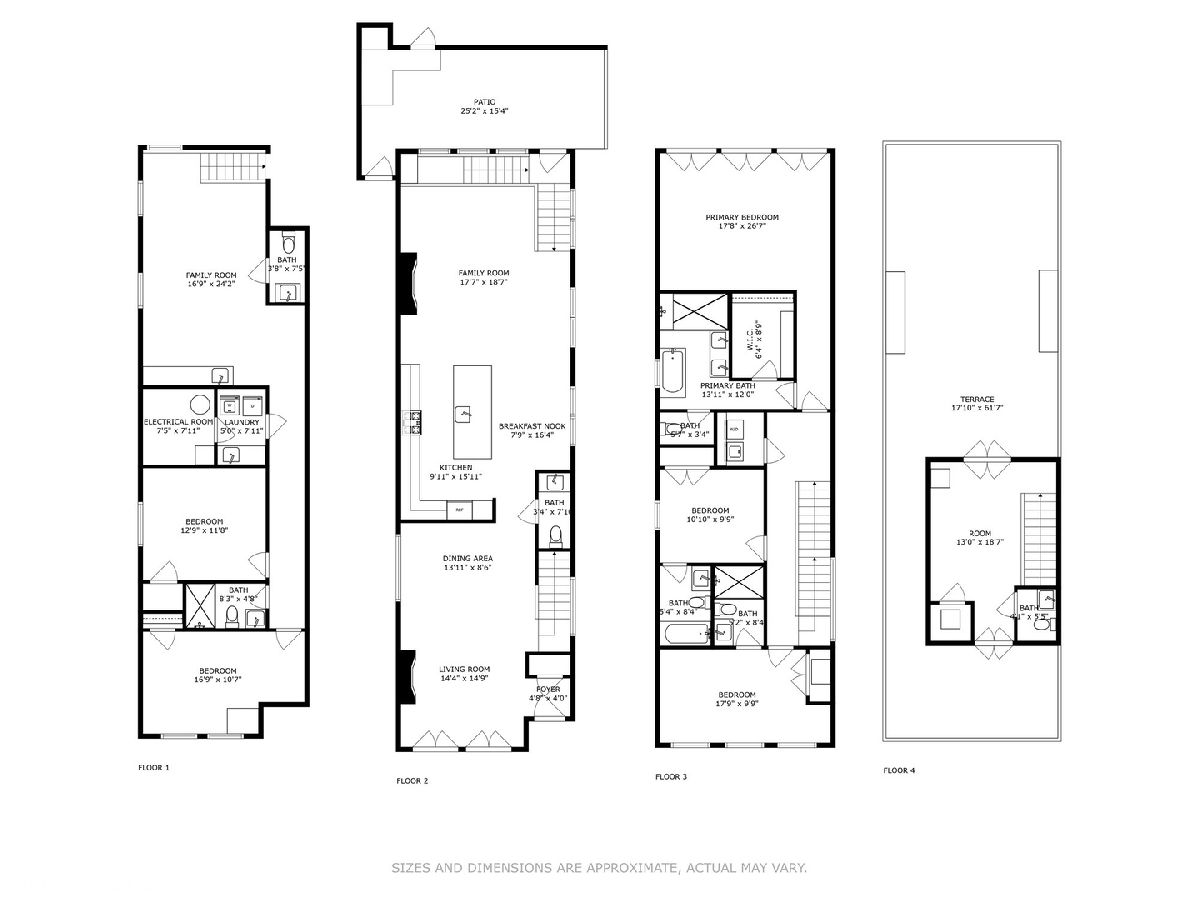
Magnificent all brick, newer construction SFH located on a beautiful tree-lined street in Chicago's highly sought-after Southport Corridor and top-rated Blaine School District! This sun-filled home features 5 beds, 4.3 baths, all with custom designer finishes. The first level offers an ideal layout boasting soaring ceilings, gorgeous hardwood floors, two gas fireplaces and a sophisticated living room that flows seamlessly into the all-white kitchen with custom cabinetry and Wolf & SubZero appliances. This home is designed for entertaining with a massive kitchen island, breakfast nook and spacious family room. The second floor has 3 en-suite bedrooms including the primary suite, which offers a large walk-in closet and spa-like bath with a double vanity sink, soaking tub, giant steam shower, and heated floors. A third level offers a bonus room with a half bath and access to both show stopping roof decks recently redone by Urban Roof Decks with a custom pergola, fire pit and turf sitting area with plenty of space for outdoor furniture. A unique layout in the lower level offers an airy feel drenched in sunlight and features two additional bedrooms. radiant heated floors,and a recreation room featuring a wet bar, wine fridge and dishwasher. Side-by-side laundry rooms with built-in cabinets are located on the second and lower levels. A large 2-car garage & brick paver back patio complete this sensational home. Just steps from some of the city's best restaurants, cafes, and bars including Southport Grocery, Southport Brewery, Little Goat Diner, GG's Chicken Shop, Itoko, Crosby's Kitchen, Tuco and Blondie, Coda di Volpe, and Steingold's! Easy access to public transit including the Brown and Red Line and within walking distance to Wrigley Field, Gallway Park, and Hotel Zachary. A true sanctuary you will never want a vacation from. You don't want to miss this one - won't last long!
Property Specifics
| Single Family | |
| — | |
| — | |
| 2016 | |
| — | |
| — | |
| No | |
| — |
| Cook | |
| — | |
| 0 / Not Applicable | |
| — | |
| — | |
| — | |
| 11827144 | |
| 14201030560000 |
Nearby Schools
| NAME: | DISTRICT: | DISTANCE: | |
|---|---|---|---|
|
Grade School
Blaine Elementary School |
299 | — | |
|
High School
Lake View High School |
299 | Not in DB | |
Property History
| DATE: | EVENT: | PRICE: | SOURCE: |
|---|---|---|---|
| 1 Jul, 2014 | Sold | $545,000 | MRED MLS |
| 17 Jun, 2014 | Under contract | $550,000 | MRED MLS |
| — | Last price change | $599,000 | MRED MLS |
| 7 May, 2014 | Listed for sale | $599,000 | MRED MLS |
| 16 Jan, 2020 | Sold | $1,350,000 | MRED MLS |
| 8 Dec, 2019 | Under contract | $1,399,995 | MRED MLS |
| 3 Dec, 2019 | Listed for sale | $1,399,995 | MRED MLS |
| 21 Aug, 2023 | Sold | $1,500,000 | MRED MLS |
| 18 Jul, 2023 | Under contract | $1,550,000 | MRED MLS |
| 10 Jul, 2023 | Listed for sale | $1,550,000 | MRED MLS |
Room Specifics
Total Bedrooms: 5
Bedrooms Above Ground: 5
Bedrooms Below Ground: 0
Dimensions: —
Floor Type: —
Dimensions: —
Floor Type: —
Dimensions: —
Floor Type: —
Dimensions: —
Floor Type: —
Full Bathrooms: 7
Bathroom Amenities: Separate Shower,Steam Shower,Double Sink,Soaking Tub
Bathroom in Basement: 1
Rooms: —
Basement Description: Finished
Other Specifics
| 2 | |
| — | |
| — | |
| — | |
| — | |
| 25X108 | |
| — | |
| — | |
| — | |
| — | |
| Not in DB | |
| — | |
| — | |
| — | |
| — |
Tax History
| Year | Property Taxes |
|---|---|
| 2014 | $9,255 |
| 2020 | $24,755 |
| 2023 | $30,767 |
Contact Agent
Nearby Similar Homes
Nearby Sold Comparables
Contact Agent
Listing Provided By
Compass


