1345 Nyoda Place, Highland Park, Illinois 60035
$650,000
|
Sold
|
|
| Status: | Closed |
| Sqft: | 2,532 |
| Cost/Sqft: | $217 |
| Beds: | 3 |
| Baths: | 3 |
| Year Built: | 1977 |
| Property Taxes: | $8,860 |
| Days On Market: | 1400 |
| Lot Size: | 0,18 |
Description
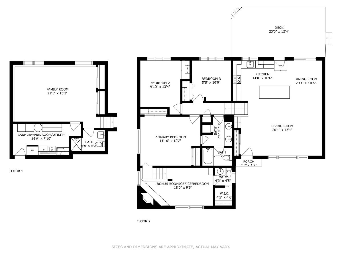
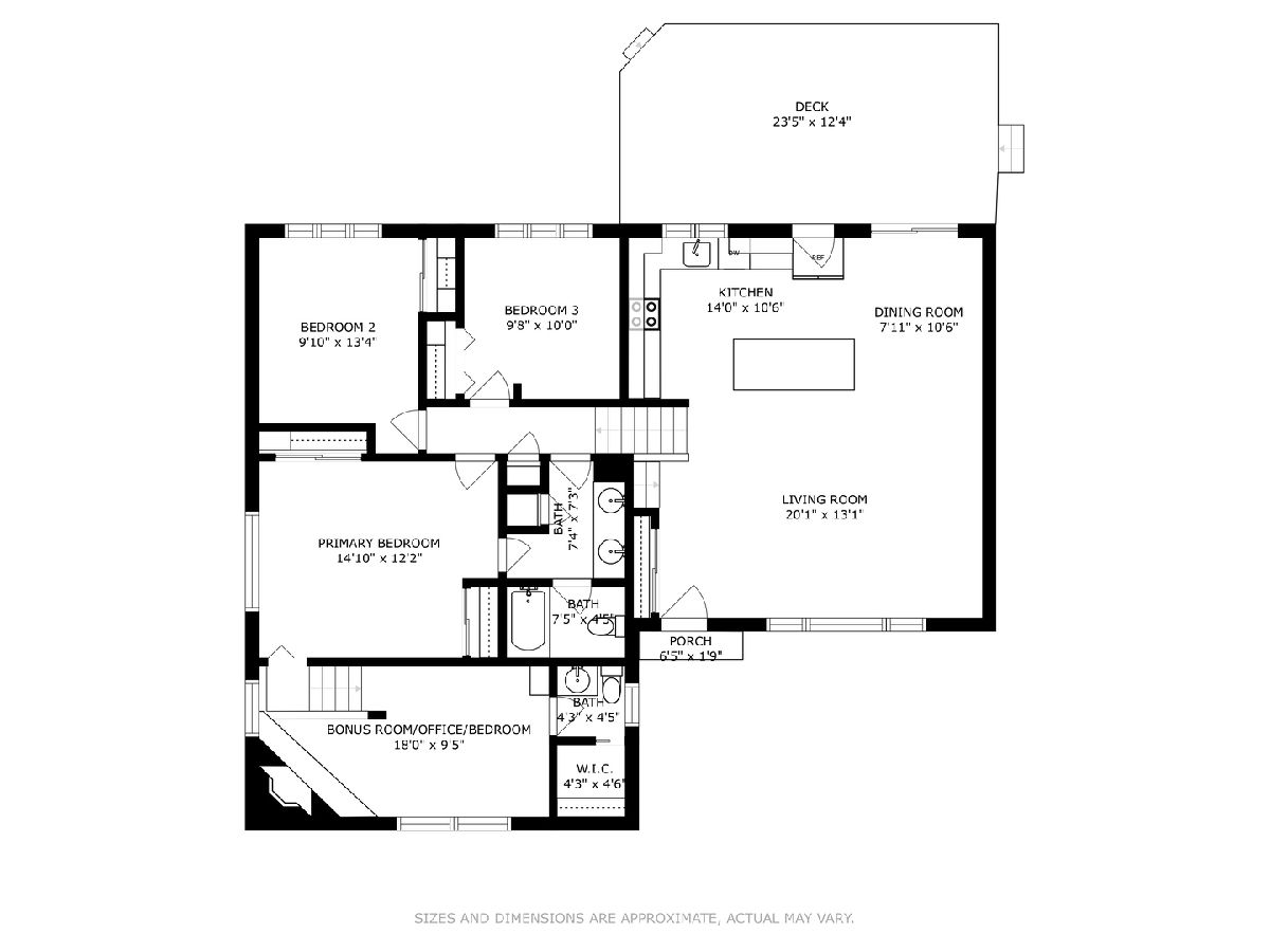
*****PLEASE NOTE ALL OFFERS ARE DUE BY SUNDAY, 5/15 at 7pm*****Prepare to be wowed by this Gorgeous 3 BR, 2 1/2 bath split level home situated on a serene wooded lot. The moment you enter the front door, a show stopping shiplap vaulted ceiling greets you and pairs perfectly with the newly refinished Hardwood Flooring through out the main level. Enjoy the Open Floor Plan, which consists of a Designer Custom Kitchen with Quartz Countertops, a large island with Quartz Waterfall Countertop and all New Appliances and Fixtures. The Kitchen opens up to a Dining Room and Living Room, perfect for entertaining. Just off the Kitchen, step outside to your Private Oasis with a Brand New Deck and a Fully Fenced Yard with a Playset. Head upstairs to the 2nd floor which boasts all new hardwood floors, a Primary Bedroom and 2 additional Bedrooms and a Full Designer Bathroom with shiplap walls, Double Vanity and a tub/shower. Prepare to be surprised by the Primary Bedroom's own Private BONUS ROOM with vaulted ceilings, a Stone Fireplace, skylight and Half Bathroom, just a few steps up from the Bedroom. This Extra Room can be used as an Office, Nursery, Family Room or 4th Bedroom! Head down to the Lower Level filled with oversized Windows allowing for tons of natural light, and enjoy the Large Recreation Room, clad in beautiful brick walls. Have peace of mind with an abundance of storage, making the perfect Family room for large gatherings or a fun Play Room for your little ones. A large Laundry Room/Mudroom with access to the 1 Car Attached Garage rounds off the lower level. Plenty of parking for friends and family in the Newly Refinished Oversized Circular Driveway! This adorable home is located conveniently within walking distance to Botanic Gardens and easy access to the highway, without hearing the noise! Top Braeside Elementary School (Awarded 2021 Golden Apple Winner).
Property Specifics
| Single Family | |
| — | |
| — | |
| 1977 | |
| — | |
| — | |
| No | |
| 0.18 |
| Lake | |
| — | |
| 0 / Not Applicable | |
| — | |
| — | |
| — | |
| 11394269 | |
| 16354040200000 |
Nearby Schools
| NAME: | DISTRICT: | DISTANCE: | |
|---|---|---|---|
|
Grade School
Braeside Elementary School |
112 | — | |
|
Middle School
Edgewood Middle School |
112 | Not in DB | |
|
High School
Highland Park High School |
113 | Not in DB | |
Property History
| DATE: | EVENT: | PRICE: | SOURCE: |
|---|---|---|---|
| 27 Jul, 2022 | Sold | $650,000 | MRED MLS |
| 15 May, 2022 | Under contract | $549,000 | MRED MLS |
| 12 May, 2022 | Listed for sale | $549,000 | MRED MLS |
Room Specifics
Total Bedrooms: 3
Bedrooms Above Ground: 3
Bedrooms Below Ground: 0
Dimensions: —
Floor Type: —
Dimensions: —
Floor Type: —
Full Bathrooms: 3
Bathroom Amenities: Separate Shower,Double Sink
Bathroom in Basement: 0
Rooms: —
Basement Description: Crawl
Other Specifics
| 1 | |
| — | |
| Asphalt,Circular | |
| — | |
| — | |
| 120X75X89X80 | |
| — | |
| — | |
| — | |
| — | |
| Not in DB | |
| — | |
| — | |
| — | |
| — |
Tax History
| Year | Property Taxes |
|---|---|
| 2022 | $8,860 |
Contact Agent
Nearby Similar Homes
Nearby Sold Comparables
Contact Agent
Listing Provided By
Compass


