19121 Wildwood Avenue, Lansing, Illinois 60438
$280,000
|
Sold
|
|
| Status: | Closed |
| Sqft: | 2,476 |
| Cost/Sqft: | $117 |
| Beds: | 4 |
| Baths: | 2 |
| Year Built: | 1969 |
| Property Taxes: | $4,653 |
| Days On Market: | 407 |
| Lot Size: | 0,00 |
Description
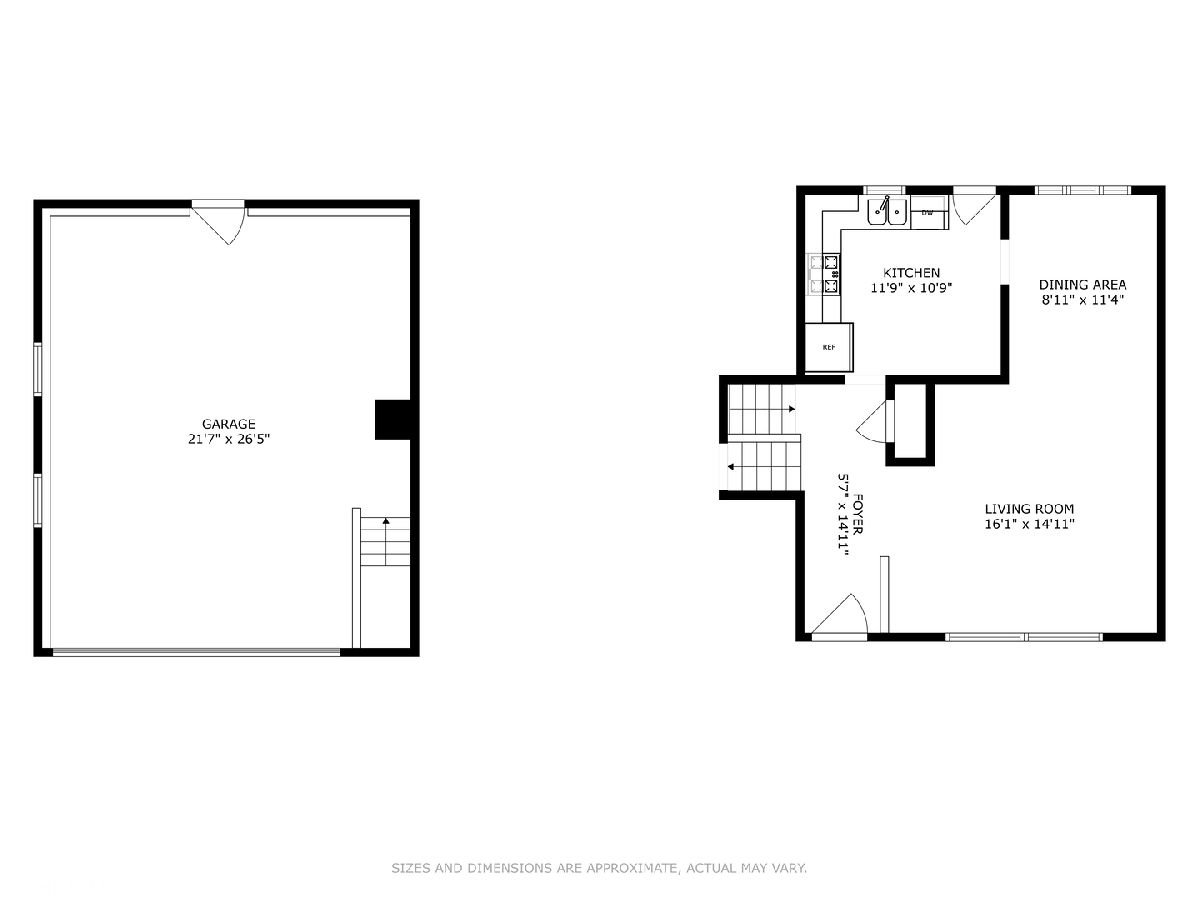
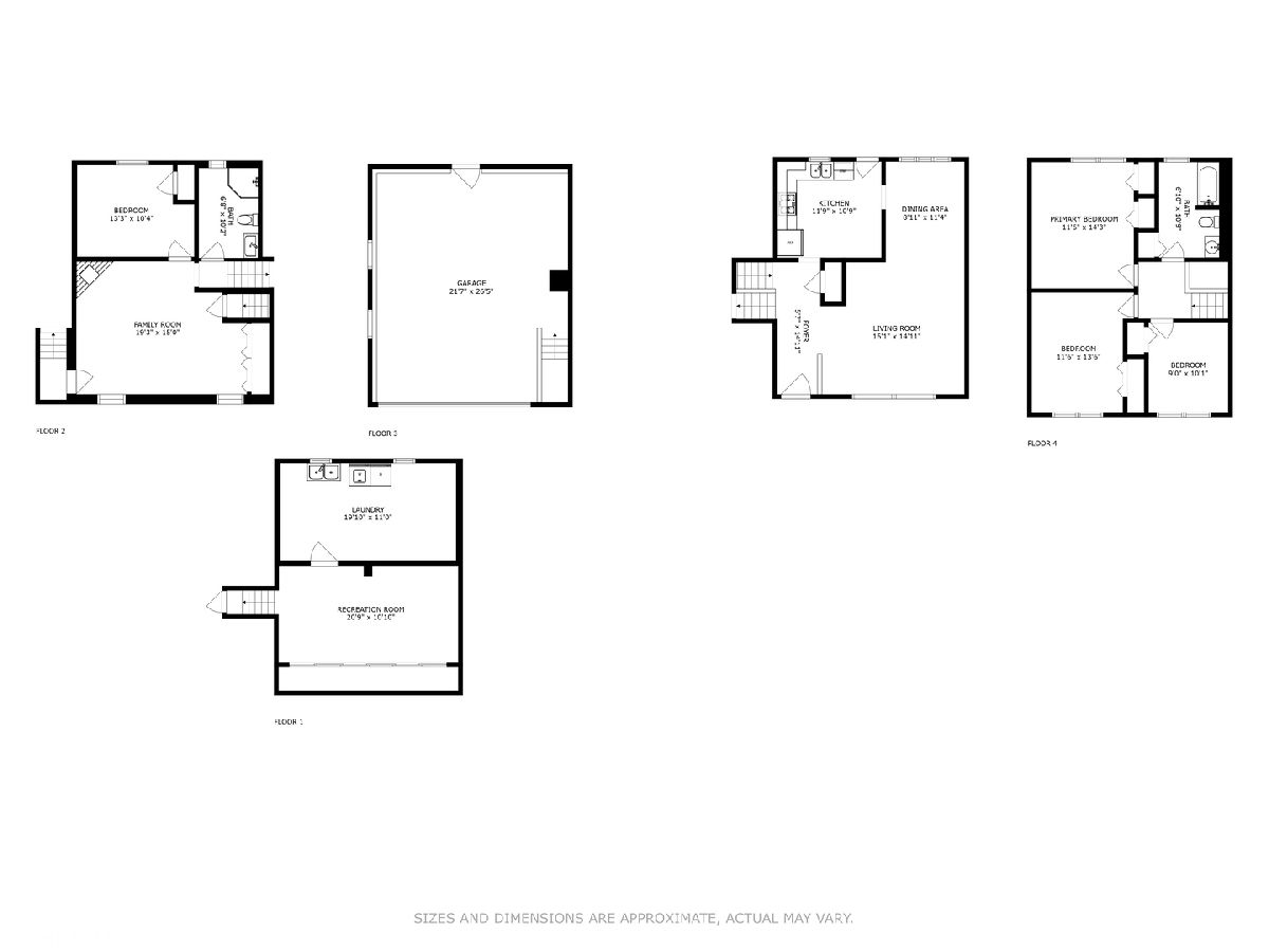
Great Lansing location! A corner lot located on a quiet street with great neighbors. This property offers a fully fenced yard with a pergola containing concord grapes vines offers perfect shade during warm summer nights. All flooring has updated with newer carpet and laminate flooring throughout the house. Two bathrooms, one fully renovated bathroom and one updated. A finished sub-basement with tons of storage space and a large laundry room. A fireplace located in the family room. A new shed (2022) in the backyard offers more stoarge on top of the large two car garage. Very close to the Indiana border for shopping and dining and two new commuter train stations under 10 minutes away are opening soon. Along with walking distance to the local elementary schools. This school is located in the T.F. South High School district. There have only been two owners of this house and it has been well loved, come be the third owner!
Property Specifics
| Single Family | |
| — | |
| — | |
| 1969 | |
| — | |
| — | |
| No | |
| — |
| Cook | |
| — | |
| — / Not Applicable | |
| — | |
| — | |
| — | |
| 12204096 | |
| 33064080090000 |
Nearby Schools
| NAME: | DISTRICT: | DISTANCE: | |
|---|---|---|---|
|
Grade School
Nathan Hale Elementary School |
171 | — | |
|
Middle School
Heritage Middle School |
171 | Not in DB | |
|
High School
Thornton Fractnl So High School |
215 | Not in DB | |
Property History
| DATE: | EVENT: | PRICE: | SOURCE: |
|---|---|---|---|
| 21 Feb, 2025 | Sold | $280,000 | MRED MLS |
| 1 Feb, 2025 | Under contract | $289,000 | MRED MLS |
| — | Last price change | $295,000 | MRED MLS |
| 6 Nov, 2024 | Listed for sale | $295,000 | MRED MLS |
Room Specifics
Total Bedrooms: 4
Bedrooms Above Ground: 4
Bedrooms Below Ground: 0
Dimensions: —
Floor Type: —
Dimensions: —
Floor Type: —
Dimensions: —
Floor Type: —
Full Bathrooms: 2
Bathroom Amenities: —
Bathroom in Basement: 0
Rooms: —
Basement Description: Partially Finished,Sub-Basement,Egress Window
Other Specifics
| 2 | |
| — | |
| Asphalt | |
| — | |
| — | |
| 8316 | |
| — | |
| — | |
| — | |
| — | |
| Not in DB | |
| — | |
| — | |
| — | |
| — |
Tax History
| Year | Property Taxes |
|---|---|
| 2025 | $4,653 |
Contact Agent
Nearby Similar Homes
Nearby Sold Comparables
Contact Agent
Listing Provided By
Kale Realty


