1915 Superior Street, West Town, Chicago, Illinois 60622
$1,920,000
Sold
|
|
Status: | Closed |
Sqft: | 6,888 |
Cost/Sqft: | $289 |
Beds: | 7 |
Baths: | 5 |
Year Built: | — |
Property Taxes: | $27,014 |
Days On Market: | 1849 |
Lot Size: | 0,14 |
Description
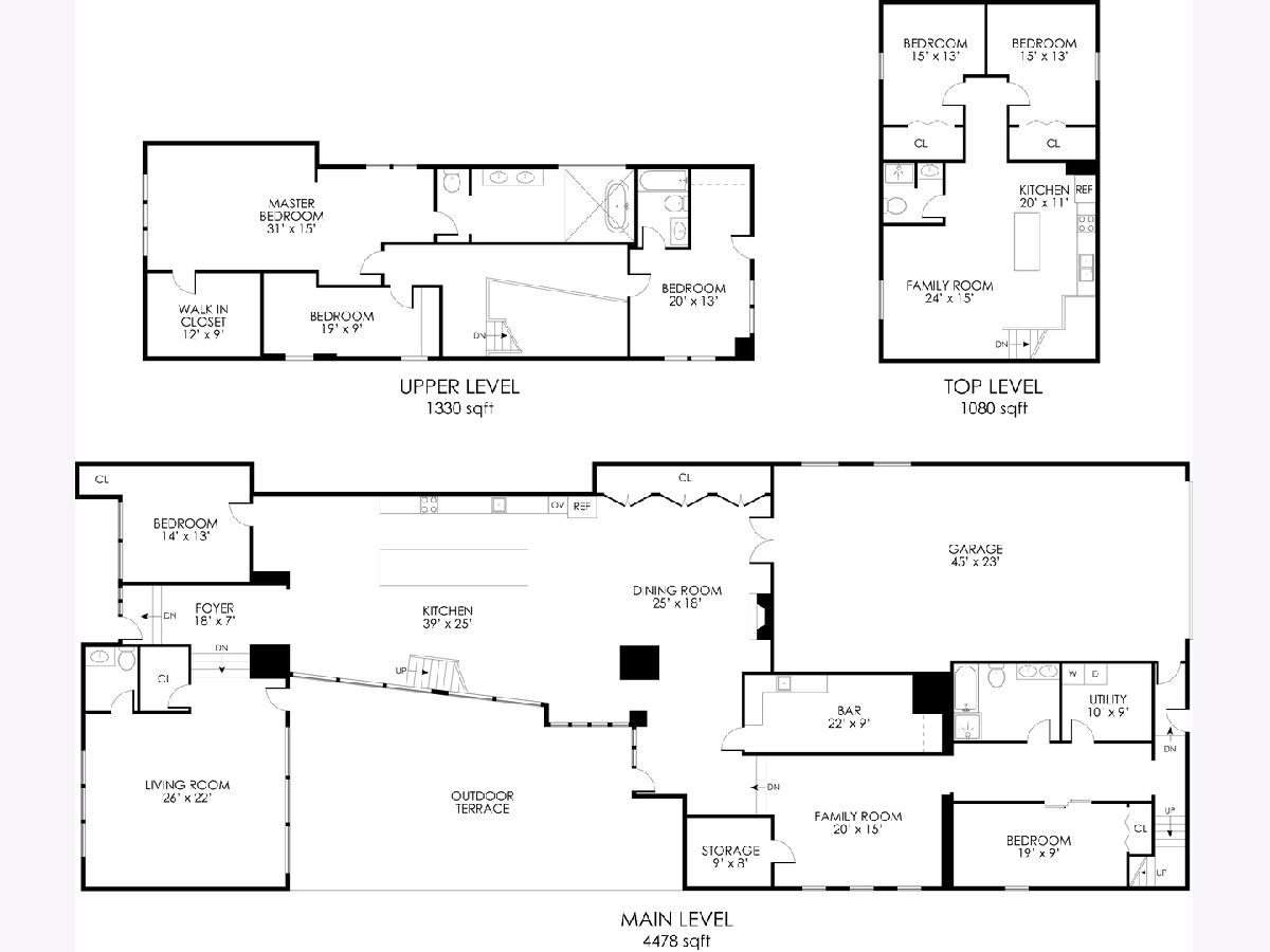
CLOSED!****MULTIPLE OFFERS RECEIVED, HIGHEST AND BEST DUE 9-25-2020 AT 3pm****Welcome to this Sophisticated, truly distinctive ONE-OF-A-KIND SFH in the heart of vibrant West Town. Contemporary Chic Style home boasting 6888 square feet of sun filled open floor plan, built on a double lot with an attached 4 CAR GARAGE and a Private, Secured Courtyard. The entire home pivots around this scenic outdoor living space and private terrace, perfect for entertaining. This is not a Spec home rather a home that has a story to tell! Originally built as a foundry, converted to a storage house for the Chicago Police's horse and carriages to a recording studio that produced some of Chicago's famed House Music. This historical structure has been craftily engineered into a 7 bedroom, 4.5 bath home on all three levels of living. Juxtaposing two design concepts throughout by keeping the original structure's cobblestone architecture married with modern elegance. The home has much to boast about starting with the exceptional designer gourmet kitchen with an imposing over-sized custom butcher block island, upgraded 52 inch sleek white cabinets all complimented with Wolf appliance package and adorned with floor-to-ceiling windows throughout the entire first floor living space overlooking the private courtyard. Plus, Hardwood floors throughout, zoned heating, additional storage in attic and custom closets. The home is divided into two private wings. The main home features over 5000 sq ft of living space that accommodates 2 bedrooms downstairs and 3 bedrooms upstairs, a Formal Living Room, Dining Room, Family Room and Private Study equipped with an old-fashioned Bar. Upstairs has the impressive Master suite, with over-sized shower, body sprays and a soaking tub in the center. The second wing features modern open concept with full kitchen and family room combo, 2 bedrooms and 1 bath. Enjoy the roof top, accessible from both wings, as additional entertainment area, rooftop garden or a space to get-a-way! Love where you live and relish the thought of owning a home like no other!
Property Specifics
Single Family | |
— | |
Tri-Level | |
— | |
None | |
— | |
No | |
0.14 |
Cook | |
— | |
0 / Not Applicable | |
None | |
Lake Michigan | |
Public Sewer | |
10852367 | |
17072040190000 |
Property History
DATE: | EVENT: | PRICE: | SOURCE: |
---|---|---|---|
26 Jan, 2016 | Sold | $951,000 | MRED MLS |
15 Dec, 2015 | Under contract | $899,900 | MRED MLS |
27 Nov, 2015 | Listed for sale | $899,900 | MRED MLS |
6 Oct, 2020 | Sold | $1,920,000 | MRED MLS |
26 Sep, 2020 | Under contract | $1,990,000 | MRED MLS |
10 Sep, 2020 | Listed for sale | $1,990,000 | MRED MLS |
1 Aug, 2022 | Sold | $2,125,000 | MRED MLS |
14 Jun, 2022 | Under contract | $2,395,000 | MRED MLS |
1 Jun, 2022 | Listed for sale | $2,395,000 | MRED MLS |































Room Specifics
Total Bedrooms: 7
Bedrooms Above Ground: 7
Bedrooms Below Ground: 0
Dimensions: —
Floor Type: Hardwood
Dimensions: —
Floor Type: Hardwood
Dimensions: —
Floor Type: Hardwood
Dimensions: —
Floor Type: —
Dimensions: —
Floor Type: —
Dimensions: —
Floor Type: —
Full Bathrooms: 5
Bathroom Amenities: Separate Shower,Double Sink,Full Body Spray Shower,Soaking Tub
Bathroom in Basement: 0
Rooms: Kitchen,Bedroom 5,Bedroom 6,Bedroom 7,Family Room,Foyer,Storage,Terrace,Utility Room-1st Floor,Walk In Closet
Basement Description: None
Other Specifics
4 | |
Concrete Perimeter | |
— | |
Patio, Stamped Concrete Patio | |
— | |
120X48 | |
Dormer,Unfinished | |
None | |
Vaulted/Cathedral Ceilings, Skylight(s), Bar-Wet, Hardwood Floors, First Floor Bedroom, In-Law Arrangement, First Floor Laundry, Second Floor Laundry, First Floor Full Bath, Built-in Features, Walk-In Closet(s) | |
Microwave, Dishwasher, Refrigerator | |
Not in DB | |
Park, Curbs, Sidewalks, Street Lights, Street Paved | |
— | |
— | |
Wood Burning, Includes Accessories |
Tax History
Year | Property Taxes |
---|---|
2016 | $12,210 |
2020 | $27,014 |
2022 | $27,032 |
Contact Agent
Nearby Similar Homes
Nearby Sold Comparables
Contact Agent
Listing Provided By
GenStone Realty