1919 Lincoln Park West, Lincoln Park, Chicago, Illinois 60614
$1,275,000
|
Sold
|
|
| Status: | Closed |
| Sqft: | 3,000 |
| Cost/Sqft: | $417 |
| Beds: | 4 |
| Baths: | 4 |
| Year Built: | 1888 |
| Property Taxes: | $23,598 |
| Days On Market: | 1614 |
| Lot Size: | 0,03 |
Description
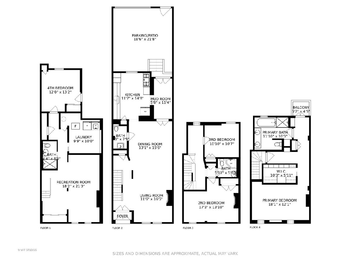
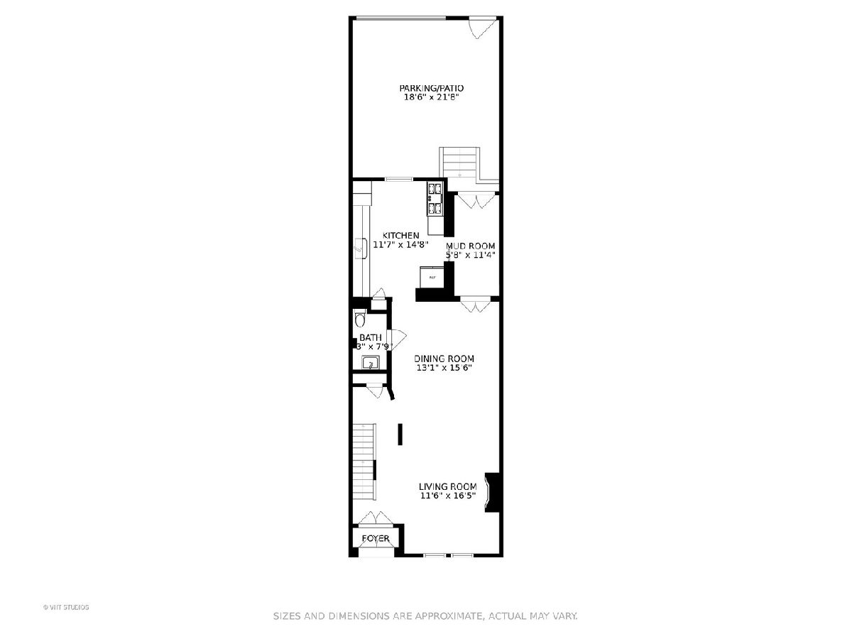
Welcome to this elegant row home located on a quiet tree-lined cul-de-sac in Old Town Triangle. This gorgeous 4BR/3.5BA home has been tastefully renovated while maintaining the classic vintage character. The gracious living/dining room boasts soaring 12' ceilings with classic ceiling medallions & plaster details. The nicely appointed powder room on this level is very convenient. The remodeled kitchen boasts modern flat front Brookhaven cabinetry with soft shut drawers & pull out shelving, quartz counter tops with full height quartz backsplash, upper end appliances from Wolf (6 burner stove with double ovens), Miele, & Electrolux and a handy pantry. The entire top floor of the home is the primary bedroom suite that can easily accommodate a king sized bed and features a huge organized walk-in closet, a linen closet, built-in shelving a cute little balcony. The luxurious primary bathroom boasts designer tile work, Carrara marble double vanities, a steam shower, a separate soaking tub, heated floors, heated towel rack with all fixtures from Kohler & American Standard. The 2nd level of the home includes two generously sized bedrooms with spacious closets, a full bathroom & the ability to build out an additional deck or another bedroom. As you move down to the lower level, you'll find a huge family room, refreshed full bathroom with designer glass tiles, the 4th bedroom, a big laundry room and multiple closets that's great for extra storage. With charming details like the ornate marble fireplaces, original shutters & the exposed brick throughout the home and the secured 2 car parking (can be access by the mud roof off the kitchen area) it's the perfect home that you've been looking for. Incredible location that's steps to Lincoln Park, Zoo, lakefront and all the shops, dining, nightlife that Old Town has to offer including Lincoln Park Elementary & High Schools.
Property Specifics
| Single Family | |
| — | |
| — | |
| 1888 | |
| — | |
| — | |
| No | |
| 0.03 |
| Cook | |
| — | |
| 0 / Not Applicable | |
| — | |
| — | |
| — | |
| 11276217 | |
| 14334040050000 |
Nearby Schools
| NAME: | DISTRICT: | DISTANCE: | |
|---|---|---|---|
|
Grade School
Lincoln Elementary School |
299 | — | |
|
Middle School
Lincoln Elementary School |
299 | Not in DB | |
|
High School
Lincoln Park High School |
299 | Not in DB | |
Property History
| DATE: | EVENT: | PRICE: | SOURCE: |
|---|---|---|---|
| 10 Feb, 2010 | Sold | $850,000 | MRED MLS |
| 18 Jan, 2010 | Under contract | $899,000 | MRED MLS |
| 30 Nov, 2009 | Listed for sale | $899,000 | MRED MLS |
| 1 Apr, 2013 | Sold | $900,000 | MRED MLS |
| 4 Jan, 2013 | Under contract | $999,000 | MRED MLS |
| 12 Nov, 2012 | Listed for sale | $999,000 | MRED MLS |
| 17 Sep, 2020 | Under contract | $0 | MRED MLS |
| 19 Aug, 2020 | Listed for sale | $0 | MRED MLS |
| 15 Mar, 2022 | Sold | $1,275,000 | MRED MLS |
| 4 Feb, 2022 | Under contract | $1,250,000 | MRED MLS |
| 24 Nov, 2021 | Listed for sale | $1,250,000 | MRED MLS |
Room Specifics
Total Bedrooms: 4
Bedrooms Above Ground: 4
Bedrooms Below Ground: 0
Dimensions: —
Floor Type: —
Dimensions: —
Floor Type: —
Dimensions: —
Floor Type: —
Full Bathrooms: 4
Bathroom Amenities: Separate Shower,Steam Shower,Double Sink,Soaking Tub
Bathroom in Basement: 1
Rooms: —
Basement Description: Finished,Exterior Access
Other Specifics
| — | |
| — | |
| — | |
| — | |
| — | |
| 19X72 | |
| — | |
| — | |
| — | |
| — | |
| Not in DB | |
| — | |
| — | |
| — | |
| — |
Tax History
| Year | Property Taxes |
|---|---|
| 2010 | $14,539 |
| 2013 | $13,774 |
| 2022 | $23,598 |
Contact Agent
Nearby Similar Homes
Contact Agent
Listing Provided By
@properties | Christie's International Real Estate


