2219 Manor Lane, Mchenry, Illinois 60051
$215,000
Sold
|
|
Status: | Closed |
Sqft: | 1,000 |
Cost/Sqft: | $210 |
Beds: | 3 |
Baths: | 1 |
Year Built: | 1958 |
Property Taxes: | $4,405 |
Days On Market: | 553 |
Lot Size: | 0,24 |
Description
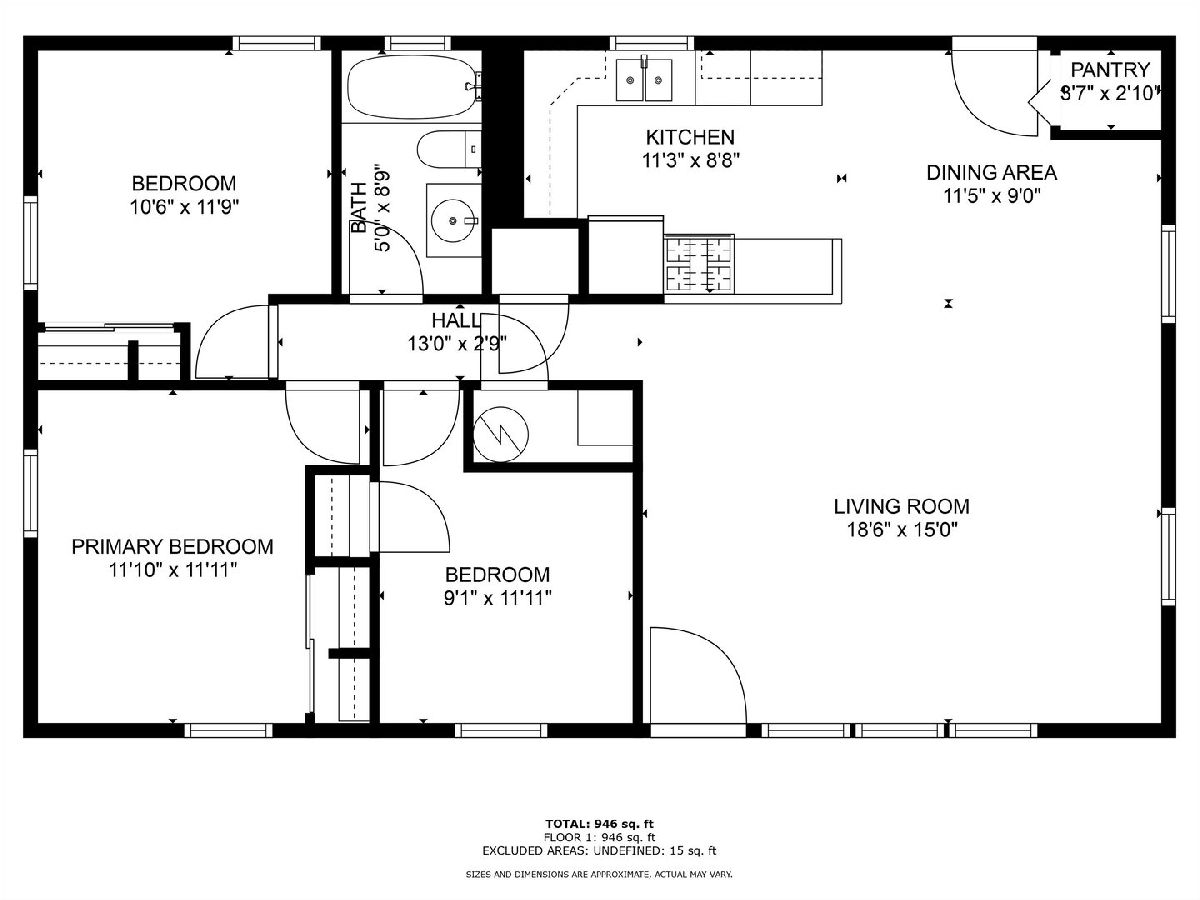
Cute, clean and ready for new owners! Three bedroom, one full bathroom ranch home in convenient McHenry location. Enter through the front door to an open living room with lots of natural light and durable wood laminate floors. This flows nicely to the dining area and kitchen. The kitchen features a breakfast bar, ample cabinet space and two skylights. Down the hallway are three bedrooms and a full bathroom, along with a laundry closet set up for a stackable unit. This home has been very well maintained with a new roof on both the house and garage in 2023, as well as new skylights. Windows and siding approximate 5 years old and furnace approximately 7 years old. The driveway was just resealed this spring and much of the interior freshly painted. Located just north of RT 120 with easy access to shopping, restaurants, parks and McHenry's Green Street & Riverside Drive district. Make this home yours today! *MULTIPLE OFFERS, HIGHEST AND BEST DUE BY 5:00 P.M. SUNDAY APRIL 21ST*
Property Specifics
Single Family | |
— | |
— | |
1958 | |
— | |
— | |
No | |
0.24 |
— | |
Eastwood Manor | |
— / Not Applicable | |
— | |
— | |
— | |
12031009 | |
0925477002 |
Nearby Schools
NAME: | DISTRICT: | DISTANCE: | |
---|---|---|---|
Grade School
Hilltop Elementary School |
15 | — | |
Middle School
Mchenry Middle School |
15 | Not in DB | |
High School
Mchenry Campus |
156 | Not in DB |
Property History
DATE: | EVENT: | PRICE: | SOURCE: |
---|---|---|---|
20 Apr, 2007 | Sold | $166,000 | MRED MLS |
2 Mar, 2007 | Under contract | $159,899 | MRED MLS |
25 Feb, 2007 | Listed for sale | $159,899 | MRED MLS |
24 Oct, 2008 | Sold | $137,000 | MRED MLS |
8 Sep, 2008 | Under contract | $147,000 | MRED MLS |
— | Last price change | $159,000 | MRED MLS |
31 Jan, 2008 | Listed for sale | $169,900 | MRED MLS |
17 May, 2024 | Sold | $215,000 | MRED MLS |
22 Apr, 2024 | Under contract | $210,000 | MRED MLS |
18 Apr, 2024 | Listed for sale | $210,000 | MRED MLS |































Room Specifics
Total Bedrooms: 3
Bedrooms Above Ground: 3
Bedrooms Below Ground: 0
Dimensions: —
Floor Type: —
Dimensions: —
Floor Type: —
Full Bathrooms: 1
Bathroom Amenities: Soaking Tub
Bathroom in Basement: 0
Rooms: —
Basement Description: Slab
Other Specifics
2.5 | |
— | |
Asphalt | |
— | |
— | |
70X131X143X112 | |
— | |
— | |
— | |
— | |
Not in DB | |
— | |
— | |
— | |
— |
Tax History
Year | Property Taxes |
---|---|
2007 | $2,442 |
2008 | $2,604 |
2024 | $4,405 |
Contact Agent
Nearby Similar Homes
Contact Agent
Listing Provided By
eXp Realty, LLC