25489 Barsumian Drive, Tower Lakes, Illinois 60010
$700,000
|
Sold
|
|
| Status: | Closed |
| Sqft: | 7,150 |
| Cost/Sqft: | $94 |
| Beds: | 5 |
| Baths: | 5 |
| Year Built: | 1975 |
| Property Taxes: | $13,670 |
| Days On Market: | 1843 |
| Lot Size: | 2,38 |
Description
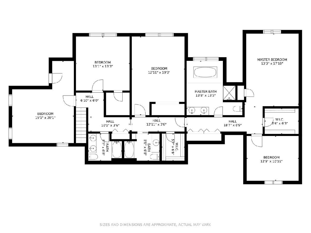
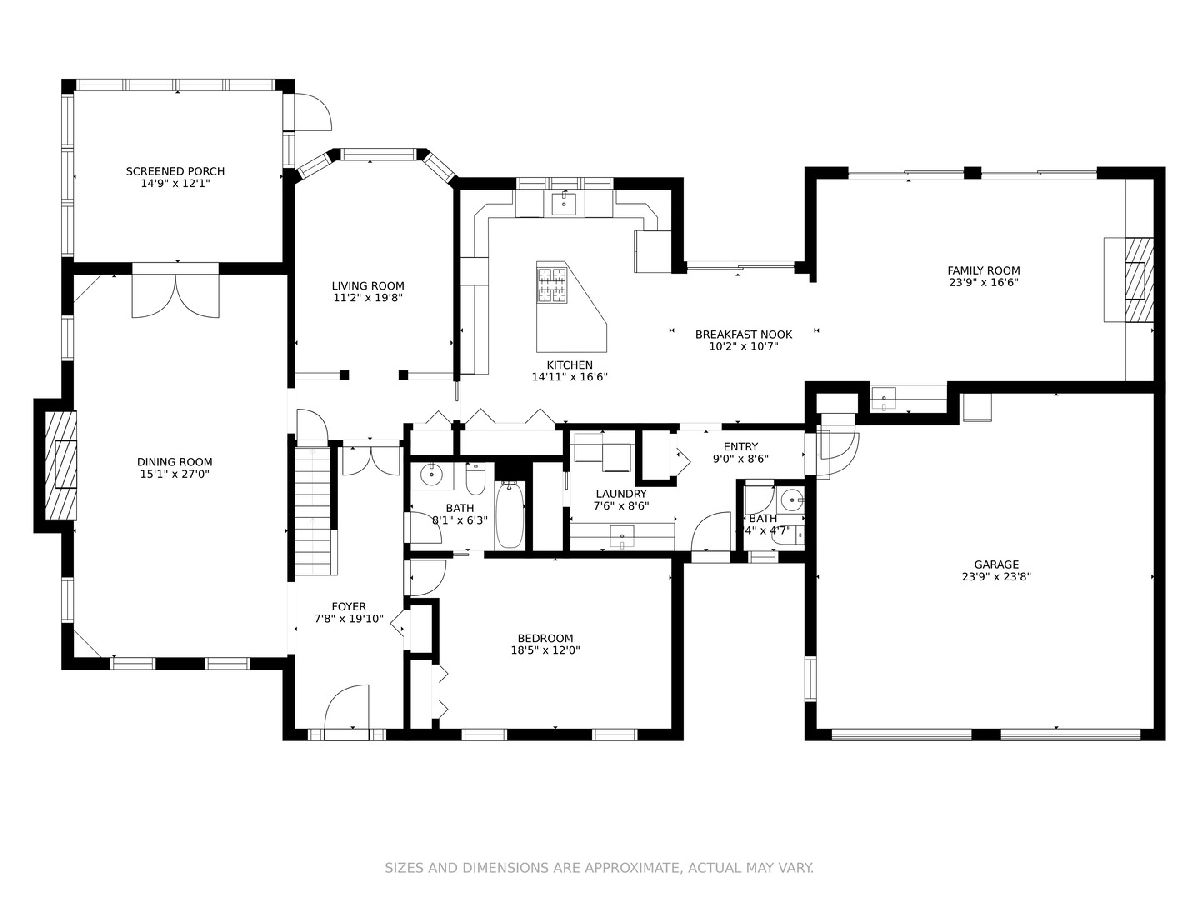
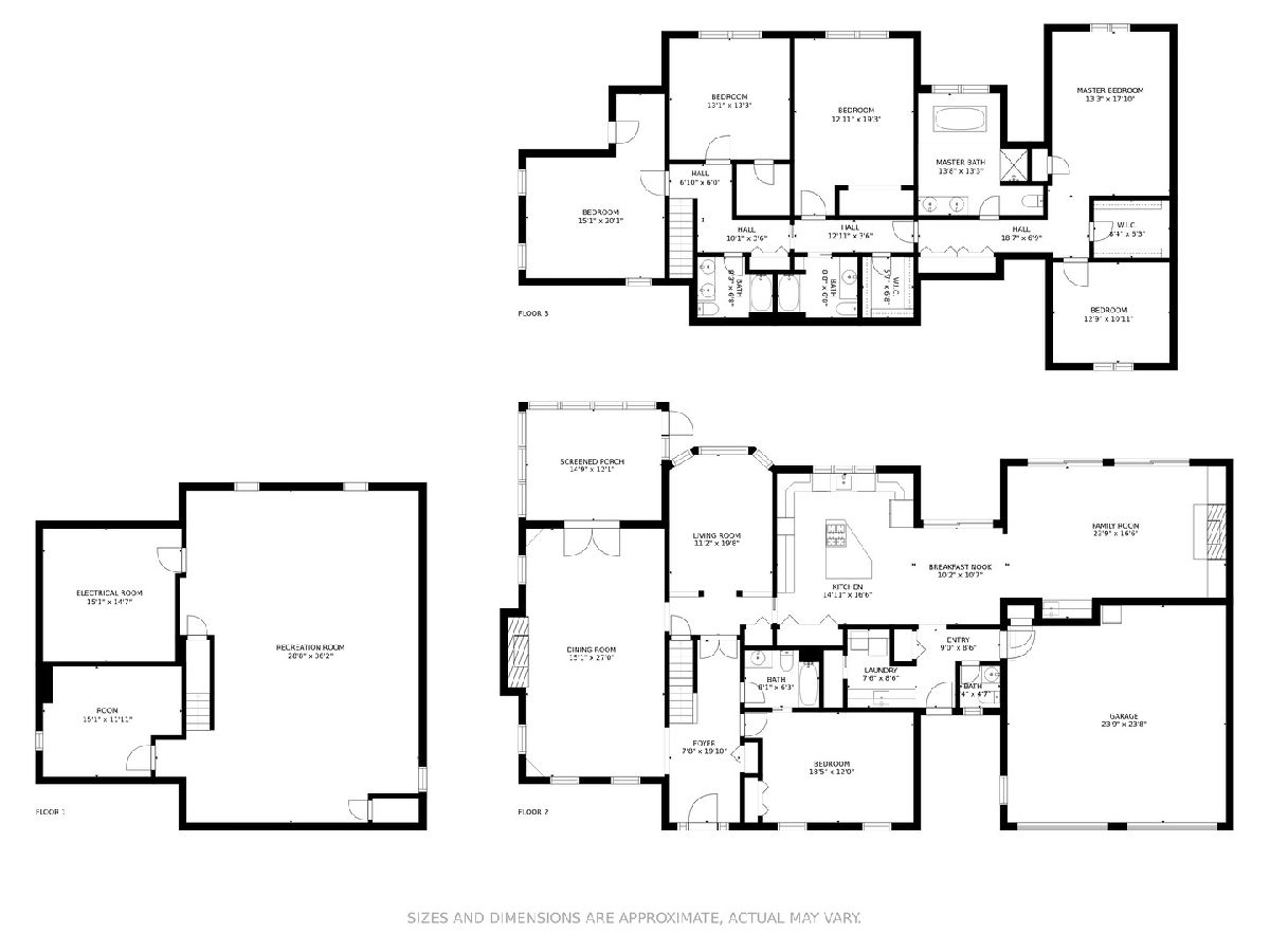
Classic charm meets contemporary living in this updated 6 bed, 4.5 bath Tower Lakes beauty with over 7,000 sq/ft of finished living space on 2+ acres with lake access. Step into the main level open foyer and be immediately greeted by the enormous living room with hw floors, floor to ceiling stone fireplace and French doors to a screened in porch, dining room with h/w floors and bay window, large eat-in kitchen with built-in bench, original barn wood cabinets, ss appliances, granite counters, large island, wine fridge, 2 pantries and sliders to the large outdoor deck that wraps around the entire backside of the home, a lovely family room with brick fireplace, beamed ceilings, built-ins and two additional sliders. Completing the main level is a spacious bedroom and full bath that's perfect for an in-law suite, mud room/laundry room and powder room. The massive upper level has 4 additional bedrooms including a sizeable master with vaulted ceilings, attached updated onsuite full bath with dual sinks, soaker tub, walk-in shower, wic and large sitting room that can be used as an office/nursery and two additional full baths. The lower level is finished with an enormous recreation room, 6th bedroom/office and plenty of storage. 2+ car attached heated garage. Incredibly private wooded yard with lake views that's great for entertaining and family fun with a large deck, screened porch, sand box, jungle gym, trampoline and climbing structure. Just a short walk to the lake. Professionally landscaped with a brick paver walkway. Well rated Barrington schools
Property Specifics
| Single Family | |
| — | |
| — | |
| 1975 | |
| Full | |
| — | |
| No | |
| 2.38 |
| Lake | |
| — | |
| 600 / Annual | |
| Lake Rights,Other | |
| Community Well | |
| Septic-Private | |
| 11046351 | |
| 13034020060000 |
Nearby Schools
| NAME: | DISTRICT: | DISTANCE: | |
|---|---|---|---|
|
Grade School
North Barrington Elementary Scho |
220 | — | |
|
Middle School
Barrington Middle School-station |
220 | Not in DB | |
|
High School
Barrington High School |
220 | Not in DB | |
Property History
| DATE: | EVENT: | PRICE: | SOURCE: |
|---|---|---|---|
| 7 Jun, 2021 | Sold | $700,000 | MRED MLS |
| 12 Apr, 2021 | Under contract | $675,000 | MRED MLS |
| 8 Apr, 2021 | Listed for sale | $675,000 | MRED MLS |
Room Specifics
Total Bedrooms: 6
Bedrooms Above Ground: 5
Bedrooms Below Ground: 1
Dimensions: —
Floor Type: Hardwood
Dimensions: —
Floor Type: Hardwood
Dimensions: —
Floor Type: Carpet
Dimensions: —
Floor Type: —
Dimensions: —
Floor Type: —
Full Bathrooms: 5
Bathroom Amenities: —
Bathroom in Basement: 0
Rooms: Bedroom 5,Eating Area,Office,Recreation Room,Sitting Room,Foyer,Storage,Screened Porch,Mud Room,Bedroom 6
Basement Description: Finished
Other Specifics
| 2 | |
| — | |
| — | |
| Deck, Porch Screened | |
| Water Rights,Water View,Wooded,Mature Trees | |
| 236X457X240X429 | |
| — | |
| Full | |
| Vaulted/Cathedral Ceilings, Hardwood Floors, First Floor Bedroom, In-Law Arrangement, First Floor Laundry, First Floor Full Bath, Built-in Features, Walk-In Closet(s), Beamed Ceilings, Granite Counters, Separate Dining Room | |
| Double Oven, Microwave, Dishwasher, Refrigerator, Washer, Dryer, Wine Refrigerator, Gas Cooktop | |
| Not in DB | |
| Park, Tennis Court(s), Lake, Water Rights | |
| — | |
| — | |
| Wood Burning, Gas Starter |
Tax History
| Year | Property Taxes |
|---|---|
| 2021 | $13,670 |
Contact Agent
Nearby Similar Homes
Nearby Sold Comparables
Contact Agent
Listing Provided By
Keller Williams Momentum


