2621 Southport Avenue, Lincoln Park, Chicago, Illinois 60614
$975,000
|
Sold
|
|
| Status: | Closed |
| Sqft: | 1,400 |
| Cost/Sqft: | $671 |
| Beds: | 2 |
| Baths: | 2 |
| Year Built: | 2017 |
| Property Taxes: | $15,824 |
| Days On Market: | 368 |
| Lot Size: | 0,00 |
Description
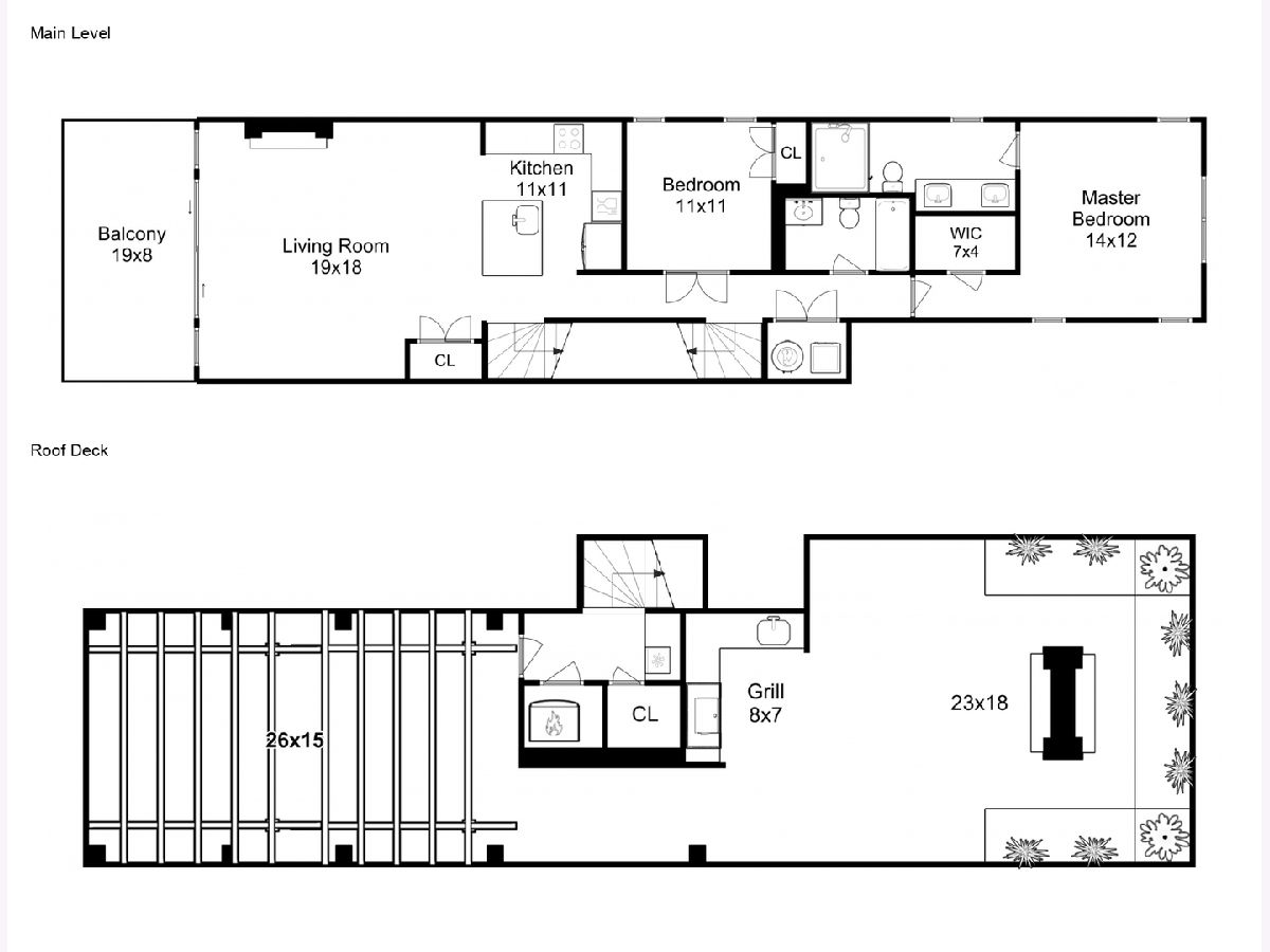
Just in time for summer, this stunning Lincoln Park penthouse is hitting the market at the perfect time -and you'll want to be first in line. This is city living at its finest, featuring soaring ceilings, massive windows, and top-of-the-line finishes throughout. The open-concept layout is perfect for easy entertaining, with a spacious living and dining area that flows effortlessly into a chef-worthy kitchen. Gather around the oversized island surrounded by custom cabinetry, timeless and durable quartz countertops, high-end stainless steel appliances, and on-trend hardware. Step out from the living room onto your private terrace-ideal for morning coffee, al fresco dining, or simply enjoying a little extra square footage. When it's time to unwind, retreat to your serene primary suite, featuring a professionally organized walk-in closet and a spa-inspired bath with dual vanity, heated floors, and a steam shower. The second bedroom makes a perfect guest space or home office, while the second full bath stuns with a curated mix of Italian porcelain and marble tile. And then there's the rooftop deck. This private oasis is next level: Trex decking, dual pergolas, a built-in grill station, custom lighting, wet bar, built-in bench seating around a cozy fire pit, and irrigated planter boxes ready for your green thumb to go wild. Whether you're hosting a party or soaking in a sunset, this roof deck delivers. Tech-savvy touches include a Nest thermostat, Wi-Fi enabled Lutron lighting, in-ceiling surround sound speakers, and more. Garage parking and storage room included.
Property Specifics
| Condos/Townhomes | |
| 3 | |
| — | |
| 2017 | |
| — | |
| — | |
| No | |
| — |
| Cook | |
| — | |
| 354 / Monthly | |
| — | |
| — | |
| — | |
| 12345570 | |
| 14293070731003 |
Nearby Schools
| NAME: | DISTRICT: | DISTANCE: | |
|---|---|---|---|
|
Grade School
Prescott Elementary School |
299 | — | |
|
Middle School
Prescott Elementary School |
299 | Not in DB | |
|
High School
Lincoln Park High School |
299 | Not in DB | |
Property History
| DATE: | EVENT: | PRICE: | SOURCE: |
|---|---|---|---|
| 3 May, 2021 | Sold | $745,000 | MRED MLS |
| 10 Mar, 2021 | Under contract | $774,900 | MRED MLS |
| 18 Feb, 2021 | Listed for sale | $774,900 | MRED MLS |
| 21 May, 2025 | Sold | $975,000 | MRED MLS |
| 27 Apr, 2025 | Under contract | $939,900 | MRED MLS |
| 23 Apr, 2025 | Listed for sale | $939,900 | MRED MLS |
Room Specifics
Total Bedrooms: 2
Bedrooms Above Ground: 2
Bedrooms Below Ground: 0
Dimensions: —
Floor Type: —
Full Bathrooms: 2
Bathroom Amenities: Separate Shower,Steam Shower,Double Sink,Full Body Spray Shower,Soaking Tub
Bathroom in Basement: 0
Rooms: —
Basement Description: —
Other Specifics
| 1 | |
| — | |
| — | |
| — | |
| — | |
| COMMON | |
| — | |
| — | |
| — | |
| — | |
| Not in DB | |
| — | |
| — | |
| — | |
| — |
Tax History
| Year | Property Taxes |
|---|---|
| 2021 | $16,077 |
| 2025 | $15,824 |
Contact Agent
Nearby Similar Homes
Nearby Sold Comparables
Contact Agent
Listing Provided By
@properties Christie's International Real Estate


