2740 Seminary Avenue, Lincoln Park, Chicago, Illinois 60614
$745,000
|
Sold
|
|
| Status: | Closed |
| Sqft: | 1,300 |
| Cost/Sqft: | $573 |
| Beds: | 2 |
| Baths: | 2 |
| Year Built: | 2014 |
| Property Taxes: | $13,151 |
| Days On Market: | 1870 |
| Lot Size: | 0,00 |
Description
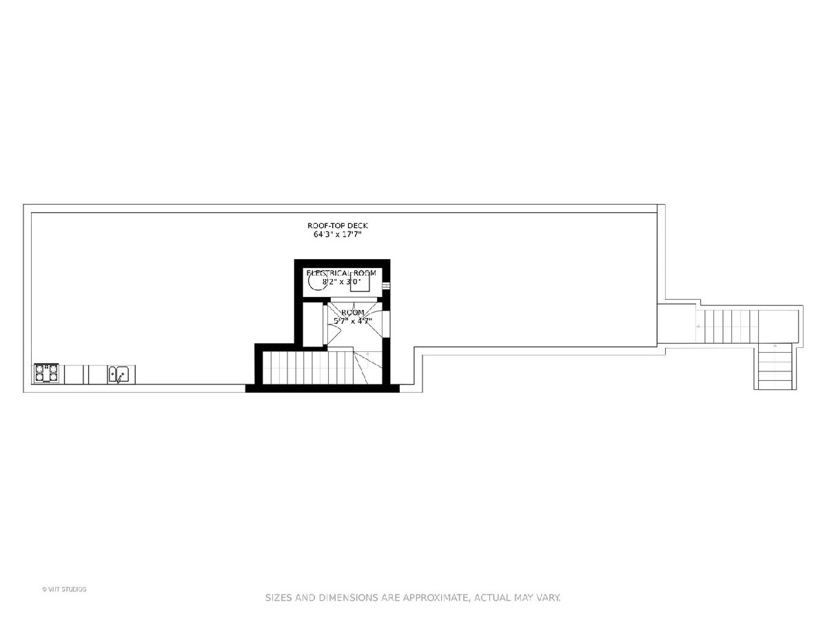
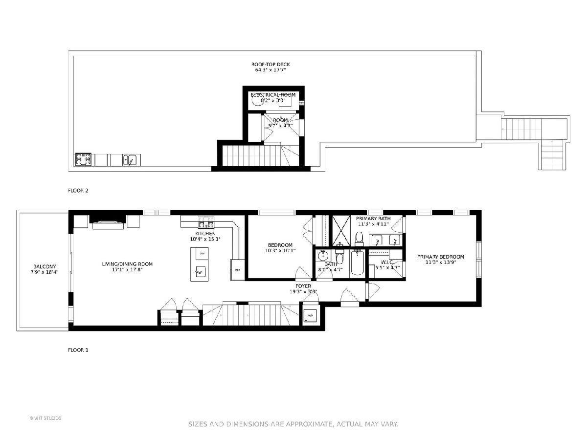
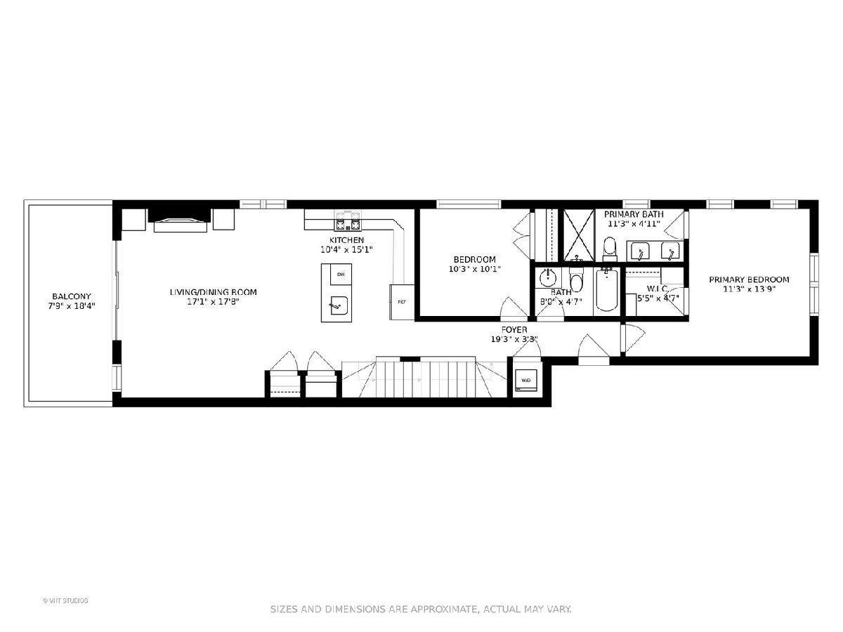
Beautiful and sun-drenched 2 bedroom, 2 bath penthouse condo with incredible private rooftop deck on lovely tree-lined street in fantastic walk to all Lincoln Park location! Built in 2014, this home has been extremely well maintained. Open concept front living, dining and kitchen space boasts tall ceilings, gorgeous custom wood built-in cabinets flanking the wood-burning gas fireplace with Carerra marble surround. Walk-out to your spacious front patio directly off of your living space. Additional home features include: stained white oak hardwood floors throughout, 8' solid core doors, surround sound and speakers, marble bathrooms and custom millwork throughout. Gourmet cook's kitchen features top-of-the-line stainless steel appliances including SubZero and Wolf, quart countertops, subway tile backsplash, hood that vents directly out, custom white wood cabinets built to ceiling. Fantastic primary suite comes complete with a professionally organized walk-in closet; and Carerra marble master bathroom with walk-in steam shower, dual vanity sinks and heated floors. Massive, private rooftop deck complete with turf and trex-like maintenance free decking; seller customized roofdeck with built-in grill, granite counter, beverage center & more; entertainer's dream with T.V. on roofdeck! Garage parking and extra storage closet included. A+ home and location ... just steps to the Diversey Brown/Purple Lines, Starbucks, Jonquil Park, Dom's Kitchen and Market, Trader Joe's, tons of great shopping and dining options. Must see!
Property Specifics
| Condos/Townhomes | |
| 3 | |
| — | |
| 2014 | |
| — | |
| — | |
| No | |
| — |
| Cook | |
| — | |
| 143 / Monthly | |
| — | |
| — | |
| — | |
| 11346025 | |
| 14294000280000 |
Property History
| DATE: | EVENT: | PRICE: | SOURCE: |
|---|---|---|---|
| 24 Nov, 2014 | Sold | $675,000 | MRED MLS |
| 27 Aug, 2014 | Under contract | $695,000 | MRED MLS |
| 9 Jul, 2014 | Listed for sale | $695,000 | MRED MLS |
| 19 Apr, 2022 | Sold | $745,000 | MRED MLS |
| 20 Mar, 2022 | Under contract | $745,000 | MRED MLS |
| 12 Mar, 2021 | Listed for sale | $745,000 | MRED MLS |
Room Specifics
Total Bedrooms: 2
Bedrooms Above Ground: 2
Bedrooms Below Ground: 0
Dimensions: —
Floor Type: —
Full Bathrooms: 2
Bathroom Amenities: Steam Shower,Double Sink
Bathroom in Basement: 0
Rooms: —
Basement Description: None
Other Specifics
| 1 | |
| — | |
| Asphalt,Shared | |
| — | |
| — | |
| COMMON | |
| — | |
| — | |
| — | |
| — | |
| Not in DB | |
| — | |
| — | |
| — | |
| — |
Tax History
| Year | Property Taxes |
|---|---|
| 2022 | $13,151 |
Contact Agent
Nearby Similar Homes
Nearby Sold Comparables
Contact Agent
Listing Provided By
@properties | Christie's International Real Estate


