2806 Billie Limacher Lane, Plainfield, Illinois 60586
$350,000
Sold
|
|
Status: | Closed |
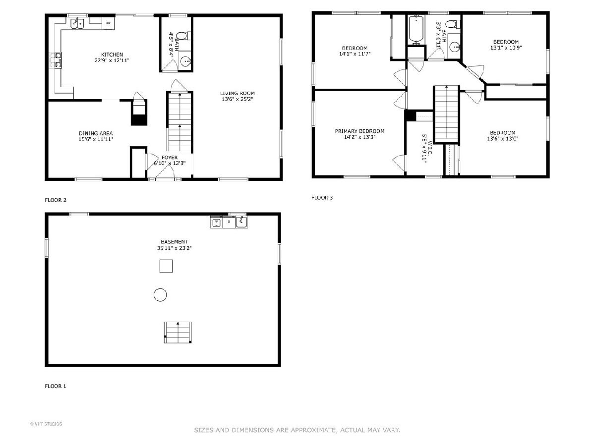
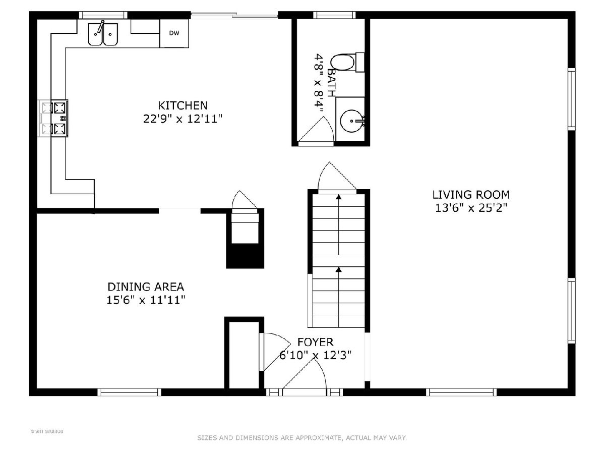
Sqft: | 1,886 |
Cost/Sqft: | $186 |
Beds: | 4 |
Baths: | 2 |
Year Built: | 1998 |
Property Taxes: | $6,326 |
Days On Market: | 242 |
Lot Size: | 0,00 |
Description
Step onto the welcoming, oversized front porch as you enter this freshly painted home top to bottom. Picture yourself unwinding in your private backyard oasis, featuring a brick patio and an above-ground pool installed in 2024, all surrounded by a low-maintenance, white privacy fence. Don't miss out on this well maintained home consiting of the furnace and A/C replaced in 2023, hot water heater 2025 & sump pump 2023. There is a ton of storage in the unfinihsed basement just waiting for your personal touches. Being sold As-Is. No HOA Fees
Property Specifics
Single Family | |
— | |
— | |
1998 | |
— | |
— | |
No | |
— |
Will | |
Mayfair | |
0 / Not Applicable | |
— | |
— | |
— | |
12268166 | |
0603302140210000 |
Nearby Schools
NAME: | DISTRICT: | DISTANCE: | |
---|---|---|---|
Grade School
Meadow View Elementary School |
202 | — | |
Middle School
Aux Sable Middle School |
202 | Not in DB | |
High School
Plainfield South High School |
202 | Not in DB |
Property History
DATE: | EVENT: | PRICE: | SOURCE: |
---|---|---|---|
17 Mar, 2025 | Sold | $350,000 | MRED MLS |
23 Feb, 2025 | Under contract | $350,000 | MRED MLS |
31 Jan, 2025 | Listed for sale | $350,000 | MRED MLS |




















Room Specifics
Total Bedrooms: 4
Bedrooms Above Ground: 4
Bedrooms Below Ground: 0
Dimensions: —
Floor Type: —
Dimensions: —
Floor Type: —
Dimensions: —
Floor Type: —
Full Bathrooms: 2
Bathroom Amenities: —
Bathroom in Basement: 0
Rooms: —
Basement Description: Unfinished
Other Specifics
2.5 | |
— | |
Asphalt | |
— | |
— | |
121.5 X 71.6 X 121.6 X 69. | |
— | |
— | |
— | |
— | |
Not in DB | |
— | |
— | |
— | |
— |
Tax History
Year | Property Taxes |
---|---|
2025 | $6,326 |
Contact Agent
Nearby Similar Homes
Nearby Sold Comparables
Contact Agent
Listing Provided By
Compass