2830 Saint Louis Avenue, South Lawndale, Chicago, Illinois 60623
$270,000
Sold
|
|
Status: | Closed |
Sqft: | 0 |
Cost/Sqft: | — |
Beds: | 6 |
Baths: | 0 |
Year Built: | 1904 |
Property Taxes: | $3,616 |
Days On Market: | 625 |
Lot Size: | 0,00 |
Description
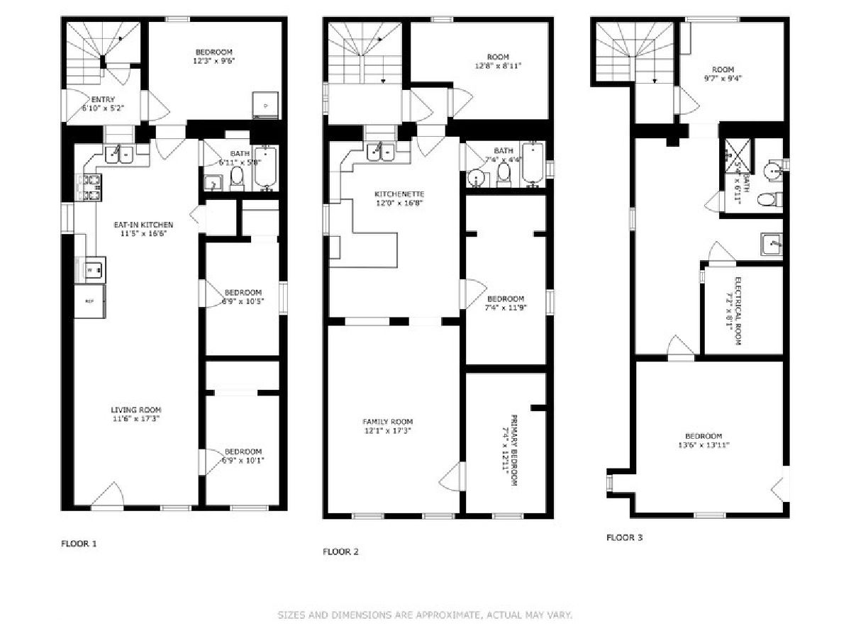
Welcoming to this clean brick two-unit home available in Little Village. The first floor unit features an open floor plan with 3 bedrooms/1 bath and in unit laundry. The second floor unit features 2 bedrooms/1 bath, a living room, an eat in kitchen, and in unit laundry. The attic space is large and finished with another room, bedroom, and bath. The attic has been rented as part of the 2nd unit and is only accessible via the exterior back porch entrance. Each unit has separate utilities. Home has a large back yard as well as a 2 car garage. Conveniently located near CTA, I55 and bustling 26th street shops and restaurants. Low Taxes, with some TLC this can be perfect for an investor or a house hacker! Come check this out before it's gone!
Property Specifics
Multi-unit | |
— | |
— | |
1904 | |
— | |
— | |
No | |
— |
Cook | |
— | |
— / — | |
— | |
— | |
— | |
11966047 | |
16264170360000 |
Property History
DATE: | EVENT: | PRICE: | SOURCE: |
---|---|---|---|
13 Mar, 2024 | Sold | $270,000 | MRED MLS |
7 Feb, 2024 | Under contract | $269,999 | MRED MLS |
— | Last price change | $285,000 | MRED MLS |
23 Jan, 2024 | Listed for sale | $269,999 | MRED MLS |










































Room Specifics
Total Bedrooms: 6
Bedrooms Above Ground: 6
Bedrooms Below Ground: 0
Dimensions: —
Floor Type: —
Dimensions: —
Floor Type: —
Dimensions: —
Floor Type: —
Dimensions: —
Floor Type: —
Dimensions: —
Floor Type: —
Full Bathrooms: 3
Bathroom Amenities: —
Bathroom in Basement: 0
Rooms: —
Basement Description: None
Other Specifics
2 | |
— | |
— | |
— | |
— | |
25X125 | |
— | |
— | |
— | |
— | |
Not in DB | |
— | |
— | |
— | |
— |
Tax History
Year | Property Taxes |
---|---|
2024 | $3,616 |
Contact Agent
Nearby Similar Homes
Nearby Sold Comparables
Contact Agent
Listing Provided By
Nelly Corp Realty