2976 Riverwalk Drive, Logan Square, Chicago, Illinois 60618
$544,000
|
Sold
|
|
| Status: | Closed |
| Sqft: | 2,589 |
| Cost/Sqft: | $212 |
| Beds: | 3 |
| Baths: | 3 |
| Year Built: | 2002 |
| Property Taxes: | $8,484 |
| Days On Market: | 1195 |
| Lot Size: | 0,00 |
Description
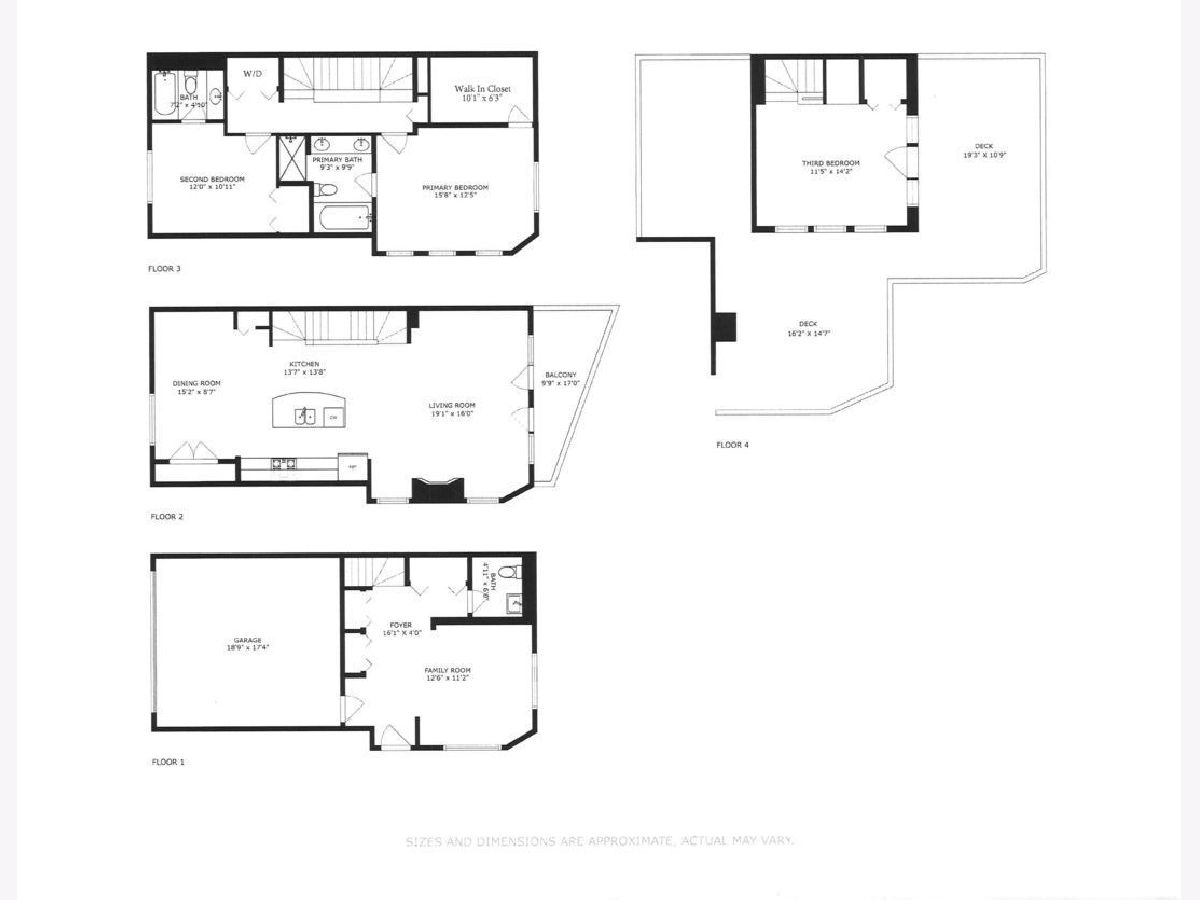
Serene river views from this corner unit River Walk Townhome with north, south and east exposures in West Lakeview/Avondale! Enjoy spacious living on 4 levels while appreciating incredible outdoor space that includes a huge wrap-around rooftop deck, a large deck off the main living area, and a rare private yard. You won't be able to find anything else like this for close to the price point. Stroll along the peaceful riverfront to your front door that opens to a first-floor family room (that can easily be used as a fourth bedroom) with a powder room close by. On the main level is an expansive living room (much larger than a typical townhome living space) with gas fireplace and two sets of glass doors that lead out to a balcony. The kitchen includes granite counters, a large center island with breakfast bar overhang, a plethora of cabinet and workspace, and pantry closet. The dining room will easily accommodate the largest of dining room furniture without feeling crowded. (This is not your typical cramped layout by any means.) The next level has two ensuite bedrooms which includes an oversized primary bedroom with incredible organized walk in closet and primary bath that has a whirlpool tub, separate shower, and double-bowl vanity. The second bedroom is very spacious as well and has its own attached bathroom. Side by side washer and dryer are conveniently located on this floor. On the top floor is an awesome bedroom or family room space that is bathed in natural light and opens out to an immense wrap-around roof deck with stunning lush river views. In addition to the roof decks and living room balcony, there is a rare wrap-around yard private to your home as well. An attached two-car garage offers easy access. I can't stress enough how different this home feels. More like a suburban home in the city. It is a superior layout to the typical townhome and offers such interesting river views. Imagine being here in the summer and enjoying the rarity of river-front living or kayaking from the boat dock steps from your home. All of this in West Lakeview/Avondale with nearly every convenience within a few short minutes, including easy expressway access, Mariano's, Target, Costco, Roscoe Village, and so much more. Recent improvements include the following: replaced both furnaces in 2019; replaced the upstairs air conditioning unit in 2019; 4th floor windows replaced in 2018; 4th floor door replaced in 2016; new luxury vinyl floors on first floor in 2023; garage door new in 2022; refrigerator & dishwasher new in 2020; garbage disposal new in 2019; entire house & garage repainted over last 2 years. Association replaced roof and roof decks in 2017.
Property Specifics
| Condos/Townhomes | |
| 4 | |
| — | |
| 2002 | |
| — | |
| — | |
| Yes | |
| — |
| Cook | |
| — | |
| 615 / Monthly | |
| — | |
| — | |
| — | |
| 11699089 | |
| 14301160251048 |
Nearby Schools
| NAME: | DISTRICT: | DISTANCE: | |
|---|---|---|---|
|
Grade School
Brentano Elementary School Math |
299 | — | |
|
Middle School
Brentano Elementary School Math |
299 | Not in DB | |
|
High School
Schurz High School |
299 | Not in DB | |
Property History
| DATE: | EVENT: | PRICE: | SOURCE: |
|---|---|---|---|
| 16 Feb, 2023 | Sold | $544,000 | MRED MLS |
| 20 Jan, 2023 | Under contract | $549,000 | MRED MLS |
| 11 Jan, 2023 | Listed for sale | $549,000 | MRED MLS |
Room Specifics
Total Bedrooms: 3
Bedrooms Above Ground: 3
Bedrooms Below Ground: 0
Dimensions: —
Floor Type: —
Dimensions: —
Floor Type: —
Full Bathrooms: 3
Bathroom Amenities: Whirlpool,Separate Shower,Double Sink
Bathroom in Basement: 0
Rooms: —
Basement Description: None
Other Specifics
| 2 | |
| — | |
| — | |
| — | |
| — | |
| COMMON | |
| — | |
| — | |
| — | |
| — | |
| Not in DB | |
| — | |
| — | |
| — | |
| — |
Tax History
| Year | Property Taxes |
|---|---|
| 2023 | $8,484 |
Contact Agent
Nearby Similar Homes
Nearby Sold Comparables
Contact Agent
Listing Provided By
@properties Christie's International Real Estate


