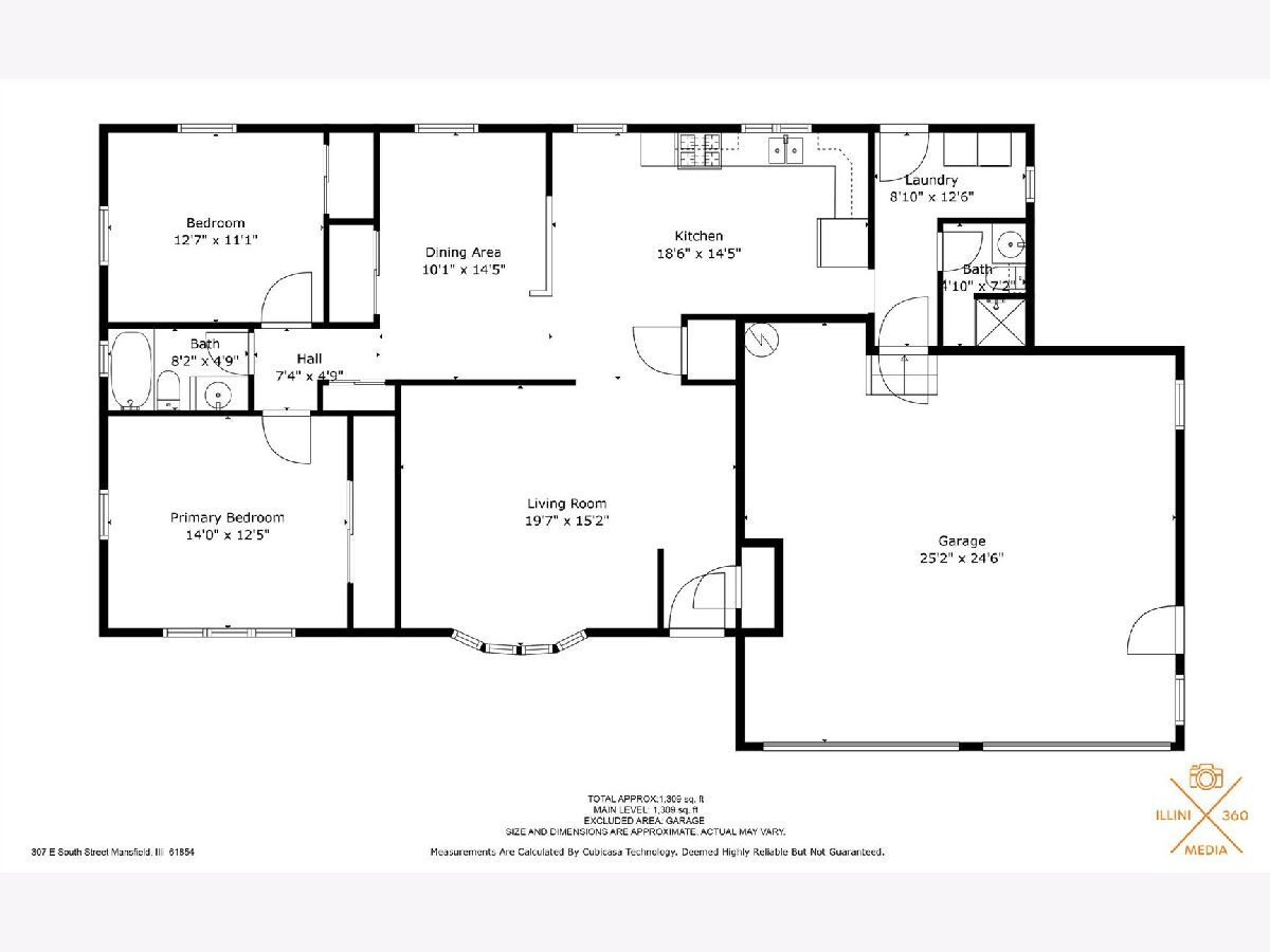
307 South Street, Mansfield, Illinois 61854
$167,000
Sold
|
|
Status: | Closed |
Sqft: | 1,309 |
Cost/Sqft: | $137 |
Beds: | 2 |
Baths: | 2 |
Year Built: | 1964 |
Property Taxes: | $928 |
Days On Market: | 523 |
Lot Size: | 0,00 |
Description
3bd/2ba ranch was converted to a 2bd, but could easily be changed back. This well built home sits on a corner lot near the local school. It has solid wood flooring, newer windows that allow lots of natural light to pour in, neutral paint colors and a desirable floorplan. The kitchen has an upgraded oven, cooktop and vent hood. The septic system has been redone in recent years. There are two sheds and a patio in the backyard and an attached 2 car garage.
Property Specifics
Single Family | |
— | |
— | |
1964 | |
— | |
— | |
No | |
0 |
Piatt | |
— | |
0 / Not Applicable | |
— | |
— | |
— | |
12046792 | |
02004700037400 |
Nearby Schools
NAME: | DISTRICT: | DISTANCE: | |
---|---|---|---|
Grade School
Bement Elementary School |
5 | — | |
Middle School
Blue Ridge Junior High School |
18 | Not in DB | |
High School
Blue Ridge High School |
18 | Not in DB |
Property History
DATE: | EVENT: | PRICE: | SOURCE: |
---|---|---|---|
24 May, 2024 | Sold | $167,000 | MRED MLS |
7 May, 2024 | Under contract | $179,500 | MRED MLS |
3 May, 2024 | Listed for sale | $179,500 | MRED MLS |






































Room Specifics
Total Bedrooms: 2
Bedrooms Above Ground: 2
Bedrooms Below Ground: 0
Dimensions: —
Floor Type: —
Full Bathrooms: 2
Bathroom Amenities: —
Bathroom in Basement: 0
Rooms: —
Basement Description: Crawl
Other Specifics
2 | |
— | |
Concrete | |
— | |
— | |
140.2X75 | |
— | |
— | |
— | |
— | |
Not in DB | |
— | |
— | |
— | |
— |
Tax History
Year | Property Taxes |
---|---|
2024 | $928 |
Contact Agent
Nearby Similar Homes
Nearby Sold Comparables
Contact Agent
Listing Provided By
Taylor Realty Associates