3234 Fulton Boulevard, East Garfield Park, Chicago, Illinois 60624
$433,227
|
Sold
|
|
| Status: | Closed |
| Sqft: | 0 |
| Cost/Sqft: | — |
| Beds: | 6 |
| Baths: | 0 |
| Year Built: | 1893 |
| Property Taxes: | $7,622 |
| Days On Market: | 551 |
| Lot Size: | 0,00 |
Description
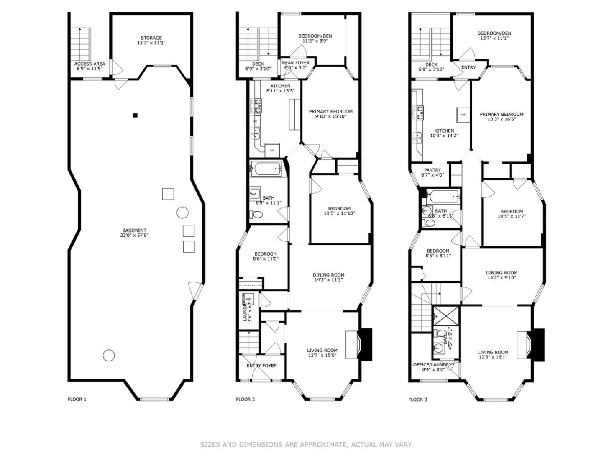
Classic Greystone with EXTRA DEEP lot & 3 bedroom units on Fulton Boulevard in prime East Garfield Park location. This Owner occupied 2 flat is optimal for live-in owners or investors looking for spacious rental units in a centrally located neighborhood. Both apartments are freshly painted and ready for new occupants. Each unit features ten foot ceilings, 3 bedrooms, historic Oak strip flooring, gorgeous architectural details, individual CENTRAL AIR/HEAT (less than 6 years old) and generously sized living & dining areas. First floor features a laundry room, and second floor has open area adjoining bathroom perfectly suited for a washer & dryer. Second floor has two full bathrooms. Both units have huge primary bedrooms - big enough for King size beds & couch!! First floor kitchen features granite counters, cherry cabinets, stainless appliances including dishwasher & tasteful tile flooring. Second floor kitchen was recently updated with new lower cabinets, counters, and subway tile backsplash along with a walk-in pantry. Both units also feature large rooms at the back of the units ideal for a 4th bedroom, home office, or a laboratory. There is a small deck outside the back door. The extra deep backyard provides ample space for gardening, jungle gyms, and parking. The raw basement used to have an apartment, and is well suited for additional living space with a separate heating system, front & back entry, and decent ceiling height. Bonus - new hot water heater, updated electrical panels & service, & new foundation posts. Location is truly a gem! Minutes walk to the Green Line train, and located on a quiet street that provides an easy bike route direct to downtown. A few blocks away is the renowned Garfield Park Conservatory, one of America's largest indoor botanical gardens as well as a lake, swimming pool, and acres of outdoor paradise. At this price, it doesn't get much better!!
Property Specifics
| Multi-unit | |
| — | |
| — | |
| 1893 | |
| — | |
| — | |
| No | |
| 0 |
| Cook | |
| — | |
| — / — | |
| — | |
| — | |
| — | |
| 12166792 | |
| 16114050770000 |
Property History
| DATE: | EVENT: | PRICE: | SOURCE: |
|---|---|---|---|
| 24 Jan, 2012 | Sold | $39,100 | MRED MLS |
| 18 Dec, 2011 | Under contract | $38,000 | MRED MLS |
| — | Last price change | $65,000 | MRED MLS |
| 9 Sep, 2010 | Listed for sale | $165,000 | MRED MLS |
| 16 Jun, 2020 | Sold | $231,000 | MRED MLS |
| 3 May, 2020 | Under contract | $220,000 | MRED MLS |
| 27 Apr, 2020 | Listed for sale | $220,000 | MRED MLS |
| 6 Nov, 2024 | Sold | $433,227 | MRED MLS |
| 24 Sep, 2024 | Under contract | $425,000 | MRED MLS |
| — | Last price change | $375,000 | MRED MLS |
| 18 Sep, 2024 | Listed for sale | $375,000 | MRED MLS |
Room Specifics
Total Bedrooms: 6
Bedrooms Above Ground: 6
Bedrooms Below Ground: 0
Dimensions: —
Floor Type: —
Dimensions: —
Floor Type: —
Dimensions: —
Floor Type: —
Dimensions: —
Floor Type: —
Dimensions: —
Floor Type: —
Full Bathrooms: 3
Bathroom Amenities: —
Bathroom in Basement: —
Rooms: —
Basement Description: Unfinished
Other Specifics
| — | |
| — | |
| — | |
| — | |
| — | |
| 25X150 | |
| — | |
| — | |
| — | |
| — | |
| Not in DB | |
| — | |
| — | |
| — | |
| — |
Tax History
| Year | Property Taxes |
|---|---|
| 2012 | $3,550 |
| 2020 | $3,557 |
| 2024 | $7,622 |
Contact Agent
Nearby Similar Homes
Nearby Sold Comparables
Contact Agent
Listing Provided By
Captain Realty LLC


