3601 Kimball Avenue, Irving Park, Chicago, Illinois 60618
$230,000
|
Sold
|
|
| Status: | Closed |
| Sqft: | 1,901 |
| Cost/Sqft: | $155 |
| Beds: | 4 |
| Baths: | 3 |
| Year Built: | 1924 |
| Property Taxes: | $8,070 |
| Days On Market: | 1317 |
| Lot Size: | 0,09 |
Description
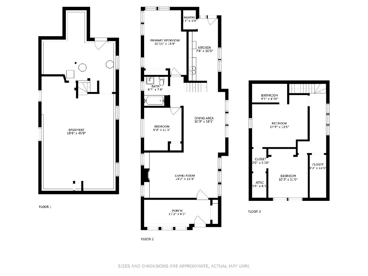
Attention Investors, Rehabbers and HomeBuyers. Property is partially rehabbed -- 4 bedrooms, 3 baths, Fireplace, hardwood floors, high ceilings, new kitchen cabinets, kitchen will need appliances and countertops. New HVAC, Hot water tank, furnace, electrical and plumbing. Second floor is framed and unfinished, needs insulation, drywall and the full bath is roughed in. One car garage and fenced yard. Property sold As-is, Cash or Rehab loan preferred.
Property Specifics
| Single Family | |
| — | |
| — | |
| 1924 | |
| — | |
| — | |
| No | |
| 0.09 |
| Cook | |
| — | |
| — / Not Applicable | |
| — | |
| — | |
| — | |
| 11488117 | |
| 13232310190000 |
Property History
| DATE: | EVENT: | PRICE: | SOURCE: |
|---|---|---|---|
| 14 Feb, 2019 | Sold | $230,000 | MRED MLS |
| 25 Jan, 2019 | Under contract | $219,900 | MRED MLS |
| — | Last price change | $239,900 | MRED MLS |
| 24 Oct, 2018 | Listed for sale | $249,900 | MRED MLS |
| 28 Feb, 2023 | Sold | $230,000 | MRED MLS |
| 17 Mar, 2023 | Under contract | $295,000 | MRED MLS |
| — | Last price change | $320,000 | MRED MLS |
| 10 Aug, 2022 | Listed for sale | $345,000 | MRED MLS |
Room Specifics
Total Bedrooms: 4
Bedrooms Above Ground: 4
Bedrooms Below Ground: 0
Dimensions: —
Floor Type: —
Dimensions: —
Floor Type: —
Dimensions: —
Floor Type: —
Full Bathrooms: 3
Bathroom Amenities: —
Bathroom in Basement: 1
Rooms: —
Basement Description: Partially Finished
Other Specifics
| 1 | |
| — | |
| Concrete | |
| — | |
| — | |
| 3780 | |
| — | |
| — | |
| — | |
| — | |
| Not in DB | |
| — | |
| — | |
| — | |
| — |
Tax History
| Year | Property Taxes |
|---|---|
| 2019 | $6,391 |
| 2023 | $8,070 |
Contact Agent
Nearby Similar Homes
Nearby Sold Comparables
Contact Agent
Listing Provided By
Coldwell Banker Realty


