3806 Raymond Avenue, Brookfield, Illinois 60513
$356,000
|
Sold
|
|
| Status: | Closed |
| Sqft: | 1,070 |
| Cost/Sqft: | $327 |
| Beds: | 2 |
| Baths: | 2 |
| Year Built: | 1928 |
| Property Taxes: | $9,826 |
| Days On Market: | 777 |
| Lot Size: | 0,00 |
Description
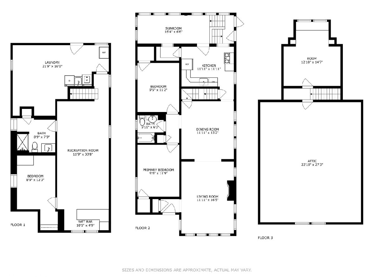
Soooo Sweet!! Do not miss this super clean, well kept, truly cozy authentic Chicago style all brick bungalow with just the right blend of vintage detail with recent improvements and upgrades. Bright and sunny living room leads into the huge formal dining room perfect for entertaining! Primary and second bedrooms on main level. Kitchen with white cabinets, stone countertops and large walk-in pantry opens to the quiet sanctuary of an enclosed porch overlooking the fenced in backyard with 2 car garage. Upgrades and improvements include full, walkout finished basement with beautifully sized third bedroom, full bathroom, dry bar, newer basement windows 2017, newer stove and refrigerator in kitchen 2018, enclosed back porch 2014, new gutters 2014, new garage in 2009. Huge laundry room with storage and exterior access. Vintage details include the crown moldings, decorative fireplace, built-in bureau in the living room, hardwood floors, huge walk up attic which could be utilized for storage and bonus space~orrrr, dream big and consider building out for an incredible Primary suite! All galvanized piping replaced with copper pipes. Walk to the Metra Stations, library and vibrant Downtown Brookfield.. Don't forget to get your season pass to Brookfield Zoo~tons of fun and loads of events~Great neighborhood, desirable school district, come see and appreciate!
Property Specifics
| Single Family | |
| — | |
| — | |
| 1928 | |
| — | |
| — | |
| No | |
| — |
| Cook | |
| — | |
| — / Not Applicable | |
| — | |
| — | |
| — | |
| 11982725 | |
| 15343280160000 |
Nearby Schools
| NAME: | DISTRICT: | DISTANCE: | |
|---|---|---|---|
|
Grade School
Brook Park Elementary School |
95 | — | |
|
High School
Riverside Brookfield Twp Senior |
208 | Not in DB | |
Property History
| DATE: | EVENT: | PRICE: | SOURCE: |
|---|---|---|---|
| 20 May, 2016 | Sold | $225,000 | MRED MLS |
| 21 Mar, 2016 | Under contract | $229,900 | MRED MLS |
| 16 Mar, 2016 | Listed for sale | $229,900 | MRED MLS |
| 20 Jul, 2018 | Sold | $255,000 | MRED MLS |
| 6 Jun, 2018 | Under contract | $254,900 | MRED MLS |
| 31 May, 2018 | Listed for sale | $254,900 | MRED MLS |
| 5 Apr, 2024 | Sold | $356,000 | MRED MLS |
| 11 Mar, 2024 | Under contract | $350,000 | MRED MLS |
| 7 Mar, 2024 | Listed for sale | $350,000 | MRED MLS |
Room Specifics
Total Bedrooms: 3
Bedrooms Above Ground: 2
Bedrooms Below Ground: 1
Dimensions: —
Floor Type: —
Dimensions: —
Floor Type: —
Full Bathrooms: 2
Bathroom Amenities: —
Bathroom in Basement: 1
Rooms: —
Basement Description: Finished
Other Specifics
| 2 | |
| — | |
| — | |
| — | |
| — | |
| 30 X 125 | |
| Unfinished | |
| — | |
| — | |
| — | |
| Not in DB | |
| — | |
| — | |
| — | |
| — |
Tax History
| Year | Property Taxes |
|---|---|
| 2016 | $5,378 |
| 2018 | $5,704 |
| 2024 | $9,826 |
Contact Agent
Nearby Similar Homes
Nearby Sold Comparables
Contact Agent
Listing Provided By
@properties Christie's International Real Estate


