39W775 Terney Lane, Geneva, Illinois 60134
$490,000
|
Sold
|
|
| Status: | Closed |
| Sqft: | 2,416 |
| Cost/Sqft: | $203 |
| Beds: | 3 |
| Baths: | 4 |
| Year Built: | 1996 |
| Property Taxes: | $10,700 |
| Days On Market: | 837 |
| Lot Size: | 0,00 |
Description
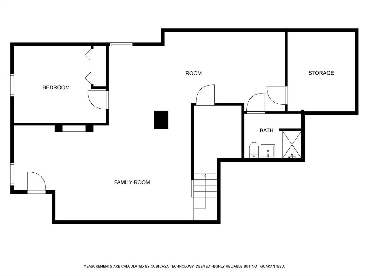
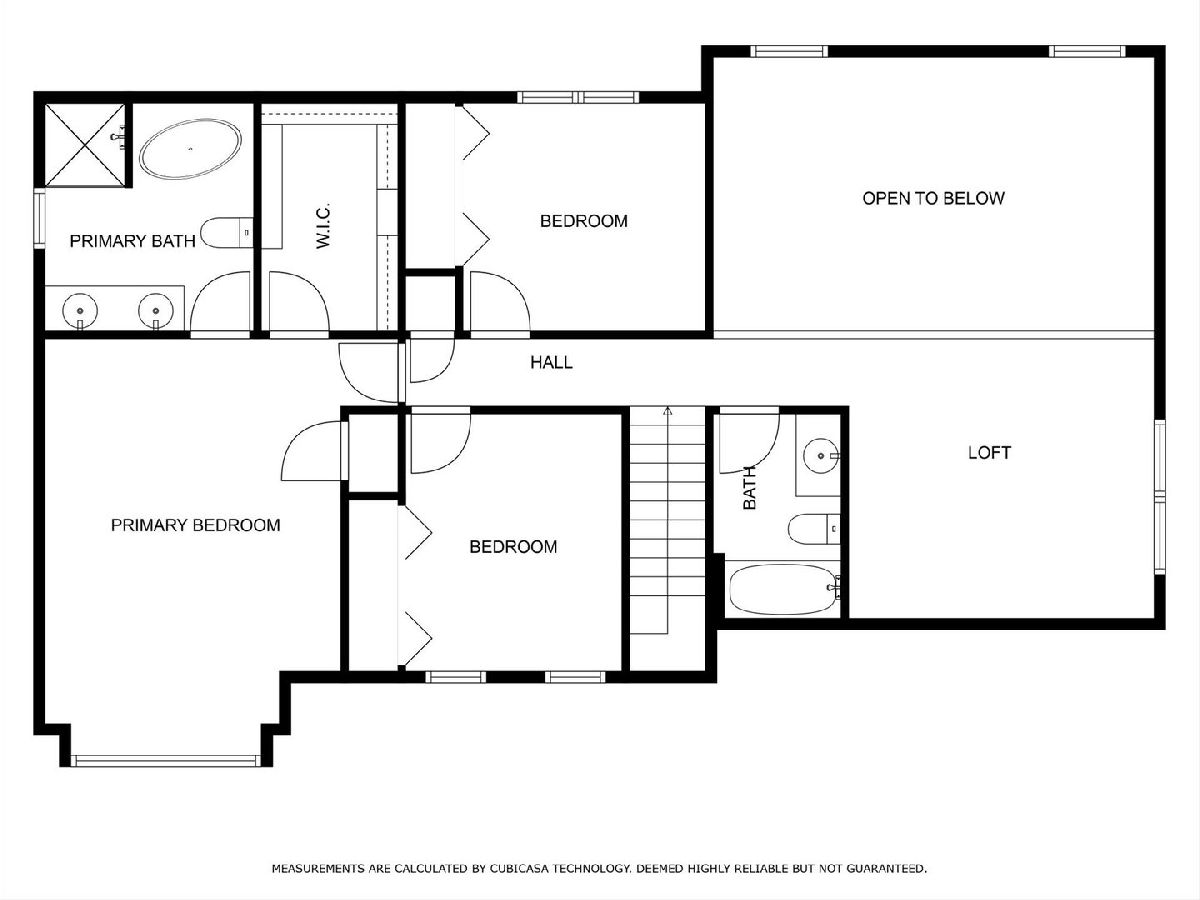
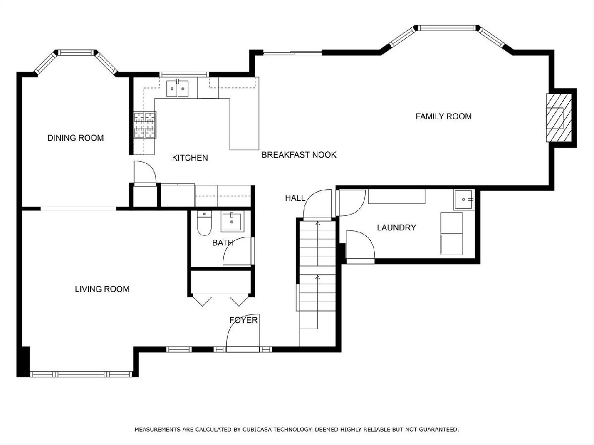
NEW YEAR * NEW DREAMS * NEW HOME!! AMAZING MILL CREEK EXPANDED "SHANNON" MODEL FEATURING 4 BEDROOMS , 3.5 BATHS, PLUS LOFT AND FINISHED BASEMENT * ALL SITUATED ON BEAUTIFUL CORNER LOT ACROSS FROM THE PARK! THIS ONE CHECKS ALL OF THE BOXES WITH A FAMILY-FRIENDLY LAYOUT - AND GORGEOUS BAY AND BOXED WINDOWS THROUGHOUT MAIN LEVEL * BIG EAT IN KITCHEN WITH HARDWOOD FLOORS, GRANITE COUNTERS AND HIGH END SS APPLIANCES * OPEN CONCEPT TO VAULTED FAMILY ROOM WITH VAULTED CEILING, SKYLIGHTS AND COZY FIREPLACE * BEAUTIFULLY APPOINTED FORMAL DINING ROOM WITH BAY WINDOW AND HARDWOOD FLOORS FLOWING INTO LARGE FORMAL LIVING ROOM * PLUS CONVENIENT MAIN FLOOR POWDER ROOM AND LAUNDRY ROOM * UPSTAIRS BOASTS OVERSIZE PRIMARY SUITE WITH WIC, HARDWOOD FLOORS AND A KNOCK-OUT FULLY RENOVATED SPA-LIKE PRIVATE FULL BATH WITH SEP SHOWER AND SOAKER TUB! 2 ADDITIONAL GENEROUS BEDROOMS AND FULL UPDATED BATH... PLUS AMAZING FLEXIBLE LOFT SPACE TOO! THE FUN DOESN'T STOP HERE... GREAT FINISHED BASEMENT WITH RECREATION ROOM, 4TH BEDROOM AND FULL BATH - PLUS GREAT STORAGE! ATTACHED 2 CAR GARAGE AND GREAT YARD WITH BIG PRIVATE PAVER PATIO WITH RETAINING WALL! CORNER LOT NEXT TO PARK - ACCLAIMED GENEVA DIST 304 SCHOOLS AND CLOSE TO SHOPPING AND MORE... EXCEPTIONAL PEOPLE DESERVE AND EXCEPTIONAL HOME - SEE THIS ONE TODAY - LIST OF UPDATES IN MLS ADDTL INFORMATION!
Property Specifics
| Single Family | |
| — | |
| — | |
| 1996 | |
| — | |
| — | |
| No | |
| — |
| Kane | |
| Mill Creek | |
| 0 / Not Applicable | |
| — | |
| — | |
| — | |
| 11955215 | |
| 1112330003 |
Nearby Schools
| NAME: | DISTRICT: | DISTANCE: | |
|---|---|---|---|
|
Grade School
Mill Creek Elementary School |
304 | — | |
|
Middle School
Geneva Middle School |
304 | Not in DB | |
|
High School
Geneva Community High School |
304 | Not in DB | |
Property History
| DATE: | EVENT: | PRICE: | SOURCE: |
|---|---|---|---|
| 5 Dec, 2014 | Sold | $287,500 | MRED MLS |
| 9 Nov, 2014 | Under contract | $295,000 | MRED MLS |
| — | Last price change | $300,000 | MRED MLS |
| 12 Jun, 2014 | Listed for sale | $320,000 | MRED MLS |
| 1 Mar, 2024 | Sold | $490,000 | MRED MLS |
| 15 Jan, 2024 | Under contract | $489,500 | MRED MLS |
| 11 Jan, 2024 | Listed for sale | $489,500 | MRED MLS |
Room Specifics
Total Bedrooms: 4
Bedrooms Above Ground: 3
Bedrooms Below Ground: 1
Dimensions: —
Floor Type: —
Dimensions: —
Floor Type: —
Dimensions: —
Floor Type: —
Full Bathrooms: 4
Bathroom Amenities: —
Bathroom in Basement: 1
Rooms: —
Basement Description: —
Other Specifics
| 2 | |
| — | |
| — | |
| — | |
| — | |
| 90X80X110X80 | |
| — | |
| — | |
| — | |
| — | |
| Not in DB | |
| — | |
| — | |
| — | |
| — |
Tax History
| Year | Property Taxes |
|---|---|
| 2014 | $9,073 |
| 2024 | $10,700 |
Contact Agent
Nearby Similar Homes
Nearby Sold Comparables
Contact Agent
Listing Provided By
Legacy Properties


