4531 Howdy Lane, Alsip, Illinois 60803
$290,000
|
Sold
|
|
| Status: | Closed |
| Sqft: | 2,163 |
| Cost/Sqft: | $139 |
| Beds: | 4 |
| Baths: | 2 |
| Year Built: | 1967 |
| Property Taxes: | $5,038 |
| Days On Market: | 1398 |
| Lot Size: | 0,16 |
Description
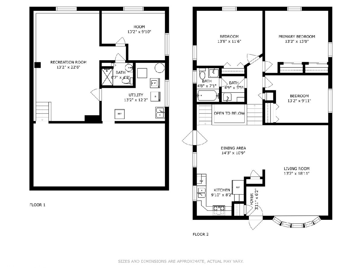
Welcome to this beautiful split level home on a beautiful corner lot! This home has red oak hardwood floors throughout the first and second floors. The sub-level has new tile floor, complete with electric radiant heat, perfect for a family room space. The kitchen features all stainless steel updated appliances, solid oak cabinets, pantry, quartz countertops and backsplash, and eating area. Upstairs has 3 bedrooms nice size bedrooms and a beautifully redone bathroom complete with two sinks and shower/bathtub. One of the sinks are outside the shower area for privacy and perfect for a family who needs to all use the bathroom at once. Downstairs has a 4th bedroom, currently being used as storage. This would be a perfect room for an office or an in-law area. The full bathroom downstairs has a stand-up shower and completely updated. Beautiful back patio fully fenced, creates an entertaining space as well as plenty of yard for the family or pets. The 2.5 car garage provides for plenty of storage, entrance to garage on Joalyce. Roof is 4 years old (still has warranty), Boiler is around 10 years old, AC is 15 years old, Hot Water Heater is 1-2 years old. Newer windows as well. Aluminum siding in great shape. Walkable distance to Barnes Park, Alsip Aquatic Park, Mary J. Lynch Skate Park, Stony Creek Elementary, Prairie Junior High.
Property Specifics
| Single Family | |
| — | |
| — | |
| 1967 | |
| — | |
| — | |
| No | |
| 0.16 |
| Cook | |
| Howdy Homes | |
| — / Not Applicable | |
| — | |
| — | |
| — | |
| 11443979 | |
| 24223380120000 |
Nearby Schools
| NAME: | DISTRICT: | DISTANCE: | |
|---|---|---|---|
|
Grade School
Stony Creek Elementary School |
126 | — | |
|
Middle School
Prairie Junior High School |
126 | Not in DB | |
Property History
| DATE: | EVENT: | PRICE: | SOURCE: |
|---|---|---|---|
| 22 Aug, 2022 | Sold | $290,000 | MRED MLS |
| 10 Jul, 2022 | Under contract | $300,000 | MRED MLS |
| 5 Jul, 2022 | Listed for sale | $300,000 | MRED MLS |
Room Specifics
Total Bedrooms: 4
Bedrooms Above Ground: 4
Bedrooms Below Ground: 0
Dimensions: —
Floor Type: —
Dimensions: —
Floor Type: —
Dimensions: —
Floor Type: —
Full Bathrooms: 2
Bathroom Amenities: Separate Shower,Double Sink,Soaking Tub
Bathroom in Basement: —
Rooms: —
Basement Description: None
Other Specifics
| 2 | |
| — | |
| Concrete | |
| — | |
| — | |
| 0.165 | |
| Unfinished | |
| — | |
| — | |
| — | |
| Not in DB | |
| — | |
| — | |
| — | |
| — |
Tax History
| Year | Property Taxes |
|---|---|
| 2022 | $5,038 |
Contact Agent
Nearby Similar Homes
Contact Agent
Listing Provided By
Compass


