7602 Church Street, Morton Grove, Illinois 60053
$435,000
Sold
|
|
Status: | Closed |
Sqft: | 1,774 |
Cost/Sqft: | $245 |
Beds: | 3 |
Baths: | 3 |
Year Built: | 1962 |
Property Taxes: | $6,511 |
Days On Market: | 1211 |
Lot Size: | 0,23 |
Description
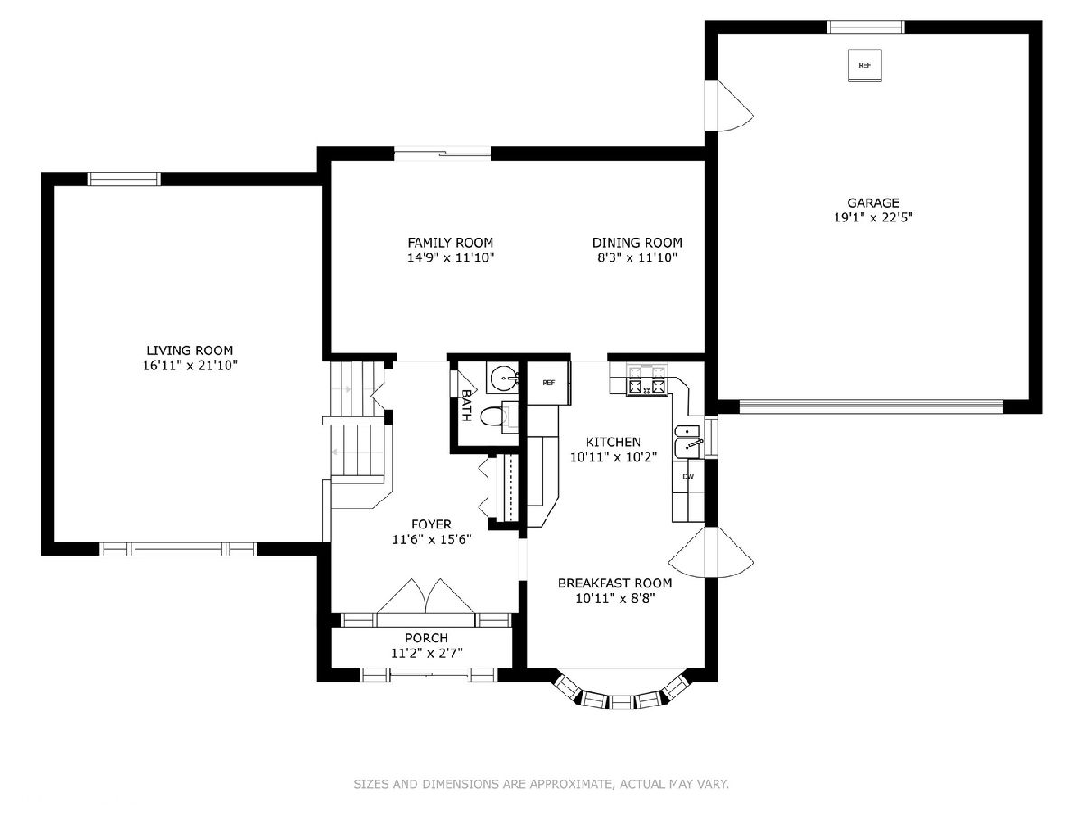
This well-maintained mid-century tri-level resides on a tree-lined street in the popular Maine East school district. The main floor features a large foyer, combined dining room/family room with sliders to the back yard, and a spacious eat-in kitchen with newer appliances (new Bosch dishwasher, and newer fridge and oven), and enclosed porch at front of house. The expansive and dramatic living room on the 2nd level has vaulted ceiling and is open to the foyer on the main floor. On the third level you'll find the primary bedroom and bath, along with two additional bedrooms and a hall bath. The basement space is very versatile - could be used as a den/office/exercise/playroom, in addition to the utility room with newer Maytag washer/dryer. Plenty of storage throughout the home. Great location across from Oriole Park and Pool, and close to parks, transportation, shopping and restaurants. Based on recent floor plans, assessor square footage appears to be understated. Above grade square footage is about 1774. Basement is 398. Garage is 429 and front porch is 29 sf.
Property Specifics
Single Family | |
— | |
— | |
1962 | |
— | |
— | |
No | |
0.23 |
Cook | |
— | |
— / Not Applicable | |
— | |
— | |
— | |
11431702 | |
09131140160000 |
Nearby Schools
NAME: | DISTRICT: | DISTANCE: | |
---|---|---|---|
Grade School
Melzer School |
63 | — | |
Middle School
Gemini Junior High School |
63 | Not in DB | |
High School
Maine East High School |
207 | Not in DB |
Property History
DATE: | EVENT: | PRICE: | SOURCE: |
---|---|---|---|
18 Jul, 2022 | Sold | $435,000 | MRED MLS |
12 Jun, 2022 | Under contract | $435,000 | MRED MLS |
10 Jun, 2022 | Listed for sale | $435,000 | MRED MLS |





















Room Specifics
Total Bedrooms: 3
Bedrooms Above Ground: 3
Bedrooms Below Ground: 0
Dimensions: —
Floor Type: —
Dimensions: —
Floor Type: —
Full Bathrooms: 3
Bathroom Amenities: —
Bathroom in Basement: 0
Rooms: —
Basement Description: Partially Finished
Other Specifics
2 | |
— | |
Concrete | |
— | |
— | |
84X70X38X55X97 | |
— | |
— | |
— | |
— | |
Not in DB | |
— | |
— | |
— | |
— |
Tax History
Year | Property Taxes |
---|---|
2022 | $6,511 |
Contact Agent
Nearby Similar Homes
Nearby Sold Comparables
Contact Agent
Listing Provided By
@properties Christie's International Real Estate