7911 Janes Avenue, Woodridge, Illinois 60517
$350,000
|
Sold
|
|
| Status: | Closed |
| Sqft: | 3,165 |
| Cost/Sqft: | $111 |
| Beds: | 4 |
| Baths: | 2 |
| Year Built: | 1967 |
| Property Taxes: | $7,379 |
| Days On Market: | 592 |
| Lot Size: | 0,00 |
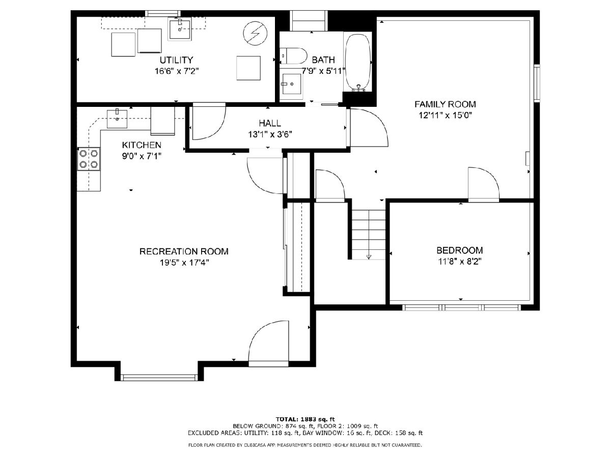
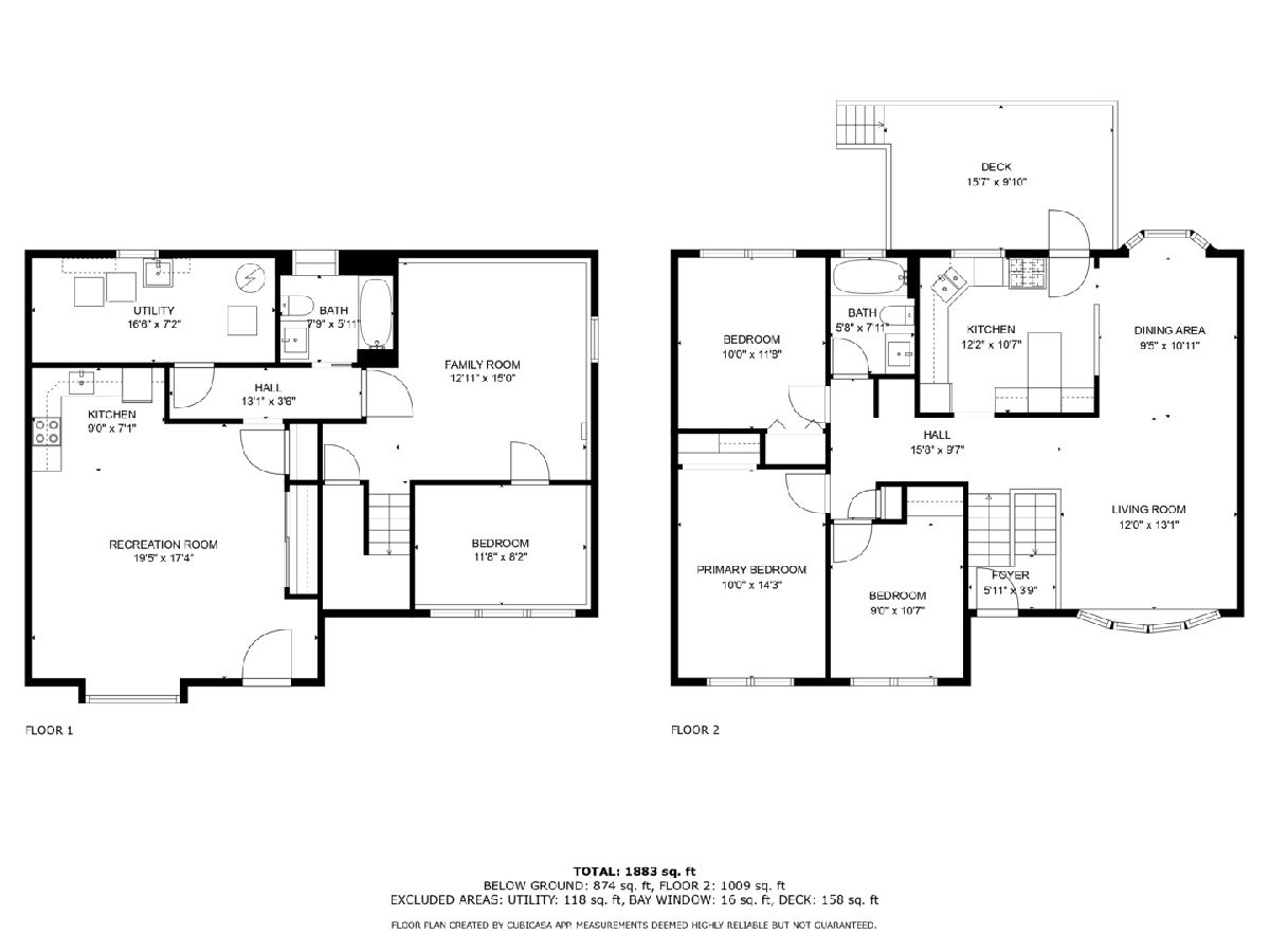
Description
This could be your dream home in Woodridge, Illinois! Well maintained updated raised ranch has four bedrooms and two full baths plus rare related living space. Kitchen has spacious solid oak cabinets and access to terrific deck and fully fenced yard. Related living space has own entrance plus separate appliances. The renovated lower level 4th bedroom could also be used as an office with plenty of natural light.Two car garage with high ceilings and an additional storage shed.Some of the updates include American Standard dual stage furnace (2022), Hot Water Heater (2021), Refrigerator in related living (2022), lower level bath renovation (2023) Upper level bath renovation (2024), trim and fixtures updated throughout, GFCI outlets added, Deck (2020), Garage roof, fascia and soffits replaced (2021), Roof and Gutters with Leaf Guard repaired/replaced (2021) and new storm door (2021).Flooring has either been refinished or replaced throughout. This property is conveniently located near schools, shopping centers, parks and major highways making it an ideal choice for commuters! Property is being sold AS_IS. Schedule a showing today and experience the best of Woodridge living!
Property Specifics
| Single Family | |
| — | |
| — | |
| 1967 | |
| — | |
| — | |
| No | |
| — |
| — | |
| — | |
| 0 / Not Applicable | |
| — | |
| — | |
| — | |
| 12105175 | |
| 0836204003 |
Nearby Schools
| NAME: | DISTRICT: | DISTANCE: | |
|---|---|---|---|
|
Grade School
William F Murphy Elementary Scho |
68 | — | |
|
Middle School
Thomas Jefferson Junior High Sch |
68 | Not in DB | |
|
High School
South High School |
99 | Not in DB | |
Property History
| DATE: | EVENT: | PRICE: | SOURCE: |
|---|---|---|---|
| 9 Jul, 2015 | Sold | $217,000 | MRED MLS |
| 21 May, 2015 | Under contract | $219,900 | MRED MLS |
| 9 May, 2015 | Listed for sale | $219,900 | MRED MLS |
| 1 Oct, 2020 | Sold | $250,100 | MRED MLS |
| 21 Aug, 2020 | Under contract | $250,000 | MRED MLS |
| 31 Jul, 2020 | Listed for sale | $250,000 | MRED MLS |
| 16 Sep, 2024 | Sold | $350,000 | MRED MLS |
| 30 Jul, 2024 | Under contract | $350,000 | MRED MLS |
| 26 Jul, 2024 | Listed for sale | $350,000 | MRED MLS |
Room Specifics
Total Bedrooms: 4
Bedrooms Above Ground: 4
Bedrooms Below Ground: 0
Dimensions: —
Floor Type: —
Dimensions: —
Floor Type: —
Dimensions: —
Floor Type: —
Full Bathrooms: 2
Bathroom Amenities: —
Bathroom in Basement: 1
Rooms: —
Basement Description: Finished
Other Specifics
| 2 | |
| — | |
| Asphalt | |
| — | |
| — | |
| 76 X 122 | |
| — | |
| — | |
| — | |
| — | |
| Not in DB | |
| — | |
| — | |
| — | |
| — |
Tax History
| Year | Property Taxes |
|---|---|
| 2015 | $5,209 |
| 2020 | $6,606 |
| 2024 | $7,379 |
Contact Agent
Nearby Similar Homes
Nearby Sold Comparables
Contact Agent
Listing Provided By
Baird & Warner


