912 County Road 590, Tuscola, Illinois 61953
$275,000
|
Sold
|
|
| Status: | Closed |
| Sqft: | 1,904 |
| Cost/Sqft: | $157 |
| Beds: | 3 |
| Baths: | 2 |
| Year Built: | 1920 |
| Property Taxes: | $3,867 |
| Days On Market: | 517 |
| Lot Size: | 10,33 |
Description
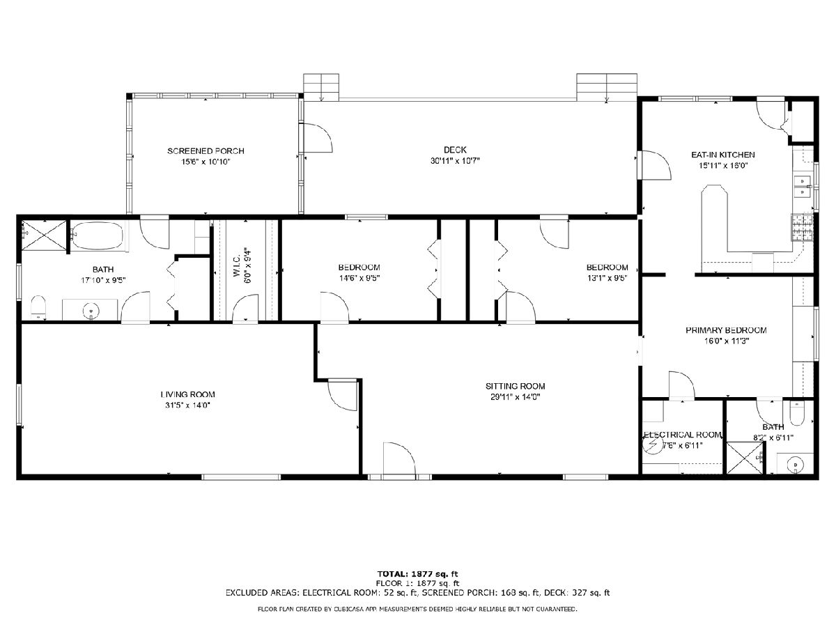
Wonderful homestead situated on over ten acres just west of Tuscola that adjoins the Kaskaskia River. Property has added bonuses with Arcola water and natural gas and gorgeous views. Home features large rooms with front living room, separate dining room and eat-in kitchen. Master bedroom is very generous in size and includes full bath and walk-in closet. Other two bedrooms are also nice size. Outside you'll find a screened porch and four car garage-half was used as a workshop. Improvements include HVAC 12, some windows 15, roof on house 16, roof on garage 18, attic insulation 22, and water heater 21. Don't miss this rare opportunity to own a beautiful homesite in Douglas County.
Property Specifics
| Single Family | |
| — | |
| — | |
| 1920 | |
| — | |
| — | |
| No | |
| 10.33 |
| Douglas | |
| — | |
| — / Not Applicable | |
| — | |
| — | |
| — | |
| 12188769 | |
| 05070120001100 |
Nearby Schools
| NAME: | DISTRICT: | DISTANCE: | |
|---|---|---|---|
|
Grade School
Tuscola Elementary School |
301 | — | |
|
Middle School
Tuscola Junior High School |
301 | Not in DB | |
|
High School
Tuscola High School |
301 | Not in DB | |
Property History
| DATE: | EVENT: | PRICE: | SOURCE: |
|---|---|---|---|
| 24 Mar, 2025 | Sold | $275,000 | MRED MLS |
| 28 Jan, 2025 | Under contract | $299,000 | MRED MLS |
| — | Last price change | $310,000 | MRED MLS |
| 21 Oct, 2024 | Listed for sale | $310,000 | MRED MLS |
Room Specifics
Total Bedrooms: 3
Bedrooms Above Ground: 3
Bedrooms Below Ground: 0
Dimensions: —
Floor Type: —
Dimensions: —
Floor Type: —
Full Bathrooms: 2
Bathroom Amenities: —
Bathroom in Basement: 0
Rooms: —
Basement Description: Crawl
Other Specifics
| 5 | |
| — | |
| Gravel | |
| — | |
| — | |
| 10.33 | |
| — | |
| — | |
| — | |
| — | |
| Not in DB | |
| — | |
| — | |
| — | |
| — |
Tax History
| Year | Property Taxes |
|---|---|
| 2025 | $3,867 |
Contact Agent
Nearby Similar Homes
Nearby Sold Comparables
Contact Agent
Listing Provided By
Hillard Agency- Tuscola


