925 Sussex Court, Buffalo Grove, Illinois 60089
$410,000
|
Sold
|
|
| Status: | Closed |
| Sqft: | 2,612 |
| Cost/Sqft: | $142 |
| Beds: | 4 |
| Baths: | 3 |
| Year Built: | 1968 |
| Property Taxes: | $8,446 |
| Days On Market: | 1491 |
| Lot Size: | 0,17 |
Description
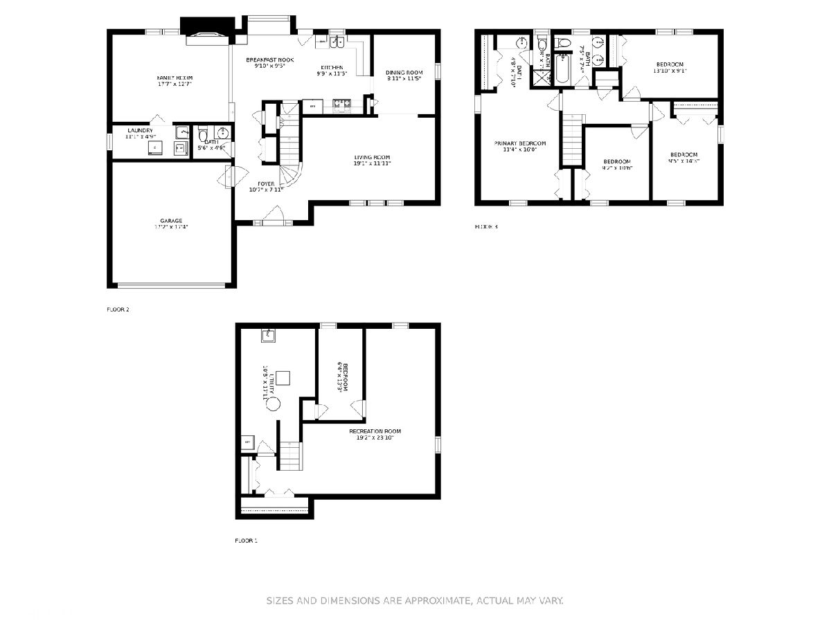
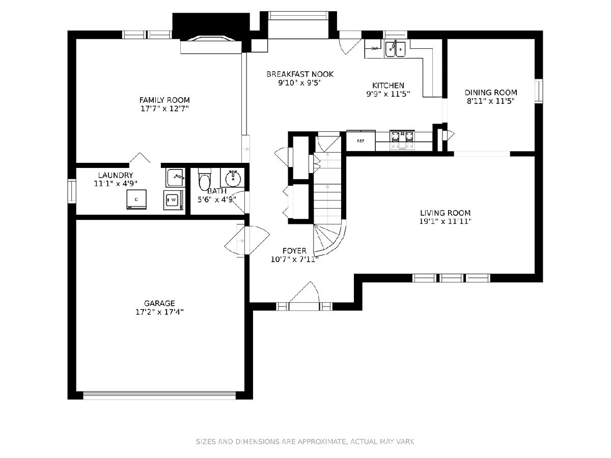
Many updates have been done which include new siding, gutters, and roof Dec. 2020. New furnace and air conditioning 2021. Newer windows 2016. This home is just waiting for your decorating ideas to make it your own. Great curb appeal with expansive relaxing front porch. Spacious four bedroom, two and a half bath home in a quiet cul-de-sac. Open living spaces are perfect for entertaining guests with gleaming hardwood floors. Large laundry room on the main level. The finished basement provides additional living space with a huge family room, with an office. Enjoy the beautiful landscaping. Fantastic location close to Buffalo Grove shopping, restaurants, and more! Welcome home!
Property Specifics
| Single Family | |
| — | |
| — | |
| 1968 | |
| — | |
| — | |
| No | |
| 0.17 |
| Cook | |
| — | |
| — / Not Applicable | |
| — | |
| — | |
| — | |
| 11345507 | |
| 03092110240000 |
Nearby Schools
| NAME: | DISTRICT: | DISTANCE: | |
|---|---|---|---|
|
Grade School
Booth Tarkington Elementary Scho |
21 | — | |
|
Middle School
Jack London Middle School |
21 | Not in DB | |
Property History
| DATE: | EVENT: | PRICE: | SOURCE: |
|---|---|---|---|
| 16 May, 2022 | Sold | $410,000 | MRED MLS |
| 23 Mar, 2022 | Under contract | $370,000 | MRED MLS |
| 18 Mar, 2022 | Listed for sale | $370,000 | MRED MLS |
Room Specifics
Total Bedrooms: 4
Bedrooms Above Ground: 4
Bedrooms Below Ground: 0
Dimensions: —
Floor Type: —
Dimensions: —
Floor Type: —
Dimensions: —
Floor Type: —
Full Bathrooms: 3
Bathroom Amenities: Double Sink
Bathroom in Basement: 0
Rooms: —
Basement Description: Finished
Other Specifics
| 2 | |
| — | |
| Concrete | |
| — | |
| — | |
| 50X150 | |
| — | |
| — | |
| — | |
| — | |
| Not in DB | |
| — | |
| — | |
| — | |
| — |
Tax History
| Year | Property Taxes |
|---|---|
| 2022 | $8,446 |
Contact Agent
Nearby Similar Homes
Nearby Sold Comparables
Contact Agent
Listing Provided By
Baird & Warner


