991 Yosemite Trail, Roselle, Illinois 60172
$235,000
|
Sold
|
|
| Status: | Closed |
| Sqft: | 1,100 |
| Cost/Sqft: | $205 |
| Beds: | 2 |
| Baths: | 2 |
| Year Built: | 1976 |
| Property Taxes: | $4,613 |
| Days On Market: | 477 |
| Lot Size: | 0,00 |
Description
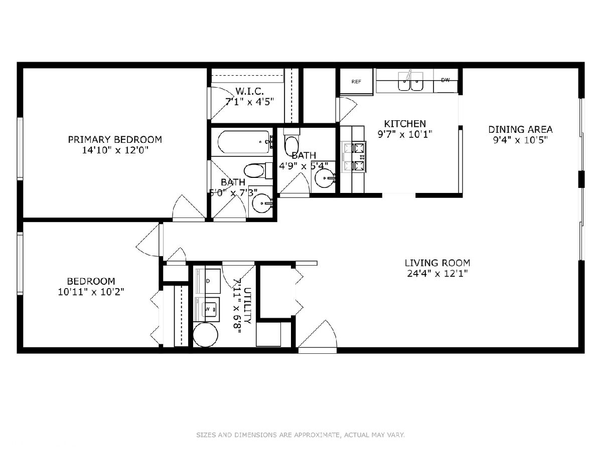
Bright and spacious first-floor condo ready for its new owner! This beautifully designed unit boasts a generous family room that flows seamlessly into a dining area with a stylish new light fixture. Both spaces open to a large, private patio-perfect for relaxing or entertaining. The open kitchen features modern appliances and a convenient walk-in pantry. The primary bedroom offers private access to the full bathroom and includes a spacious walk-in closet. An additional bedroom, a half bath (easily convertible to a full bath), and a large laundry room complete this well-thought-out layout.Recent updates include a new furnace, newer air conditioning unit, and a newer hot water heater. The one car garage has cabinets for storage and is attached to the building with easy access to unit. Ideally located near Route 390, with easy access to shopping, dining, and the highly regarded Conant High School. Owner can rent unit - Investor friendly.
Property Specifics
| Condos/Townhomes | |
| 2 | |
| — | |
| 1976 | |
| — | |
| — | |
| No | |
| — |
| Cook | |
| Trails Village | |
| 242 / Monthly | |
| — | |
| — | |
| — | |
| 12257279 | |
| 07354020091065 |
Nearby Schools
| NAME: | DISTRICT: | DISTANCE: | |
|---|---|---|---|
|
Grade School
Fredrick Nerge Elementary School |
54 | — | |
|
Middle School
Margaret Mead Junior High School |
54 | Not in DB | |
|
High School
J B Conant High School |
211 | Not in DB | |
Property History
| DATE: | EVENT: | PRICE: | SOURCE: |
|---|---|---|---|
| 30 Jan, 2025 | Sold | $235,000 | MRED MLS |
| 28 Dec, 2024 | Under contract | $225,000 | MRED MLS |
| 23 Dec, 2024 | Listed for sale | $225,000 | MRED MLS |
Room Specifics
Total Bedrooms: 2
Bedrooms Above Ground: 2
Bedrooms Below Ground: 0
Dimensions: —
Floor Type: —
Full Bathrooms: 2
Bathroom Amenities: —
Bathroom in Basement: 0
Rooms: —
Basement Description: None
Other Specifics
| 1 | |
| — | |
| Asphalt | |
| — | |
| — | |
| COMMON | |
| — | |
| — | |
| — | |
| — | |
| Not in DB | |
| — | |
| — | |
| — | |
| — |
Tax History
| Year | Property Taxes |
|---|---|
| 2025 | $4,613 |
Contact Agent
Nearby Similar Homes
Nearby Sold Comparables
Contact Agent
Listing Provided By
@properties Christie's International Real Estate


