1530 Ohio Street, West Town, Chicago, Illinois 60642
$1,600,000
For Sale
|
|
Status: | Active |
Sqft: | 4,106 |
Cost/Sqft: | $390 |
Beds: | 3 |
Baths: | 5 |
Year Built: | 2023 |
Property Taxes: | $13,106 |
Days On Market: | 9 |
Lot Size: | 0,00 |
Description
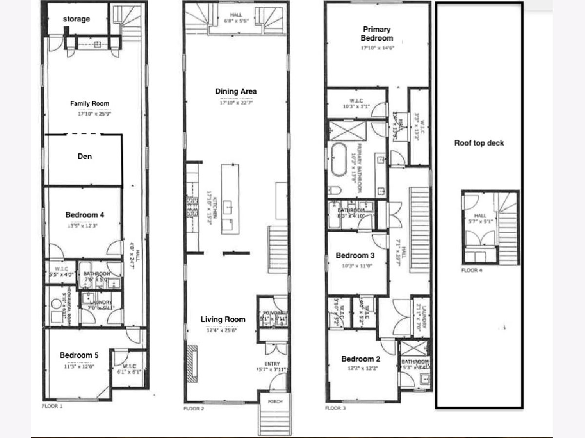
Newly constructed in 2023, this elegant single-family home in West Town seamlessly blends modern luxury with functional design. This 5-bedroom, 4.5-bathroom residence features a full rooftop deck, a garage deck, and a spacious grass front yard and backyard. Lumini windows and 6.5-inch wide-plank hardwood floors enhance the interior's sophistication. The open floor plan showcases a bright, south-facing living and dining area with a quartz-surround fireplace. The gourmet kitchen boasts high-end Thermador appliances, Brizo fixtures, and a large quartz island. Post-construction upgrades include high-end motorized window shades, custom closets, and dual HVAC systems for year-round comfort. The second floor offers three bedrooms, each with en-suite bathrooms, and a convenient side-by-side laundry closet with a countertop. The primary suite features two spacious closets and a spa-like bathroom with an extended double vanity, heated floors, a freestanding soaking tub, and a multi-jet glass shower. The lower level includes two large bedrooms, a recreation room with a den and wet bar, a full bathroom, extra storage, and an additional laundry hookup. The recreation room's den, enclosed by barn doors, provides versatile space for an office, gym, or guest room. Ideal for entertaining, the home features a stunning rooftop deck with skyline views and a backyard perfect for grassy turf or a paved patio. A two-car garage with an additional deck expands outdoor living options. Located in vibrant West Town, steps from West Loop, this home is surrounded by top-tier restaurants and boutique shops.
Property Specifics
Single Family | |
— | |
— | |
2023 | |
— | |
— | |
No | |
— |
Cook | |
— | |
— / Not Applicable | |
— | |
— | |
— | |
12479788 | |
17081150160000 |
Nearby Schools
NAME: | DISTRICT: | DISTANCE: | |
---|---|---|---|
Grade School
Otis Elementary School |
299 | — | |
Middle School
Otis Elementary School |
299 | Not in DB | |
High School
Wells Community Academy Senior H |
299 | Not in DB |
Property History
DATE: | EVENT: | PRICE: | SOURCE: |
---|---|---|---|
16 May, 2024 | Sold | $1,482,500 | MRED MLS |
22 Mar, 2024 | Under contract | $1,549,900 | MRED MLS |
31 Jan, 2024 | Listed for sale | $1,549,900 | MRED MLS |
23 Sep, 2025 | Listed for sale | $1,600,000 | MRED MLS |


































Room Specifics
Total Bedrooms: 5
Bedrooms Above Ground: 3
Bedrooms Below Ground: 2
Dimensions: —
Floor Type: —
Dimensions: —
Floor Type: —
Dimensions: —
Floor Type: —
Dimensions: —
Floor Type: —
Full Bathrooms: 5
Bathroom Amenities: Separate Shower,Double Sink,Soaking Tub
Bathroom in Basement: 1
Rooms: —
Basement Description: —
Other Specifics
2 | |
— | |
— | |
— | |
— | |
25 X 125 | |
— | |
— | |
— | |
— | |
Not in DB | |
— | |
— | |
— | |
— |
Tax History
Year | Property Taxes |
---|---|
2025 | $13,106 |
Contact Agent
Nearby Similar Homes
Nearby Sold Comparables
Contact Agent
Listing Provided By
Baird & Warner