23 Racine Avenue, Near West Side, Chicago, Illinois 60607
$599,000
|
For Sale
|
|
| Status: | Active |
| Sqft: | 1,500 |
| Cost/Sqft: | $399 |
| Beds: | 2 |
| Baths: | 2 |
| Year Built: | 1999 |
| Property Taxes: | $8,866 |
| Days On Market: | 23 |
| Lot Size: | 0,00 |
Description
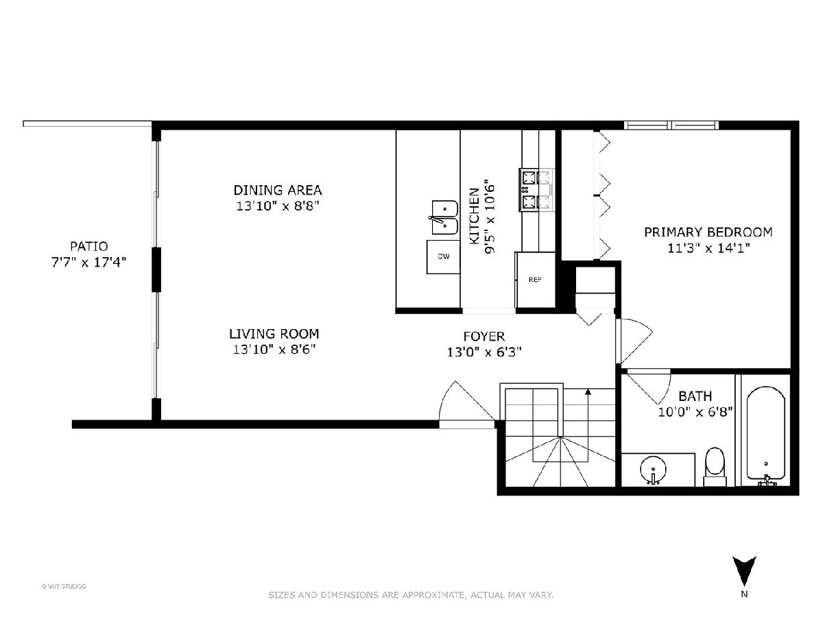
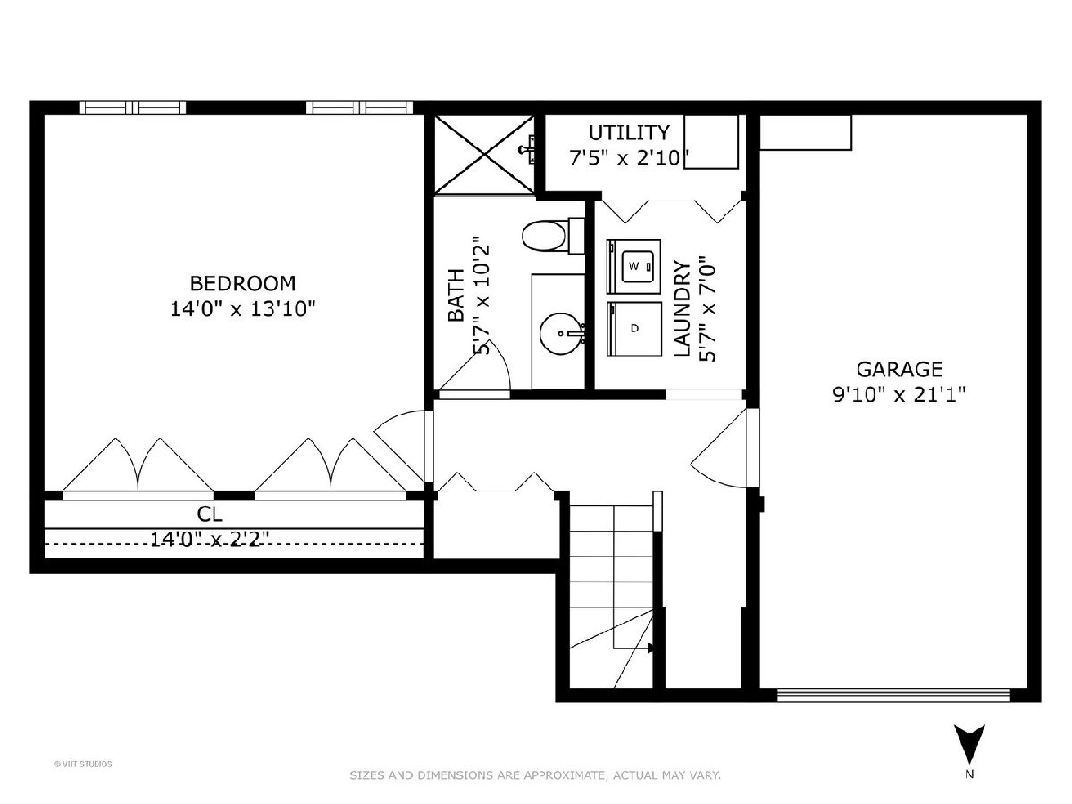
Rarely Available Corner Duplex in the Heart of West Loop's coveted Block X. Welcome to this beautifully maintained corner duplex located in one of West Loop's most sought-after gated communities. This spacious 2 bedroom/ 2 bath has an open floorplan, large gated patio off main living area overlooking the beautifully landscaped courtyards -an ideal setting for morning coffee, evening relaxation, or outdoor play. This unique living space has been impeccably maintained, freshly painted, hardwood floors, an updated kitchen, an office nook, laundry room, generously sized and organized closets for optimal storage. One of only two units in the building with a private, attached garage-offering not only secure parking but also valuable additional storage. All of this in a prime West Loop location-just steps to world-class dining, top tech companies, boutique shopping, excellent schools, parks, and multiple public transit options.
Property Specifics
| Condos/Townhomes | |
| 2 | |
| — | |
| 1999 | |
| — | |
| — | |
| No | |
| — |
| Cook | |
| — | |
| 485 / Monthly | |
| — | |
| — | |
| — | |
| 12478075 | |
| 17084430421005 |
Nearby Schools
| NAME: | DISTRICT: | DISTANCE: | |
|---|---|---|---|
|
Grade School
Skinner Elementary School |
299 | — | |
|
Middle School
Skinner Elementary School |
299 | Not in DB | |
|
High School
Crane Technical Prep High School |
299 | Not in DB | |
Property History
| DATE: | EVENT: | PRICE: | SOURCE: |
|---|---|---|---|
| 15 Jul, 2016 | Sold | $485,000 | MRED MLS |
| 7 Jun, 2016 | Under contract | $479,999 | MRED MLS |
| 27 May, 2016 | Listed for sale | $479,999 | MRED MLS |
| 14 Sep, 2021 | Under contract | $0 | MRED MLS |
| 30 Aug, 2021 | Listed for sale | $0 | MRED MLS |
| 1 Oct, 2025 | Listed for sale | $599,000 | MRED MLS |
Room Specifics
Total Bedrooms: 2
Bedrooms Above Ground: 2
Bedrooms Below Ground: 0
Dimensions: —
Floor Type: —
Full Bathrooms: 2
Bathroom Amenities: Soaking Tub
Bathroom in Basement: 1
Rooms: —
Basement Description: —
Other Specifics
| 1 | |
| — | |
| — | |
| — | |
| — | |
| COMMON | |
| — | |
| — | |
| — | |
| — | |
| Not in DB | |
| — | |
| — | |
| — | |
| — |
Tax History
| Year | Property Taxes |
|---|---|
| 2016 | $4,805 |
| 2025 | $8,866 |
Contact Agent
Nearby Similar Homes
Nearby Sold Comparables
Contact Agent
Listing Provided By
Baird & Warner


