434 Lakeside Manor Road, Highland Park, Illinois 60035
$925,000
|
For Sale
|
|
| Status: | Pending |
| Sqft: | 2,935 |
| Cost/Sqft: | $315 |
| Beds: | 5 |
| Baths: | 4 |
| Year Built: | 1929 |
| Property Taxes: | $19,180 |
| Days On Market: | 13 |
| Lot Size: | 0,29 |
Description
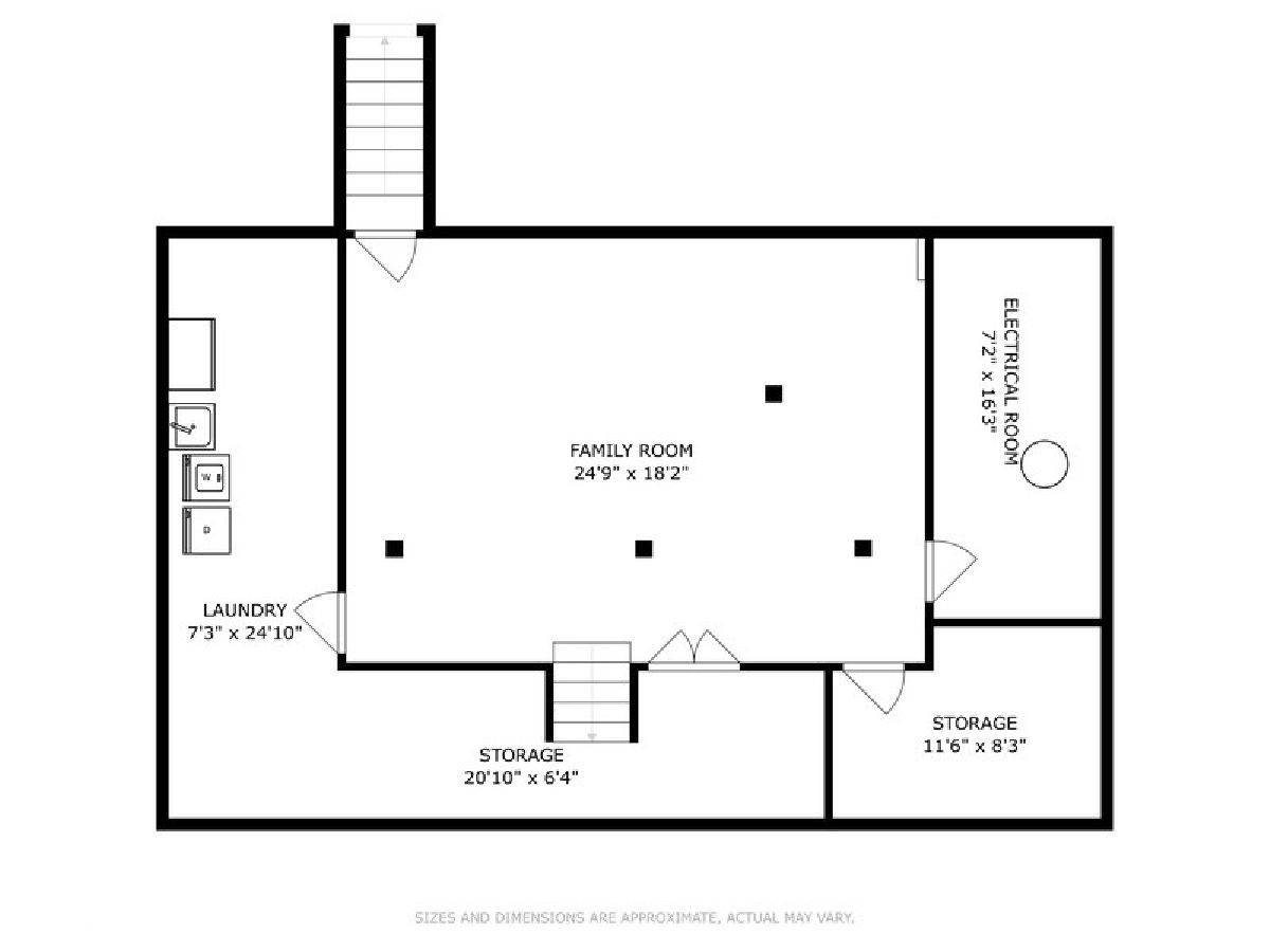
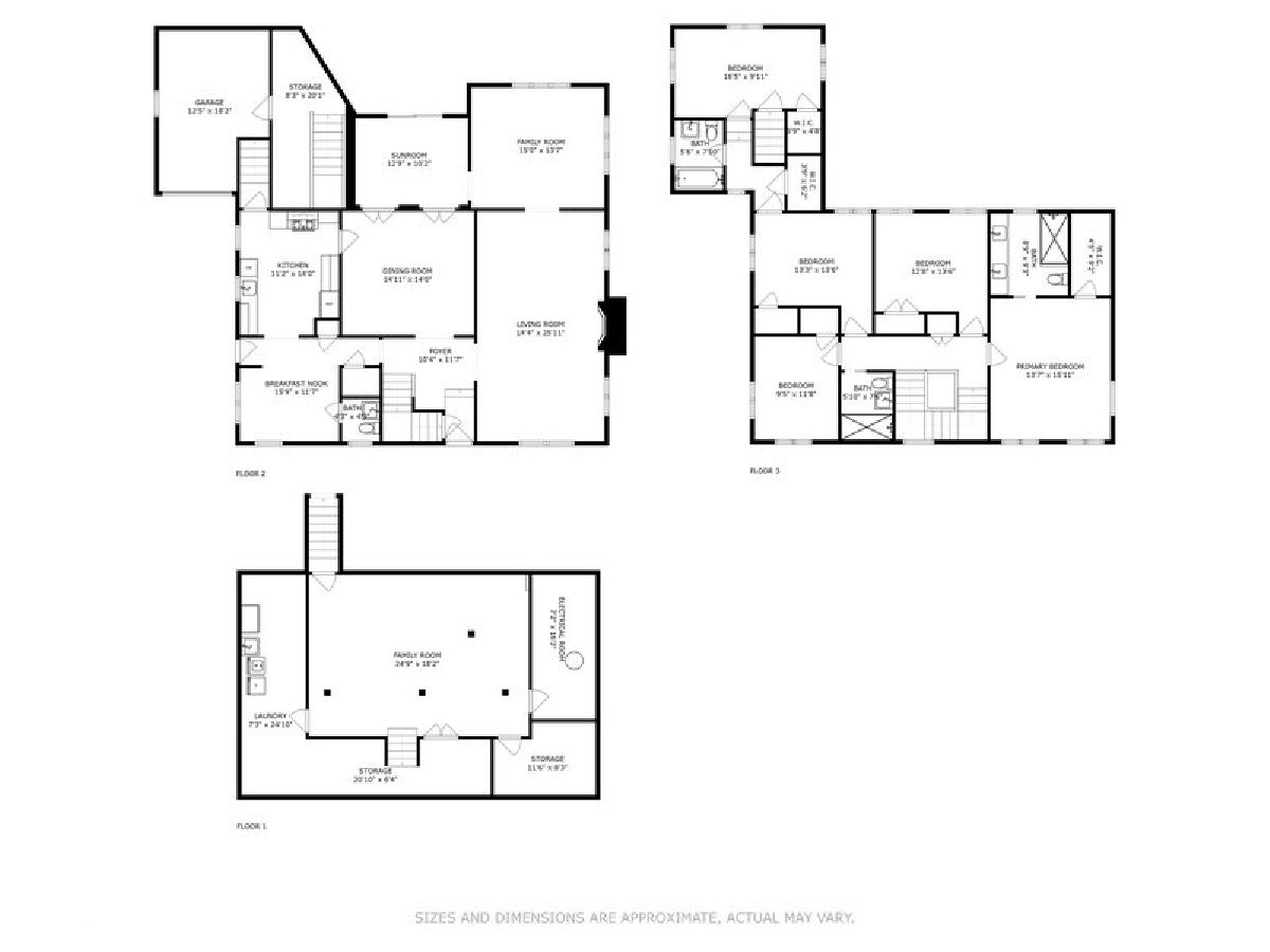
Multiple offers received. Best and final due by 6pm on Sunday, February 22. Experience the epitome of old Highland Park charm in this stunning Mediterranean-style home, perfectly situated in the desirable Braeside neighborhood. From its mostly brick exterior and professional landscaping to the meticulously updated interior, this home offers a seamless blend of timeless character and modern convenience. Enter into the beautiful foyer that leads to formal living room anchored by a wood burning fireplace with tile surround, floor to ceiling windows and recessed lighting. Separate family room and sunroom provide additional living spaces. The refreshed kitchen with pantry closet and stainless steel appliances, including double oven leads to spacious breakfast room with additional storage. Formal dining room with beamed ceiling is perfect for entertaining. The first level is finished with an updated powder room with beautiful wallpaper. This home features five generous bedrooms on the second level and three updated bathrooms, accessible via the grand main staircase or a convenient back staircase off the kitchen. The primary suite has a walk-in closet and beautifully remodeled ensuite bathroom with dual sinks and large shower. The four additional bedrooms share two hall bathrooms. All the carpet upstairs has hardwood underneath. Partially finished basement offers additional rec space and ample storage. The fully fenced backyard is a true oasis, featuring a Unilock brick patio, a built-in gas fire pit, and a stone walkway. Entertain year-round with the included outdoor TV and Sonos sound system. One car attached garage with storage enters the house through the basement. Located just moments from Ravinia Festival, the Botanic Gardens, Rosewood Beach, and the Braeside train station, this home offers the best of North Shore living.
Property Specifics
| Single Family | |
| — | |
| — | |
| 1929 | |
| — | |
| — | |
| No | |
| 0.29 |
| Lake | |
| — | |
| 0 / Not Applicable | |
| — | |
| — | |
| — | |
| 12568911 | |
| 17311020260000 |
Nearby Schools
| NAME: | DISTRICT: | DISTANCE: | |
|---|---|---|---|
|
Grade School
Braeside Elementary School |
112 | — | |
|
Middle School
Edgewood Middle School |
112 | Not in DB | |
|
High School
Highland Park High School |
113 | Not in DB | |
Property History
| DATE: | EVENT: | PRICE: | SOURCE: |
|---|---|---|---|
| 21 May, 2014 | Sold | $665,000 | MRED MLS |
| 22 Feb, 2014 | Under contract | $669,000 | MRED MLS |
| — | Last price change | $685,000 | MRED MLS |
| 17 Jun, 2013 | Listed for sale | $685,000 | MRED MLS |
| 22 Feb, 2026 | Under contract | $925,000 | MRED MLS |
| 20 Feb, 2026 | Listed for sale | $925,000 | MRED MLS |
Room Specifics
Total Bedrooms: 5
Bedrooms Above Ground: 5
Bedrooms Below Ground: 0
Dimensions: —
Floor Type: —
Dimensions: —
Floor Type: —
Dimensions: —
Floor Type: —
Dimensions: —
Floor Type: —
Full Bathrooms: 4
Bathroom Amenities: Separate Shower,Double Sink
Bathroom in Basement: 0
Rooms: —
Basement Description: —
Other Specifics
| 1 | |
| — | |
| — | |
| — | |
| — | |
| 25 X 138 X 120 X 179 x 25 | |
| Unfinished | |
| — | |
| — | |
| — | |
| Not in DB | |
| — | |
| — | |
| — | |
| — |
Tax History
| Year | Property Taxes |
|---|---|
| 2014 | $15,255 |
| 2026 | $19,180 |
Contact Agent
Nearby Similar Homes
Nearby Sold Comparables
Contact Agent
Listing Provided By
Engel & Voelkers Chicago North Shore


