4553 Ellis Avenue, Kenwood, Chicago, Illinois 60653
$975,000
|
For Sale
|
|
| Status: | Active |
| Sqft: | 3,852 |
| Cost/Sqft: | $253 |
| Beds: | 5 |
| Baths: | 5 |
| Year Built: | 1893 |
| Property Taxes: | $8,888 |
| Days On Market: | 48 |
| Lot Size: | 0,00 |
Description
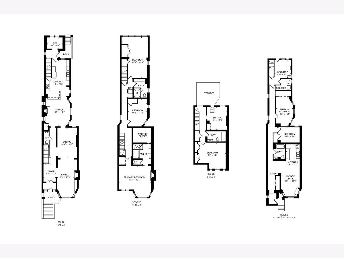
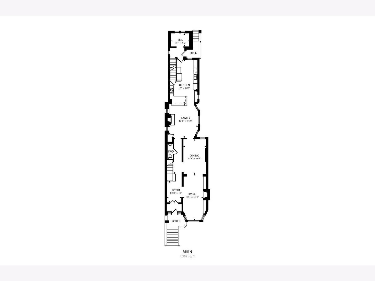
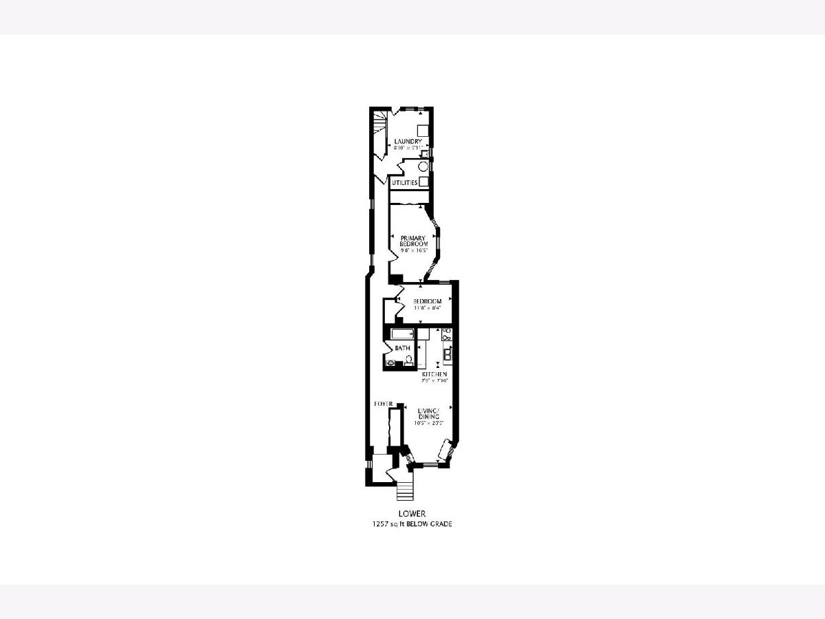
Timeless Elegance Meets Modern Luxury in This Stately Greystone Nestled on a prime block in one of Chicago's most coveted neighborhoods, this stately Greystone-built in 1892-seamlessly blends timeless architectural detail with refined modern updates. From the moment you step into the grand entry gallery, you're greeted by a sweeping staircase and an abundance of natural light, setting the tone for the gracious living throughout. Original vintage details, hardwood floors, crown molding, and classic trim speak to the home's heritage, while newer windows and thoughtful updates ensure modern comfort. The formal front staircase is complemented by a preserved rear stairway leading to the kitchen, providing both charm and function. The chef's kitchen is a culinary dream, equipped with a 6-burner Viking cooktop, pot filler, range hood, double Viking ovens, and elegant finishes-perfect for entertaining or everyday luxury. Upstairs, the expansive primary suite is a true retreat, complete with space for a king bed, a cozy sitting area, a massive walk-in closet, and a spa-inspired ensuite bath. The Euro-style wet room features a soaking tub, oversized steam shower with rain head, and a dual custom vanity. Two additional spacious bedrooms, a beautifully appointed full bath, and a convenient second-floor laundry area complete the upper level. The third floor offers additional flexible living space, including a bedroom, sitting area, and access to a brand-new rooftop deck-ideal for relaxing or entertaining. The recently rehabbed (2026) lower level includes a full kitchen, two legal bedrooms, a full bath, a family room, and two forms of egress-perfect for guests, extended family, or potential rental income. Generous storage is available on every floor. Located just steps from public transportation including the El, Metra, and 47th Street buses, this home also boasts easy access to Lake Shore Drive, I-90/94, and downtown. Enjoy nearby parks, the lakefront via the new 43rd Street pedestrian bridge, and four pickleball courts just across the alley. You're minutes from the Bronzeville Winery, the University of Chicago, the Museum of Science & Industry, and the highly anticipated Obama Presidential Center. This home is the perfect blend of luxury, comfort, and historic charm-an exceptional opportunity in a vibrant and growing community.
Property Specifics
| Single Family | |
| — | |
| — | |
| 1893 | |
| — | |
| — | |
| No | |
| — |
| Cook | |
| — | |
| — / Not Applicable | |
| — | |
| — | |
| — | |
| 12559908 | |
| 20023130260000 |
Property History
| DATE: | EVENT: | PRICE: | SOURCE: |
|---|---|---|---|
| 16 Mar, 2026 | Listed for sale | $975,000 | MRED MLS |
Room Specifics
Total Bedrooms: 7
Bedrooms Above Ground: 5
Bedrooms Below Ground: 2
Dimensions: —
Floor Type: —
Dimensions: —
Floor Type: —
Dimensions: —
Floor Type: —
Dimensions: —
Floor Type: —
Dimensions: —
Floor Type: —
Dimensions: —
Floor Type: —
Full Bathrooms: 5
Bathroom Amenities: Steam Shower,Double Sink,Full Body Spray Shower,Soaking Tub
Bathroom in Basement: 1
Rooms: —
Basement Description: —
Other Specifics
| 2 | |
| — | |
| — | |
| — | |
| — | |
| 3420 | |
| — | |
| — | |
| — | |
| — | |
| Not in DB | |
| — | |
| — | |
| — | |
| — |
Tax History
| Year | Property Taxes |
|---|---|
| 2026 | $8,888 |
Contact Agent
Nearby Similar Homes
Nearby Sold Comparables
Contact Agent
Listing Provided By
@properties Christie's International Real Estate


