1022 Lavergne Avenue, Austin, Chicago, Illinois 60651
$300,000
|
Sold
|
|
| Status: | Closed |
| Sqft: | 1,400 |
| Cost/Sqft: | $221 |
| Beds: | 3 |
| Baths: | 2 |
| Year Built: | 1914 |
| Property Taxes: | $3,798 |
| Days On Market: | 217 |
| Lot Size: | 0,00 |
Description
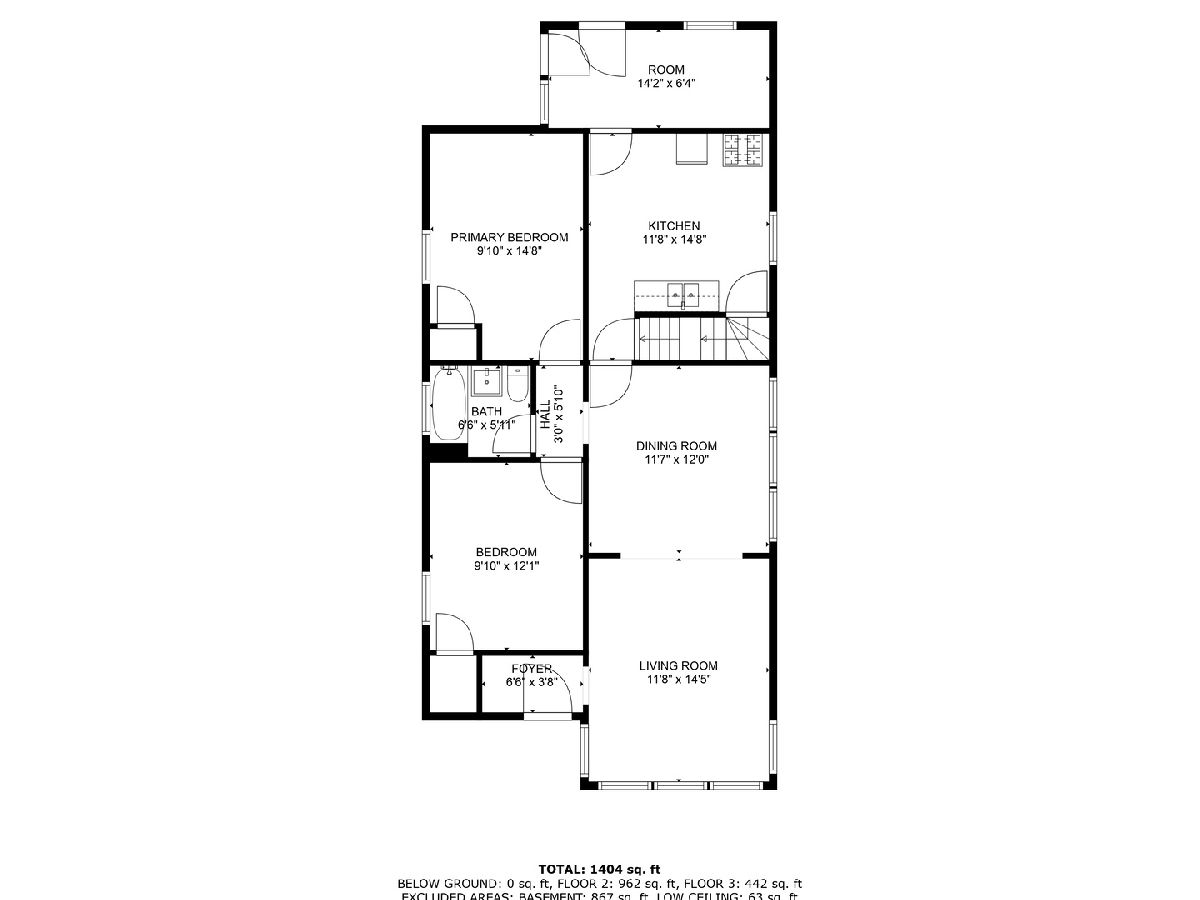
Welcome to this charming and spacious 3-bedroom, 2-bathroom single-family home located in the heart of Austin. This well-laid-out home offers two comfortable bedrooms on the main level and a large private master bedroom loft on the upper level-perfect for relaxation or a secluded workspace. You'll find a full bathroom on both the main and upper levels, offering added convenience for family and guests. The main floor features a generously sized living room and dining area, ideal for hosting or unwinding at the end of the day. The kitchen offers endless potential and awaits your personal touch to truly make it the heart of the home. Just off the kitchen, a bright and airy sunroom leads to a nicely sized backyard-great for entertaining, gardening, or enjoying peaceful evenings outdoors. The full basement is huge and offers endless possibilities-whether you're envisioning a family room, home office, gym, or extra storage. With tons of potential throughout, this home is a fantastic opportunity for homeowners or investors ready to bring their vision to life. Property is being sold "as is"
Property Specifics
| Single Family | |
| — | |
| — | |
| 1914 | |
| — | |
| — | |
| No | |
| — |
| Cook | |
| — | |
| — / Not Applicable | |
| — | |
| — | |
| — | |
| 12363117 | |
| 16044100330000 |
Property History
| DATE: | EVENT: | PRICE: | SOURCE: |
|---|---|---|---|
| 4 Aug, 2025 | Sold | $300,000 | MRED MLS |
| 17 Jun, 2025 | Under contract | $310,000 | MRED MLS |
| — | Last price change | $315,000 | MRED MLS |
| 12 May, 2025 | Listed for sale | $310,000 | MRED MLS |
Room Specifics
Total Bedrooms: 3
Bedrooms Above Ground: 3
Bedrooms Below Ground: 0
Dimensions: —
Floor Type: —
Dimensions: —
Floor Type: —
Full Bathrooms: 2
Bathroom Amenities: —
Bathroom in Basement: 0
Rooms: —
Basement Description: —
Other Specifics
| — | |
| — | |
| — | |
| — | |
| — | |
| 3780 | |
| — | |
| — | |
| — | |
| — | |
| Not in DB | |
| — | |
| — | |
| — | |
| — |
Tax History
| Year | Property Taxes |
|---|---|
| 2025 | $3,798 |
Contact Agent
Nearby Similar Homes
Nearby Sold Comparables
Contact Agent
Listing Provided By
Option Premier LLC


