1112 Main Street, Evanston, Illinois 60202
$287,000
|
Sold
|
|
| Status: | Closed |
| Sqft: | 1,450 |
| Cost/Sqft: | $192 |
| Beds: | 2 |
| Baths: | 2 |
| Year Built: | 1920 |
| Property Taxes: | $4,760 |
| Days On Market: | 1877 |
| Lot Size: | 0,00 |
Description
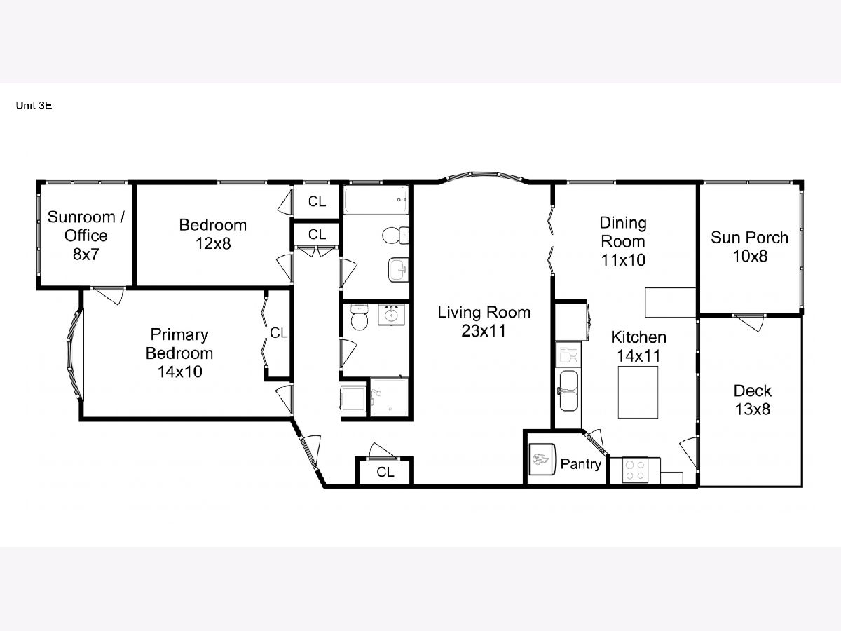
Sunny top floor unit in a great Evanston location, boasting two private outdoor spaces, a rare find! Desirable floor plan that features a large living room with crown molding, bay window and elegant double french doors leading to an ample dining room. Dining room opens to the kitchen breakfast bar and the wonderful private south-facing screened porch, and a deck (grilling, anyone?). Natural hardwood floors throughout. Kitchen just painted in beautiful French silver, large island, lots of cabinets, newer Bosch dishwasher and ceiling fan. Primary bedroom with large closet and french door to a four-season sunroom/office with bay window. You (and your plants) will thrive with all the natural light! Two full baths, one with a stand-up shower. Short walk to "L" and Metra stations. Leave your car at home and walk to many Main and Dempster restaurants and shops! Walk or bike to the lake, park and beach, even live music concerts nearby. In unit full-sized front-loading laundry, central A/C. Monthly rental parking option available. Large lockable storage space in building basement.
Property Specifics
| Condos/Townhomes | |
| 3 | |
| — | |
| 1920 | |
| Full | |
| — | |
| No | |
| — |
| Cook | |
| — | |
| 336 / Monthly | |
| Water,Insurance,Exterior Maintenance,Lawn Care,Scavenger,Snow Removal | |
| Lake Michigan,Public | |
| Public Sewer | |
| 11031891 | |
| 11193000441006 |
Nearby Schools
| NAME: | DISTRICT: | DISTANCE: | |
|---|---|---|---|
|
Grade School
Oakton Elementary School |
65 | — | |
|
Middle School
Chute Middle School |
65 | Not in DB | |
|
High School
Evanston Twp High School |
202 | Not in DB | |
Property History
| DATE: | EVENT: | PRICE: | SOURCE: |
|---|---|---|---|
| 2 Oct, 2015 | Sold | $230,000 | MRED MLS |
| 24 Aug, 2015 | Under contract | $234,500 | MRED MLS |
| — | Last price change | $247,000 | MRED MLS |
| 22 Feb, 2015 | Listed for sale | $255,000 | MRED MLS |
| 4 Jun, 2021 | Sold | $287,000 | MRED MLS |
| 29 Mar, 2021 | Under contract | $279,000 | MRED MLS |
| 25 Mar, 2021 | Listed for sale | $279,000 | MRED MLS |
| 9 Oct, 2025 | Sold | $350,000 | MRED MLS |
| 9 Sep, 2025 | Under contract | $329,000 | MRED MLS |
| 4 Sep, 2025 | Listed for sale | $329,000 | MRED MLS |
Room Specifics
Total Bedrooms: 2
Bedrooms Above Ground: 2
Bedrooms Below Ground: 0
Dimensions: —
Floor Type: —
Full Bathrooms: 2
Bathroom Amenities: —
Bathroom in Basement: 0
Rooms: Deck,Office,Screened Porch
Basement Description: Unfinished
Other Specifics
| — | |
| Concrete Perimeter | |
| — | |
| Deck, Screened Deck, End Unit | |
| — | |
| COMMON | |
| — | |
| Full | |
| Hardwood Floors, Storage | |
| Range, Microwave, Dishwasher, Refrigerator, Washer, Dryer, Disposal, Intercom | |
| Not in DB | |
| — | |
| — | |
| Storage | |
| — |
Tax History
| Year | Property Taxes |
|---|---|
| 2015 | $5,380 |
| 2021 | $4,760 |
| 2025 | $5,671 |
Contact Agent
Nearby Similar Homes
Nearby Sold Comparables
Contact Agent
Listing Provided By
RE/MAX 10 Lincoln Park


