1153 Cambridge Avenue, Near North Side, Chicago, Illinois 60610
$515,000
|
Sold
|
|
| Status: | Closed |
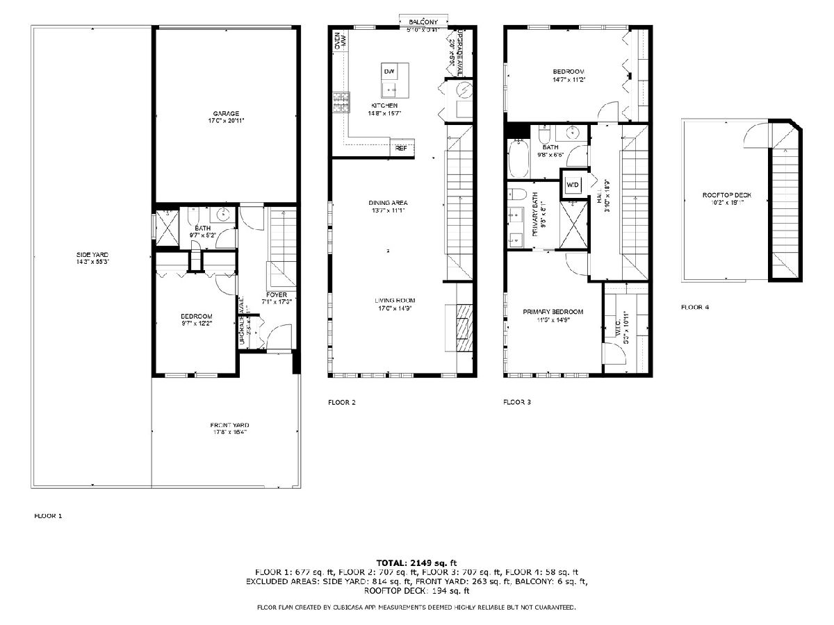
| Sqft: | 2,149 |
| Cost/Sqft: | $233 |
| Beds: | 3 |
| Baths: | 3 |
| Year Built: | 2007 |
| Property Taxes: | $11,645 |
| Days On Market: | 305 |
| Lot Size: | 0,00 |
Description
Investor special in the heart of Old Town-1153 N Cambridge Ave is a partially demo'd to the studs 3 bed, 3 bath brick corner townhome ready for your custom renovation-offered as-is for $499,900 with extensive design renderings and renovation specifications available upon request-perfect for investors, rehabbers, or buyers using a cash or renovation loan-property is mechanically sound with fully functional electrical, plumbing, and HVAC (furnace and water heater replaced 3 years ago) with all needed work cosmetic in nature-over 2,100 sq ft of living space plus front yard, side yard, rooftop deck, and attached 2-car garage-optional delivery of a fully renovated home within approximately 3 months post-contract is available upon inquiry-original design plans include wide plank white oak flooring, custom kitchen cabinetry, quartz countertops, bold gas fireplace, luxury baths with heated floors, and designer lighting-outstanding location steps to Wells Street dining, shopping, parks, and convenient access to public transit and downtown-showings by appointment only-an excellent opportunity to add value and personalize a home in a highly sought-after area of Chicago.
Property Specifics
| Condos/Townhomes | |
| 3 | |
| — | |
| 2007 | |
| — | |
| — | |
| No | |
| — |
| Cook | |
| — | |
| 368 / Monthly | |
| — | |
| — | |
| — | |
| 12339469 | |
| 17043050584024 |
Nearby Schools
| NAME: | DISTRICT: | DISTANCE: | |
|---|---|---|---|
|
Grade School
Ogden Elementary |
299 | — | |
|
Middle School
Ogden Elementary |
299 | Not in DB | |
|
High School
Lincoln Park High School |
299 | Not in DB | |
Property History
| DATE: | EVENT: | PRICE: | SOURCE: |
|---|---|---|---|
| 28 May, 2025 | Sold | $515,000 | MRED MLS |
| 13 May, 2025 | Under contract | $499,900 | MRED MLS |
| 12 May, 2025 | Listed for sale | $499,900 | MRED MLS |
| 12 Nov, 2025 | Under contract | $0 | MRED MLS |
| 31 Oct, 2025 | Listed for sale | $0 | MRED MLS |
Room Specifics
Total Bedrooms: 3
Bedrooms Above Ground: 3
Bedrooms Below Ground: 0
Dimensions: —
Floor Type: —
Dimensions: —
Floor Type: —
Full Bathrooms: 3
Bathroom Amenities: —
Bathroom in Basement: 0
Rooms: —
Basement Description: —
Other Specifics
| 2 | |
| — | |
| — | |
| — | |
| — | |
| COMMON | |
| — | |
| — | |
| — | |
| — | |
| Not in DB | |
| — | |
| — | |
| — | |
| — |
Tax History
| Year | Property Taxes |
|---|---|
| 2025 | $11,645 |
Contact Agent
Nearby Similar Homes
Nearby Sold Comparables
Contact Agent
Listing Provided By
Compass


