1500 Seward Street, Evanston, Illinois 60202
$521,000
|
Sold
|
|
| Status: | Closed |
| Sqft: | 1,850 |
| Cost/Sqft: | $297 |
| Beds: | 4 |
| Baths: | 2 |
| Year Built: | 1923 |
| Property Taxes: | $9,083 |
| Days On Market: | 582 |
| Lot Size: | 0,00 |
Description
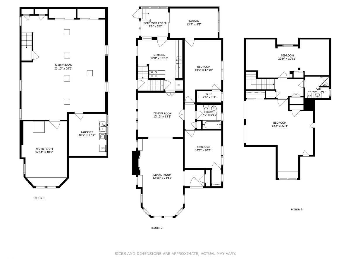
Amazing spacious and sun-filled bungalow that backs to Southwest Park...a serene and secluded park right behind the house! Freshly painted throughout with hardwood floors on the first floor and new carpet on the second floor. Lovely living room with bay window, wood burning fireplace with bookcases surrounding it. Dining room adjoins the living room and leads to the eat in kitchen with stainless steel appliances and granite counters. First floor features 2 bedrooms, one of which has a walk in closet and leads to the tandem room that makes the perfect home office or dressing room. Second floor features a very large bedroom with built in desk, storage nooks and 2 closets plus the 4th bedroom that features sloped ceilings. The lower level is finished with a family room that has a wall of closets and a huge laundry room plus workshop room. Fenced backyard has a paver patio perfect for relaxing or entertaining plus a 2 car garage and access to the park! Excellent home that has been well maintained but it is an Estate Sale and is being sold As Is.
Property Specifics
| Single Family | |
| — | |
| — | |
| 1923 | |
| — | |
| — | |
| No | |
| — |
| Cook | |
| — | |
| — / Not Applicable | |
| — | |
| — | |
| — | |
| 12185942 | |
| 10244220120000 |
Nearby Schools
| NAME: | DISTRICT: | DISTANCE: | |
|---|---|---|---|
|
Grade School
Oakton Elementary School |
65 | — | |
|
Middle School
Chute Middle School |
65 | Not in DB | |
|
High School
Evanston Twp High School |
202 | Not in DB | |
Property History
| DATE: | EVENT: | PRICE: | SOURCE: |
|---|---|---|---|
| 8 Jan, 2025 | Sold | $521,000 | MRED MLS |
| 1 Nov, 2024 | Under contract | $550,000 | MRED MLS |
| 10 Oct, 2024 | Listed for sale | $550,000 | MRED MLS |
Room Specifics
Total Bedrooms: 4
Bedrooms Above Ground: 4
Bedrooms Below Ground: 0
Dimensions: —
Floor Type: —
Dimensions: —
Floor Type: —
Dimensions: —
Floor Type: —
Full Bathrooms: 2
Bathroom Amenities: —
Bathroom in Basement: 0
Rooms: —
Basement Description: Partially Finished
Other Specifics
| 2 | |
| — | |
| — | |
| — | |
| — | |
| 33X129 | |
| — | |
| — | |
| — | |
| — | |
| Not in DB | |
| — | |
| — | |
| — | |
| — |
Tax History
| Year | Property Taxes |
|---|---|
| 2025 | $9,083 |
Contact Agent
Nearby Similar Homes
Nearby Sold Comparables
Contact Agent
Listing Provided By
Compass


