18650 Pine Lake Drive, Tinley Park, Illinois 60477
$285,000
|
Sold
|
|
| Status: | Closed |
| Sqft: | 1,800 |
| Cost/Sqft: | $156 |
| Beds: | 2 |
| Baths: | 2 |
| Year Built: | 2006 |
| Property Taxes: | $6,212 |
| Days On Market: | 923 |
| Lot Size: | 0,00 |
Description
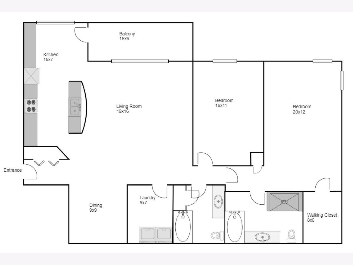
Absolutely stunning penthouse condo located in very popular 55+ The Pines complex! Vaulted ceilings and customized kitchen layout enhance the openness of the space. This kitchen outshines anything sold in the complex over the past couple years: Custom cabinets made by Brakur, crown molding, glass doors, Cambria quartz countertop, high-end stainless appliances (Kitchen-aid b/i refrigerator & dual fuel O/R, Bosch dishwasher, microwave). Large master bedroom suite has a deep walk-in closet and elegant bathroom with 6 jet whirlpool tub, separate shower, and custom cabinetry w/side upper cabinets (same in hallway bathroom), Moen bronze faucets. The laundry room has Whirlpool washer and dryer and utilizes the space with cabinetry, counters and b/i sink. The furnace and A/C units are approx. 6 years new. Recessed lighting and custom lighting fixtures throughout. Beautiful window treatments, newer carpeting. The garage is heated, secure and has a large storage locker. Walking paths are right out the door and so are the 2 lakes (fishable for residents) that include a natural water preserve. Near easy access to major expressways, restaurants, and so many activities. The photos online truly speak for the wonderful home this is! Furniture is negotiable.
Property Specifics
| Condos/Townhomes | |
| 3 | |
| — | |
| 2006 | |
| — | |
| — | |
| No | |
| — |
| Cook | |
| — | |
| 230 / Monthly | |
| — | |
| — | |
| — | |
| 11888938 | |
| 31062070581093 |
Property History
| DATE: | EVENT: | PRICE: | SOURCE: |
|---|---|---|---|
| 3 Nov, 2023 | Sold | $285,000 | MRED MLS |
| 4 Oct, 2023 | Under contract | $279,900 | MRED MLS |
| 22 Sep, 2023 | Listed for sale | $279,900 | MRED MLS |
Room Specifics
Total Bedrooms: 2
Bedrooms Above Ground: 2
Bedrooms Below Ground: 0
Dimensions: —
Floor Type: —
Full Bathrooms: 2
Bathroom Amenities: Whirlpool,Separate Shower
Bathroom in Basement: —
Rooms: —
Basement Description: None
Other Specifics
| 1 | |
| — | |
| — | |
| — | |
| — | |
| COMMON | |
| — | |
| — | |
| — | |
| — | |
| Not in DB | |
| — | |
| — | |
| — | |
| — |
Tax History
| Year | Property Taxes |
|---|---|
| 2023 | $6,212 |
Contact Agent
Nearby Similar Homes
Nearby Sold Comparables
Contact Agent
Listing Provided By
Long Realty


