1901-1905 Oakdale Avenue, North Center, Chicago, Illinois 60657
$2,160,000
|
Sold
|
|
| Status: | Closed |
| Sqft: | 5,372 |
| Cost/Sqft: | $424 |
| Beds: | 4 |
| Baths: | 4 |
| Year Built: | 2001 |
| Property Taxes: | $36,746 |
| Days On Market: | 1148 |
| Lot Size: | 0,00 |
Description
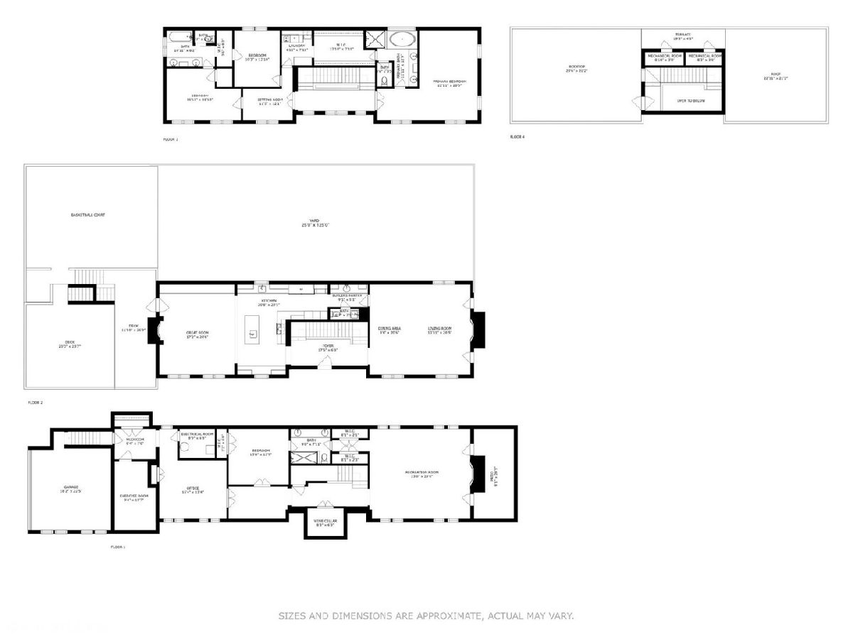
Incredible Lakeview corner home on wide 29' by 125' lot with 25' by 125' side yard. Handsome center entrance brick house with great curb appeal. Smart floorplan with large rooms: open kitchen, butler's pantry, workspaceand great room. Adjacent deck off this level that also leads to a garage roof deck. Living room dining room combo. Three bedrooms upstairs with a sitting room as well. Lower level has rec room, wine cellar, bedroom, bath, office/den, mud room, and exercise room. Plus, this floor connects to an attached, heated, 2 car garage. English garden patio too. Home has three gas fireplaces, radiant heat in lower level, and the potential for a rooftop deck. Amazing, full side lot with grass area and basketball court. Possibilities are endless for this space. Bring your buyers who crave the outdoors. Sunny and very bright home. Sellers have kept two PINs for the parcels for maximum flexibility. The neighborhood and block are wonderful. Close to expressways, shopping, and lovely Hamlin Park. Exclusions: Dining Room Chandelier, Powder room mirror, TV's. House can be sold separately for $1,775,000.
Property Specifics
| Single Family | |
| — | |
| — | |
| 2001 | |
| — | |
| — | |
| No | |
| — |
| Cook | |
| — | |
| — / Not Applicable | |
| — | |
| — | |
| — | |
| 11711243 | |
| 14302190260000 |
Nearby Schools
| NAME: | DISTRICT: | DISTANCE: | |
|---|---|---|---|
|
Grade School
Jahn Elementary School |
299 | — | |
|
Middle School
Jahn Elementary School |
299 | Not in DB | |
|
High School
Lake View High School |
299 | Not in DB | |
Property History
| DATE: | EVENT: | PRICE: | SOURCE: |
|---|---|---|---|
| 20 Apr, 2023 | Sold | $2,160,000 | MRED MLS |
| 10 Feb, 2023 | Under contract | $2,279,000 | MRED MLS |
| 1 Feb, 2023 | Listed for sale | $2,279,000 | MRED MLS |
Room Specifics
Total Bedrooms: 4
Bedrooms Above Ground: 4
Bedrooms Below Ground: 0
Dimensions: —
Floor Type: —
Dimensions: —
Floor Type: —
Dimensions: —
Floor Type: —
Full Bathrooms: 4
Bathroom Amenities: Steam Shower,Double Sink,Full Body Spray Shower,Soaking Tub
Bathroom in Basement: 1
Rooms: —
Basement Description: Finished,Exterior Access
Other Specifics
| 2 | |
| — | |
| — | |
| — | |
| — | |
| 54X125 | |
| — | |
| — | |
| — | |
| — | |
| Not in DB | |
| — | |
| — | |
| — | |
| — |
Tax History
| Year | Property Taxes |
|---|---|
| 2023 | $36,746 |
Contact Agent
Nearby Similar Homes
Nearby Sold Comparables
Contact Agent
Listing Provided By
@properties Christie's International Real Estate


