2029 Oakton Street, Evanston, Illinois 60202
$580,000
|
Sold
|
|
| Status: | Closed |
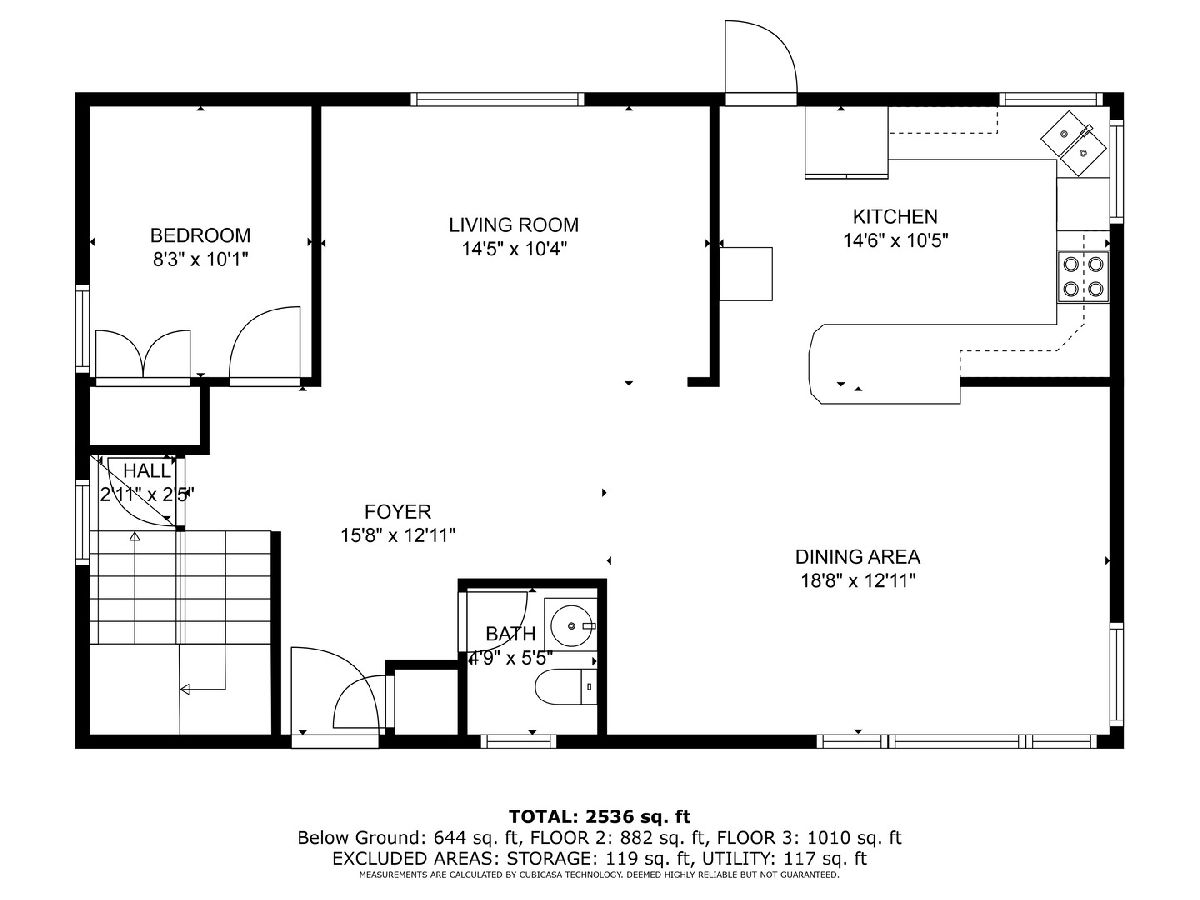
| Sqft: | 2,536 |
| Cost/Sqft: | $229 |
| Beds: | 4 |
| Baths: | 4 |
| Year Built: | — |
| Property Taxes: | $10,155 |
| Days On Market: | 851 |
| Lot Size: | 0,00 |
Description
Spacious well maintained two story 4 bedroom home with main floor bedroom and half bathroom. Living room, dining room and kitchen on first floor. Kitchen has stainless steel appliances. Deck access from kitchen and living room sliding glass doors. Three bedrooms on second floor. There is a large master bedroom suite with walk-in closet and linen closet. Master bathroom has a whirlpool tub, separate shower and double sink. Hardwood floors throughout. Finished basement with a family room, bar area and fireplace. Bathroom with shower. Laundry room and storage area. Dual zone heating and central air. Two car garage and two exterior parking spaces. The home is across the street from James Park. Located near schools, transportation.
Property Specifics
| Single Family | |
| — | |
| — | |
| — | |
| — | |
| — | |
| No | |
| — |
| Cook | |
| — | |
| — / Not Applicable | |
| — | |
| — | |
| — | |
| 11959755 | |
| 10243170670000 |
Nearby Schools
| NAME: | DISTRICT: | DISTANCE: | |
|---|---|---|---|
|
Grade School
Dawes Elementary School |
65 | — | |
|
Middle School
Chute Middle School |
65 | Not in DB | |
|
High School
Evanston Twp High School |
202 | Not in DB | |
Property History
| DATE: | EVENT: | PRICE: | SOURCE: |
|---|---|---|---|
| 27 Mar, 2024 | Sold | $580,000 | MRED MLS |
| 11 Feb, 2024 | Under contract | $580,000 | MRED MLS |
| — | Last price change | $620,000 | MRED MLS |
| 16 Jan, 2024 | Listed for sale | $620,000 | MRED MLS |
Room Specifics
Total Bedrooms: 4
Bedrooms Above Ground: 4
Bedrooms Below Ground: 0
Dimensions: —
Floor Type: —
Dimensions: —
Floor Type: —
Dimensions: —
Floor Type: —
Full Bathrooms: 4
Bathroom Amenities: Separate Shower
Bathroom in Basement: 1
Rooms: —
Basement Description: Finished
Other Specifics
| 2 | |
| — | |
| — | |
| — | |
| — | |
| 70 X 125 | |
| — | |
| — | |
| — | |
| — | |
| Not in DB | |
| — | |
| — | |
| — | |
| — |
Tax History
| Year | Property Taxes |
|---|---|
| 2024 | $10,155 |
Contact Agent
Nearby Similar Homes
Nearby Sold Comparables
Contact Agent
Listing Provided By
Coldwell Banker Realty


